Prevu by reAlpha
BuySellBlogBrowse Listings

RavenscourtCampbell, CA 95008

For Sale

$2,900,000

Smart Buyer Rebate $29,000

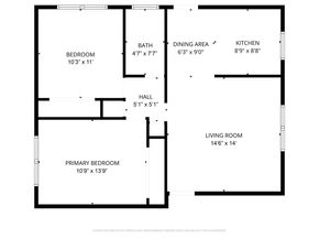
Magnify is pleased to present 928 and 930 Ravenscourt Avenue, a rare multifamily investment opportunity in the desirable City of Campbell. Located on a prominent corner lot in Silicon Valley, the property consists of two fourplex buildings on one parcel totaling (8) Two-bedroom / One-bathroom units, each with private patios, balconies, or backyard space.
Constructed in 1962, the property offers 6,656 square feet of rentable living space per county records on a 14,000 square foot lot. The asset is well maintained with capital improvements that enhance efficiency and long-term ownership stability, including dual-pane windows, a copper water supply line, a 500-amp Square D electrical panel, and plumbing upgrades.
Units feature dishwashers, private outdoor space, wall A/C, luxury vinyl plank flooring, and tile finishes in kitchens and bathrooms. The property is minutes from Downtown Campbell, The Pruneyard, and Santana Row, offering access to dining, retail, and entertainment. Convenient access to Highways 17 and 280 allows quick commutes to many major Silicon Valley employment centers.
Located within Campbell city limits, the property offers value-add potential through exterior improvements and continued rental growth in one of Silicon Valleys most desirable rental markets.

Listed by David Katz

·

License #01971921

·

Magnify Real Estate

·

408-438-0585

Listed by Will Tharp

·

License #01984173

·

Magnify Real Estate

Last updated March 16, 2026

·

Source: MLSListings #ML82037822

Listing Facts

  • TypeMulti-family
  • NeighborhoodDowntown Campbell
  • Days on Prevu8
  • Size6,656 sqft
  • Price per sqft$436

Amenities

  • Pets Allowed
  • Parking

Location

Mortgage Calculator

Listing History

03/09/2026
Listed by Magnify Real Estate
$2,900,000

Property Details for Ravenscourt

Association

General

  • Number Of Units In Community: 8

Exterior

Construction

  • Roof: Flat
  • Year Built: 1962

Measurements

  • Building Area Total: 6,656
  • Lot Size Area: 14,000
  • Lot Size Square Feet: 14,000

Financial

Taxes

  • Parcel Number: 282-15-025

Interior

Features

  • Flooring: Laminate, Tile

Measurements

  • Living Area: 6,656

Other

Features

  • Accessibility Features: Parking

Parking

Parking

  • Carport: Yes
  • Parking Features: Assigned Spaces, Carport
  • Parking Total: 6

Schools

Elementary School

  • Elementary School District: Campbell Union Elementary

High School

  • High School District: Campbell Union High

Utilities

Equipment

  • Cooling: Window/Wall Unit
  • Heating: Gas
  • Sewer: Public Sewer
  • Utilities: Water - Public
  • Water Source: Public

Frequently Asked Questions

How many bedrooms does this multi-family home have?

There is bedrooms in this multi-family home at Ravenscourt.

Does this multi-family home have parking?

Yes, there are 6 parking spaces available for Ravenscourt.

How does Ravenscourt compare to other multi-family homes in Downtown Campbell?

This multi-family home is listed 58% below the average price for multi-family homes in Downtown Campbell and has been on the market for 51 less days than the typical home in this area.

What is the square footage on this multi-family home?

According to the MLS, this listing is 6,656 sqft.

Ravenscourt is a -bedroom multi-family home for sale in Campbell CA 95008. On Prevu for 8 days at $2,900,000. This property features 6,656 square feet of living space, located in Downtown Campbell. The median listing price for multi-family homes in this area is $1,443,000. The home offers pets allowed and parking. View other multi-family home listings in Campbell.

Based on information from MLSListings™️ and/or other sources. All data, including all measurements and calculations of area, is obtained from various sources and has not been, and will not be, verified by Prevu or the MLS. Information is provided exclusively for consumer's personal, non-commercial use and may not be used for any purpose other than to identify prospective properties consumer may be interested in purchasing.

Full MLS Disclaimers

Rebate estimate is indicative only and based on listing price and estimated buyer's agent commission paid by owner, if applicable. Final rebates are subject to Terms of Use and may vary due to final negotiated transaction terms.