Prevu by reAlpha
BuySellBlogBrowse Listings

Lot #36 Fox Run CourtRidge, NY 11961

For Sale

$819,999

Smart Buyer Rebate $8,000

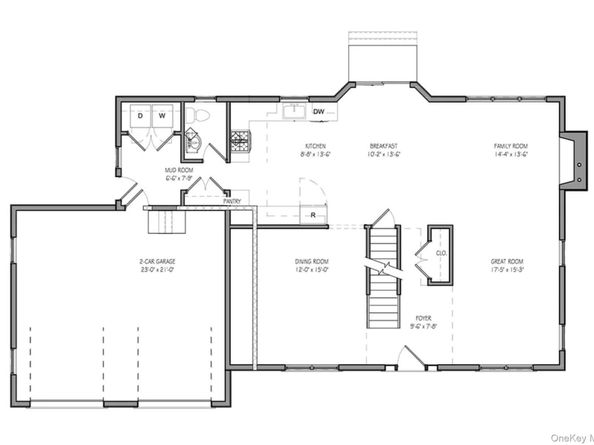
New Construction Colonial – To Be Built. 4 Bedrooms, 2.5 Bathrooms Incredible opportunity to build your dream home with an interest rate as low as 4.99%! Choose from three thoughtfully designed models: The Mattituck, The Jamesport, and The Jamesport Plus. Each model offers a spacious and functional layout with high-quality finishes throughout. This beautiful Colonial will feature four generously sized bedrooms, two and a half bathrooms, and an oversized attached garage with interior access. Exterior features include architectural roof shingles with a 30-year guarantee, a blacktop driveway and walkway, a concrete front porch with sidelights, and maintenance-free vinyl siding. Stone accents are available upon request. The home will also include aluminum gutters and leaders, exterior electrical outlets and hose bibs in the front and rear, a 6’ sliding glass door, and seeded front and rear yards. Inside, the home offers 9-foot ceilings on the main level, 8-foot ceilings on the second floor and basement, and red oak hardwood flooring in the living room, family room, dining room, and upstairs hallway. The dining room is enhanced with a tray ceiling and crown molding. The kitchen and bathrooms will feature ceramic tile, while the bedrooms will have comfortable wall-to-wall carpeting. A 36” gas fireplace provides a cozy centerpiece in the main living space. Additional highlights include oak handrails with white balusters, recessed lighting (10 fixtures), and a choice of interior doors with colonial-style molding and baseboards. Conveniences include hookups for a washer and dryer, two telephone outlets, two cable outlets, and a garage wired for a door opener. Benjamin Moore paint (two color choices) with white trim is included. Closet shelving is PVC-coated throughout, with optional upgrade packages available for the primary bedroom. Don’t miss the chance to personalize your finishes and create a home tailored to your lifestyle. A rare new construction opportunity in a highly desirable area!

Listed by Bryan J. Karp CBR

·

Coldwell Banker American Homes

·

631-863-9800

Listed by Martina Scheben

·

Coldwell Banker American Homes

Last updated February 07, 2026

·

Source: OneKey #926621

Listing Facts

  • TypeSingle-family
  • NeighborhoodRidge
  • Bedrooms4
  • Bathrooms3
  • Days on Prevu194
  • Size2,260 sqft
  • Price per sqft$363

Amenities

  • Dishwasher
  • Air Conditioning
  • Parking

Location

Mortgage Calculator

Listing History

10/20/2025
Listed by Coldwell Banker American Homes
$819,999

Property Details for Lot #36 Fox Run Court

Exterior

Construction

  • Property Condition: New Construction, To Be Built
  • Year Built: 2025
  • Architectural Style: Colonial
  • Construction Materials: Frame

Measurements

  • Building Area Units: Square Feet
  • Lot Size Acres: 0.49
  • Lot Size Square Feet: 21,344

Financial

Taxes

  • Parcel Number: 0200-405-00-03-00-036-000
  • Tax Assessed Value: $325.00
  • Tax Year: 2025

Interior

Features

  • Appliances: Dishwasher, Microwave, Oven, Refrigerator
  • Fireplace: Yes
  • Fireplaces Total: 1
  • Flooring: Carpet, Hardwood
  • Interior Features: Chefs Kitchen, Double Vanity, Eat-in Kitchen, Entrance Foyer, Formal Dining, Granite Counters, Open Floorplan, Primary Bathroom, Recessed Lighting, Soaking Tub, Walk-In Closet(s), Washer/Dryer Hookup

Measurements

  • Living Area: 2,260
  • Living Area Source: Plans

Rooms

  • Basement: Full, Unfinished
  • Has Basement: Yes
  • Bathrooms Full: 2
  • Bathrooms Half: 1
  • Bathrooms Total Integer: 3
  • Bedrooms Total: 4
  • Rooms Total: 9

Parking

Parking

  • Garage Spaces: 2
  • Garage: Yes
  • Parking Features: Driveway, Garage

Schools

Elementary School

  • Elementary School: Longwood Middle School
  • Elementary School District: Longwood

High School

  • High School: Longwood High School
  • High School District: Longwood

Middle or Junior School

  • Middle Or Junior School: Longwood Junior High School
  • Middle Or Junior School District: Longwood

Utilities

Equipment

  • Cooling: Central Air
  • Heating: Forced Air, Natural Gas
  • Sewer: Cesspool
  • Utilities: Natural Gas Connected
  • Water Source: Public

Frequently Asked Questions

How many bedrooms and bathrooms does this single-family home have?

There are 4 bedrooms and 3 bathrooms in this single-family home at Lot #36 Fox Run Court.

What schools are nearby to Lot #36 Fox Run Court?

Nearby schools include the Longwood Middle School Elementary School, Longwood Junior High School, and Longwood High School.

Does this single-family home have parking?

Yes, there are 2 parking spaces available for Lot #36 Fox Run Court.

How does Lot #36 Fox Run Court compare to other single-family homes in Ridge?

This single-family home is listed 31% above the average price for single-family homes in Ridge and has been on the market for 148 more days than the typical home in this area.

What is the square footage on this single-family home?

According to the MLS, this listing is 2,260 sqft.

Lot #36 Fox Run Court is a 4-bedroom, 3-bath single-family home for sale in Ridge NY 11961. Listed on Prevu for 194 days at $819,999. This residence features 2,260 square feet of living space, located in Ridge. The median listing price for single-family homes in this area is $489,495. Nearby schools include Longwood Middle School Elementary School, Longwood Junior High School, and Longwood High School. Additional amenities include dishwasher, air conditioning, and parking. View other single-family home listings in Suffolk County.

The data relating to real estate for sale on this website comes in part from the IDX Program of OneKey™ MLS. The source of the displayed data is either the property owner or public record provided by non-governmental third parties. It is believed to be reliable but not guaranteed. This information is provided exclusively for consumers’ personal, non-commercial use. Information Copyright 2026, OneKey™ MLS. All Rights Reserved.

Full MLS Disclaimers

Rebate estimate is indicative only and based on listing price and estimated buyer's agent commission paid by owner, if applicable. Final rebates are subject to Terms of Use and may vary due to final negotiated transaction terms.