Prevu by reAlpha
BuySellBlogBrowse Listings

98 Main StWenham, MA 01984

For Sale

$799,000

Smart Buyer Rebate $3,480

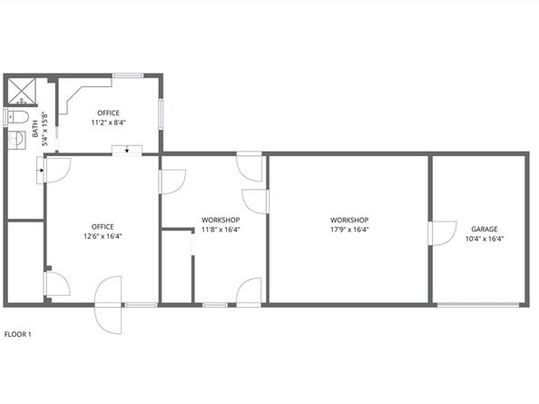
Endless opportunity to unlock the potential of this exceptional property located on a beautiful piece of property in Wenham. This New England home is offered to the market for the first time in generations. If these walls could talk they would reminisce of decades of the same family that have had the pleasure to say that this house is a home.The first floor unit has two bedrooms, office, kitchen, bath and enclosed porch. The second floor consists of one bedroom, kitchen, living room, office and bath.

Listed by Joyce Herman

·

J. Barrett & Company

·

617-680-5330

Last updated December 11, 2025

·

Source: MLSPin #73440618

Listing Facts

  • TypeMulti-family
  • NeighborhoodWenham
  • Bedrooms3
  • Bathrooms3
  • Days on Prevu66
  • Taxes$17,220/year
  • Size3,158 sqft
  • Price per sqft$253

Amenities

  • Dishwasher
  • Private Outdoor Space
  • Parking

Location

Mortgage Calculator

Listing History

12/11/2025
Price Decreased
$799,000
12/03/2025
Status changed to Active
$899,000
12/02/2025
Status changed to Pending
$899,000
10/29/2025
Price Decreased
$899,000
10/07/2025
Listed by J. Barrett & Company
$949,000

Property Details for 98 Main St

Association

Amenities

  • Community Features: Shopping, Park, Stable(s), Golf, Medical Facility, Bike Path, Highway Access, House Of Worship, Public School

Exterior

Construction

  • Number Of Units Total: 2
  • Roof: Shingle
  • Stories: 2
  • Stories Total: 2
  • Year Built: 1900
  • Year Built Details: Approximate
  • Construction Materials: Frame

Features

  • Patio And Porch Features: Enclosed
  • Road Frontage Type: Public

Measurements

  • Building Area Total: 3,158
  • Building Area Units: Square Feet
  • Lot Features: Wooded
  • Lot Size Acres: 0.92
  • Lot Size Area: 0
  • Lot Size Square Feet: 40,206
  • Lot Size Units: Acres

Financial

Taxes

  • Parcel Number: M:27 L:33B,3219873
  • Tax Annual Amount: $17,220.00
  • Tax Assessed Value: $1,108,100.00
  • Tax Year: 2025

Interior

Features

  • Appliances: Range, Dishwasher, Refrigerator
  • Flooring: Tile, Carpet, Hardwood
  • Interior Features: Living Room, Kitchen, Office/Den, Sunroom

Measurements

  • Living Area: 3,158
  • Living Area Source: Public Record

Rooms

  • Basement: Full
  • Bathrooms Full: 3
  • Bathrooms Total Integer: 3
  • Bedrooms Total: 3
  • Rooms Total: 9

Parking

Parking

  • Open Parking Spaces: 6
  • Open Parking: Yes
  • Parking Features: Paved Drive, Off Street
  • Parking Total: 6

Schools

Elementary School

  • Elementary School: Buker

High School

  • High School: Hwrhs

Middle or Junior School

  • Middle Or Junior School: Mrms

Utilities

Equipment

  • Electric: Circuit Breakers
  • Sewer: Private Sewer
  • Water Source: Public

Frequently Asked Questions

How many bedrooms and bathrooms does this multi-family home have?

There are 3 bedrooms and 3 bathrooms in this multi-family home at 98 Main St.

What schools are nearby to 98 Main St?

Nearby schools include the Buker Elementary School, Mrms Middle School, and Hwrhs High School.

Does this multi-family home have parking?

Yes, there are 6 parking spaces available for 98 Main St.

What are the annual taxes for 98 Main St?

Annual taxes for this multi-family home are estimated at $17,220.

What is the square footage on this multi-family home?

According to the MLS, this listing is 3,158 sqft.

98 Main St is a 3-bedroom, 3-bath multi-family home for sale in Wenham MA 01984. Available on Prevu for 66 days at $799,000. This includes a recent price decrease of $100,000. This residence features 3,158 square feet of living space, located in Essex County. The median listing price for multi-family homes in this area is $2,495,000. Nearby schools include Buker Elementary School, Mrms Middle School, and Hwrhs High School. Additional amenities include private outdoor space, dishwasher, and parking. Browse more multi-family home listings in Essex County.

The property listing data and information, or the Images, set forth herein were provided to MLS Property Information Network, Inc. from third party sources, including sellers, lessors, landlords and public records, and were compiled by MLS Property Information Network, Inc. The property listing data and information, and the Images, are for the personal, non commercial use of consumers having a good faith interest in purchasing, leasing or renting listed properties of the type displayed to them and may not be used for any purpose other than to identify prospective properties which such consumers may have a good faith interest in purchasing, leasing or renting. MLS Property Information Network, Inc. and its subscribers disclaim any and all representations and warranties as to the accuracy of the property listing data and information, or as to the accuracy of any of the Images, set forth herein.

Full MLS Disclaimers

Rebate estimate is indicative only and based on listing price and estimated buyer's agent commission paid by owner, if applicable. Final rebates are subject to Terms of Use and may vary due to final negotiated transaction terms.