Prevu by reAlpha
BuySellBlogBrowse Listings

851 Beech StreetGolden, CO 80401

For Sale

$705,000

Smart Buyer Rebate $7,050

Welcome to this cozy modern farmhouse-style home nestled in one of Golden’s most desirable neighborhoods. Perfectly positioned for both adventure and convenience, this property offers quick access to major highways and effortless commuting while placing the beauty of Colorado’s mountains just minutes from your doorstep.
Step inside and you’ll immediately feel the warm, inviting atmosphere created by bright living spaces and a thoughtfully designed layout. The home blends modern comfort with timeless farmhouse charm, creating the perfect environment for both everyday living and entertaining. Large windows invite natural light throughout the home, enhancing the welcoming feel and highlighting the comfortable living and dining spaces.

The kitchen serves as the heart of the home, offering a functional layout ideal for cooking, gathering, and creating lasting memories with family and friends. The surrounding living areas flow effortlessly, making the space both practical and inviting.

Outside, the property offers a peaceful setting with room to relax, garden, or simply enjoy the Colorado sunshine. The established neighborhood provides a quiet residential feel while still being just minutes from downtown Golden’s restaurants, breweries, shops, and outdoor recreation.

The unfinished basement is a true blank canvas waiting for the next owner’s vision. Whether you dream of creating a home gym, media room, additional bedrooms, or a custom entertainment space, the possibilities are endless.

With its charming character, fantastic location, and incredible potential for customization, this Golden gem offers a rare opportunity to create the lifestyle you’ve been looking for.

Listed by Matthew Tota

·

License #55054079

·

Realty Professionals LLC

·

719-964-7229

Listed by Greg Drake

·

License #036249

·

Realty Professionals LLC

Last updated March 15, 2026

·

Source: REcolorado #5795603

Listing Facts

  • TypeSingle-family
  • NeighborhoodAshwood
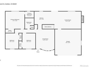
  • Bedrooms5
  • Bathrooms2
  • Days on Prevu1
  • Taxes$4,127/year
  • Size1,369 sqft
  • Price per sqft$515

Amenities

  • Private Outdoor Space
  • Air Conditioning
  • Parking

Location

Mortgage Calculator

Listing History

03/15/2026
Listed by Realty Professionals LLC
$705,000

Property Details for 851 Beech Street

Exterior

Construction

  • Roof: Composition
  • Structure Type: House
  • Year Built: 1978
  • Construction Materials: Brick, Frame
  • Exterior Features: Private Yard

Features

  • Patio And Porch Features: Covered

Measurements

  • Building Area Total: 2,452
  • Lot Size Acres: 0.24
  • Lot Size Area: 10,237
  • Lot Size Square Feet: 10,237
  • Lot Size Units: Square Feet

Financial

Taxes

  • Parcel Number: 092054
  • Tax Annual Amount: $4,127.00
  • Tax Year: 2024

Interior

Measurements

  • Living Area: 1,369

Rooms

  • Basement: Bath/Stubbed, Full, Unfinished
  • Has Basement: Yes
  • Bathrooms Full: 2
  • Bathrooms Total Integer: 2
  • Bedrooms Total: 5
  • Main Level Bathrooms: 2
  • Main Level Bedrooms: 3

Other

General

  • Exclusions: Sellers personal property

Location

  • Subdivision Name: John Bailey Sub

Parking

Parking

  • Attached Garage: Yes
  • Garage Spaces: 2
  • Parking Total: 2

Schools

Elementary School

  • Elementary School: Welchester
  • Elementary School District: Jefferson County R-1

High School

  • High School: Golden
  • High School District: Jefferson County R-1

Middle or Junior School

  • Middle Or Junior School: Bell
  • Middle Or Junior School District: Jefferson County R-1

Utilities

Equipment

  • Cooling: Central Air
  • Heating: Forced Air
  • Sewer: Public Sewer
  • Water Source: Public

Frequently Asked Questions

How many bedrooms and bathrooms does this single-family home have?

There are 5 bedrooms and 2 bathrooms in this single-family home at 851 Beech Street.

What schools are nearby to 851 Beech Street?

Nearby schools include the Welchester Elementary School, Bell Middle School, and Golden High School.

Does this single-family home have parking?

Yes, there are 2 parking spaces available for 851 Beech Street.

What are the annual taxes for 851 Beech Street?

Annual taxes for this single-family home are estimated at $4,127.

How does 851 Beech Street compare to other single-family homes in Ashwood?

This single-family home is listed 13% below the average price for single-family homes in Ashwood and has been on the market for 43 less days than the typical home in this area.

What is the square footage on this single-family home?

According to the MLS, this listing is 1,369 sqft.

851 Beech Street is a 5-bedroom, 2-bath single-family home for sale in Golden CO 80401. Available on Prevu for 1 days at $705,000. This home features 1,369 square feet of living space, located in Ashwood. The median listing price for single-family homes in this area is $807,000. Nearby schools include Welchester Elementary School, Bell Middle School, and Golden High School. The home offers private outdoor space, air conditioning, and parking. Browse more single-family home listings in Jefferson County.

The content relating to real estate for sale in this Web site comes in part from the Internet Data eXchange ("IDX") program of METROLIST, INC., DBA RECOLORADO® Real estate listings held by brokers other than Prevu are marked with the IDX Logo. This information is being provided for the consumers' personal, non-commercial use and may not be used for any other purpose. All information subject to change and should be independently verified.

Full MLS Disclaimers

Rebate estimate is indicative only and based on listing price and estimated buyer's agent commission paid by owner, if applicable. Final rebates are subject to Terms of Use and may vary due to final negotiated transaction terms.