Prevu by reAlpha
BuySellBlogBrowse Listings

845 NE 121st StNorth Miami, FL 33161

For Sale

$1,000,000

Smart Buyer Rebate $10,000

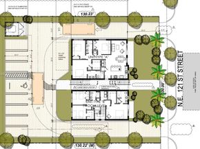
Prime development opportunity in North Miami. Oversized 13,000 sq ft lot with existing income-producing duplex currently leased. The property received administrative approval from the city of North Miami to construct a 5 unit multifamily building, offering excellent redevelopment potential. Investors may choose to renovate and hold the existing duplex for rental income or move forward with the approval multifamily project. Also, an ideal opportunity to build a custom dream home on a large lot just minutes from Miami Shores, top schools and neighborhood shops. The exiting duplex is currently leased and in need of renovations. Tenant occupied, Do Not Disturb tenants or walk the property.

Listed by Wendy Lavana

·

License #3264480

·

Torque Property Management

·

305-316-4245

Last updated March 08, 2026

·

Source: MIAMIRE #A11978086

Listing Facts

  • TypeMulti-family
  • NeighborhoodCentral North Miami
  • Days on Prevu11
  • Taxes$10,469/year
  • Size1,942 sqft
  • Price per sqft$515

Amenities

  • Pets Allowed
  • Air Conditioning
  • Parking

Location

Mortgage Calculator

Listing History

03/06/2026
Listed by Torque Property Management
$1,000,000

Property Details for 845 NE 121st St

Association

General

  • Number Of Units In Community: 2

Exterior

Construction

  • Roof: Shingle
  • Stories: 1
  • Stories Total: 1
  • Structure Type: Duplex
  • Year Built: 1947
  • Year Built Details: Effective Year Built
  • Architectural Style: Other
  • Building Name: BISCAYNE TERRACE
  • Construction Materials: Concrete Block Construction

Measurements

  • Building Area Total: 2,790
  • Building Area Units: Square Feet
  • Lot Features: 1/4 To Less Than 1/2 Acre Lot
  • Lot Size Units: Square Feet

Financial

Taxes

  • Parcel Number: 06-22-30-018-0280
  • Tax Annual Amount: $10,469.00
  • Tax Year: 2024

Interior

Features

  • Flooring: Ceramic Floor, Wood

Measurements

  • Living Area: 1,942
  • Living Area Units: Square Feet

Other

Location

  • Subdivision Name: BISCAYNE TERRACE

Parking

Parking

  • Parking Total: 5

Utilities

Equipment

  • Cooling: Central Air, Wall/Window Unit(s)
  • Has Cooling: Yes
  • Heating: Central, Window/Wall
  • Has Heating: Yes
  • Sewer: Public Sewer, Other

Frequently Asked Questions

How many bedrooms does this multi-family home have?

There is bedrooms in this multi-family home at 845 NE 121st St.

Does this multi-family home have parking?

Yes, there are 5 parking spaces available for 845 NE 121st St.

What are the annual taxes for 845 NE 121st St?

Annual taxes for this multi-family home are estimated at $10,469.

How does 845 NE 121st St compare to other multi-family homes in Central North Miami?

This multi-family home is listed 4% below the average price for multi-family homes in Central North Miami and has been on the market for 108 less days than the typical home in this area.

What building or home owners association is the multi-family home part of?

This multi-family home is in the BISCAYNE TERRACE building.

What is the square footage on this multi-family home?

According to the MLS, this listing is 1,942 sqft.

845 NE 121st St is a -bedroom multi-family home for sale in North Miami FL 33161. Listed on Prevu for 11 days at $1,000,000. This residence features 1,942 square feet of living space, located in Central North Miami. The median listing price for multi-family homes in this area is $245,000. Property amenities include pets allowed, air conditioning, and parking. Browse more multi-family home listings in North Miami.

Based on information from Miami Association of REALTORS and/or other sources. All data, including all measurements and calculations of area, is obtained from various sources and has not been, and will not be, verified by Prevu or the MLS. Information is provided exclusively for consumer's personal, non-commercial use and may not be used for any purpose other than to identify prospective properties consumer may be interested in purchasing.

Full MLS Disclaimers

Rebate estimate is indicative only and based on listing price and estimated buyer's agent commission paid by owner, if applicable. Final rebates are subject to Terms of Use and may vary due to final negotiated transaction terms.