BuySellBlogBrowse Listings

82 Barry LaneSyosset, NY 11791

For Sale

$1,248,000

Smart Buyer Rebate $12,480

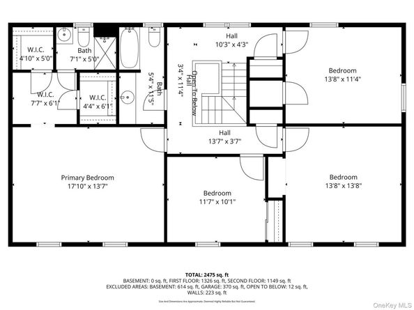
This 4-bedroom, 2.5-bath Colonial offers over 2,655 square feet of living space on a quiet, mid-block setting. The main floor features a spacious living room, a formal dining room, a family room with a wood-burning fireplace, and eat-in kitchen with access to the backyard deck.

Upstairs, the second floor includes four bedrooms: a primary suite with his and her walk-in closet, dressing room and private bath, plus three additional bedrooms - two with hardwood floors and one with its own walk-in closet, along with a full hallway bath.

Additional features include Andersen windows, 2-zone heating, in-ground sprinklers, a full basement, and a 2 car garage. Recent updates include a updated roof (2018), upgraded electrical (2016), new oil burner (2023), and new garage doors (2025).

The backyard offers mature plantings and a relaxing deck area, creating a comfortable outdoor retreat. With its highly desirable location just moments from the village, train, and village elementary school, this home offers endless potential to customize and make it your own.

Listed by Steven Shaughnessy

·

Charles Rutenberg Realty Inc

·

propertiesbyshaughnessy@gmail.com

Last updated October 19, 2025

·

Source: OneKey #925147

Listing Facts

  • TypeSingle-family
  • NeighborhoodSyosset
  • Bedrooms4
  • Bathrooms3
  • Days on Prevu7
  • Taxes$25,483.56/year
  • Size2,655 sqft
  • Price per sqft$470

Amenities

  • Dishwasher
  • Parking

Location

Mortgage Calculator

Listing History

10/16/2025
Listed by Charles Rutenberg Realty Inc
$1,248,000

Property Details for 82 Barry Lane

Exterior

Construction

  • Window Features: Double Pane Windows
  • Year Built: 1977
  • Architectural Style: Colonial
  • Construction Materials: Frame

Features

  • Direction Faces: North

Measurements

  • Building Area Total: 3,051
  • Building Area Units: Square Feet
  • Lot Size Acres: 0.26
  • Lot Size Square Feet: 11,526

Financial

Taxes

  • Parcel Number: 2489-15-F-00-1436-0
  • Tax Annual Amount: $25,483.56
  • Tax Assessed Value: $910.00
  • Tax Year: 2024

Interior

Features

  • Appliances: Dishwasher, Electric Cooktop
  • Fireplace Features: Wood Burning
  • Fireplace: Yes
  • Fireplaces Total: 1
  • Interior Features: Eat-in Kitchen, Entrance Foyer, Formal Dining, His And Hers Closets, Primary Bathroom, Walk-In Closet(s)

Measurements

  • Living Area: 2,655
  • Living Area Source: Public Records

Rooms

  • Basement: Unfinished
  • Has Basement: Yes
  • Bathrooms Full: 2
  • Bathrooms Half: 1
  • Bathrooms Total Integer: 3
  • Bedrooms Total: 4
  • Rooms Total: 9

Parking

Parking

  • Garage Spaces: 2
  • Garage: Yes
  • Parking Features: Driveway, Garage
  • Parking Total: 6

Schools

Elementary School

  • Elementary School: Village Elementary School
  • Elementary School District: Syosset

High School

  • High School: Syosset Senior High School
  • High School District: Syosset

Middle or Junior School

  • Middle Or Junior School: South Woods Middle School
  • Middle Or Junior School District: Syosset

Utilities

Equipment

  • Heating: Oil
  • Sewer: Public Sewer
  • Utilities: Sewer Connected, Trash Collection Public, Water Connected
  • Water Source: Public

The data relating to real estate for sale on this website comes in part from the IDX Program of OneKey™ MLS. The source of the displayed data is either the property owner or public record provided by non-governmental third parties. It is believed to be reliable but not guaranteed. This information is provided exclusively for consumers’ personal, non-commercial use. Information Copyright 2025, OneKey™ MLS. All Rights Reserved.

Full MLS Disclaimers

Rebate estimate is indicative only and based on listing price and estimated buyer's agent commission paid by owner, if applicable. Final rebates are subject to Terms of Use and may vary due to final negotiated transaction terms.