BuySellBlogBrowse Listings

8 Fieldstone Court 8Bethel, CT 06801

For Sale

$719,000

Smart Buyer Rebate $5,475

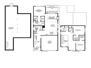
Introducing Phase 3 Fieldstone Commons. A Spectacular, newly constructed community that offers a low-maintenance lifestyle and energy conscious designs. Stand alone homes offering quality construction with high end features. 8 Fieldstone Court is currently under construction with a completion date spring 2026. This unit offers 2,166 Square Feet with open floor-plan. Stunning 2 story entry with open rail staircase leads to a custom kitchen and great room with tray ceiling, gas log fireplace and triple window sliding door to a private Nicoloc Paver patio. 4" Oak hardwood floors throughout. Main level Primary bedroom with 2 large walk-in closets and large bathroom with double sinks and walk-in shower. Upstairs has 2 additional bedrooms with large walk-in closets and an open loft for office or sitting area. Quality finishes throughout, efficient propane hot air heat with central A/C. This home also has a Spacious 2 Car Garage and a Full basement with the option to finish for an additional 686 square feet of space. Home is currently under construction. There is still time for you to customize the finishes! Convenient and central location off Stony Hill Road. Walking distance to restaurants and retail. Just minutes from Exits 8 and 9 on Interstate 84. Come see all that this new community has to offer! Fieldstone Commons A common interest community. Photos are from a similar unit in the same complex and may contain upgraded finishes. Estimated occupancy spring 2026

Listed by Jay Streaman

·

RE/MAX Right Choice

·

(203) 994-9421

Listed by Matt Streaman

·

RE/MAX Right Choice

Last updated October 14, 2025

·

Source: SmartMLS #24130962

Listing Facts

  • TypeCondo
  • NeighborhoodBethel
  • Bedrooms3
  • Bathrooms3
  • Days on Prevu21
  • HOA/Maint. Fees$413/month
  • Taxes$9,999/year
  • Size2,164 sqft
  • Price per sqft$332

Location

Mortgage Calculator

Listing History

10/03/2025
Listed by RE/MAX Right Choice
$719,000

Property Details for 8 Fieldstone Court 8

Association

Fees

  • Association Fee Includes: Grounds Maintenance, Trash Pickup, Snow Removal, Property Management, Road Maintenance

Exterior

Construction

  • New Construction: Under Construction
  • Number Of Units Total: 22
  • Year Built: 2026
  • Architectural Style: Single Family Detached
  • Construction Materials: Frame
  • Exterior Features: Porch, Patio

Features

  • Waterfront Features: Not Applicable

Measurements

  • Lot Features: Level Lot, On Cul-De-Sac

Financial

Taxes

  • Parcel Number: 999999999
  • Tax Annual Amount: $9,999.00
  • Tax Year: 25

Interior

Features

  • Appliances: Gas Range, Microwave, Range Hood, Refrigerator, Dishwasher
  • Fireplaces Total: 1
  • Interior Features: OPEN

Rooms

  • Basement: Full, Unfinished, Interior Access
  • Bathrooms Full: 2
  • Bathrooms Half: 1
  • Bathrooms Total Integer: 3
  • Bedrooms Total: 3
  • Rooms Total: 7

Parking

Parking

  • Attached Garage: Under House Garage, Paved, Driveway
  • Garage Spaces: 2
  • Parking Total: 4

Schools

Elementary School

  • Elementary School: Per Board Of Ed

High School

  • High School: Bethel

Middle or Junior School

  • Middle Or Junior School: Bethel

Utilities

Equipment

  • Cooling: Central Air
  • Heating: Hot Air
  • Laundry Features: Main Level
  • Sewer: Public Sewer Connected
  • Water Source: Public Water Connected

The data relating to real estate for sale on this website appears in part through the SMARTMLS Internet Data Exchange program, a voluntary cooperative exchange of property listing data between licensed real estate brokerage firms, and is provided by SMARTMLS through a licensing agreement. Listing information is from various brokers who participate in the SMARTMLS IDX program and not all listings may be visible on the site. The property information being provided on or through the website is for the personal, non-commercial use of consumers and such information may not be used for any purpose other than to identify prospective properties consumers may be interested in purchasing. Some properties which appear for sale on the website may no longer be available because they are for instance, under contract, sold or are no longer being offered for sale. Property information displayed is deemed reliable but is not guaranteed. Copyright 2025 SmartMLS, Inc.

Full MLS Disclaimers

Rebate estimate is indicative only and based on listing price and estimated buyer's agent commission paid by owner, if applicable. Final rebates are subject to Terms of Use and may vary due to final negotiated transaction terms.