BuySellBlogBrowse Listings

7329 Windsor DriveBoulder, CO 80301

For Sale

$1,200,000

Smart Buyer Rebate $12,000

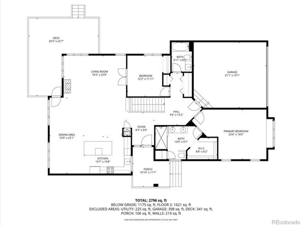
Welcome to this fully renovated, low-maintenance ranch-style patio home just blocks from Boulder Country Club—showcasing the community’s most coveted floor plan. Vaulted ceilings and an open, airy great room create seamless flow between living, dining, and the chef’s kitchen, newly finished with custom cabinetry, granite counters, an expanded island, vent hood, and high-end appliances. The main-floor primary suite offers a walk-in closet and a redesigned luxury bath with a spa-style shower.

Peace-of-mind improvements include new plumbing fixtures, brand-new furnace and A/C, sewer line repairs with cleanouts, a new radon mitigation system, a new dual-pit sump system with reinforced foundation, and all-new electrical with LED lighting. The finished basement adds a large family room, guest suite, craft/bonus room, and a new wet bar—perfect for entertaining. Additional upgrades include flooring, tile, fireplace stone, millwork, paint, and hardware. Relax on the wrap-around deck and enjoy true lock-and-leave living—HOA covers all landscaping and snow removal.

Listed by John Bruce

·

License #55061250

·

eXp Realty, LLC

·

720-253-9704

Last updated October 25, 2025

·

Source: REcolorado #9820445

Listing Facts

  • TypeSingle-family
  • NeighborhoodGunbarrel
  • Bedrooms3
  • Bathrooms3
  • Days on Prevu17
  • HOA/Maint. Fees$370/month
  • Taxes$4,849/year
  • Size3,329 sqft
  • Price per sqft$360

Amenities

  • Dishwasher
  • Private Outdoor Space
  • Pets Allowed
  • Air Conditioning
  • Parking

Location

Mortgage Calculator

Listing History

10/09/2025
Listed by eXp Realty, LLC
$1,200,000

Property Details for 7329 Windsor Drive

Association

Amenities

  • Association Amenities: Trail(s)
  • Pets Allowed: Cats OK, Dogs OK

Fees

  • Association Fee: $370.00 Monthly
  • Association Fee Includes: Maintenance Grounds, Recycling, Snow Removal, Trash

General

  • Association Name: Buckingham Ridge HOA

Exterior

Construction

  • Property Condition: Updated/Remodeled
  • Roof: Composition
  • Structure Type: House
  • Window Features: Egress Windows, Skylight(s)
  • Year Built: 1990
  • Common Walls: No Common Walls
  • Construction Materials: Brick, Frame

Features

  • Patio And Porch Features: Deck, Wrap Around

Measurements

  • Building Area Total: 3,329
  • Lot Size Acres: 0.11
  • Lot Size Area: 4,903
  • Lot Size Square Feet: 4,903
  • Lot Size Units: Square Feet

Financial

Taxes

  • Parcel Number: R0108252
  • Tax Annual Amount: $4,849.00
  • Tax Year: 2024

Interior

Features

  • Appliances: Cooktop, Dishwasher, Disposal, Microwave, Range, Refrigerator
  • Fireplace Features: Living Room
  • Fireplaces Total: 1
  • Flooring: Carpet, Wood
  • Interior Features: Granite Counters, High Ceilings, Kitchen Island, Open Floorplan, Primary Suite, Radon Mitigation System, Smoke Free, Vaulted Ceiling(s), Walk-In Closet(s), Wet Bar

Measurements

  • Living Area: 3,329

Rooms

  • Basement: Finished
  • Has Basement: Yes
  • Bathrooms Full: 3
  • Bathrooms Total Integer: 3
  • Bedrooms Total: 3
  • Main Level Bathrooms: 2
  • Main Level Bedrooms: 2

Other

General

  • Exclusions: Staging Items

Location

  • Subdivision Name: Buckingham Ridge

Parking

Parking

  • Attached Garage: Yes
  • Garage Spaces: 2
  • Parking Features: Concrete
  • Parking Total: 2

Schools

Elementary School

  • Elementary School: Heatherwood
  • Elementary School District: Boulder Valley RE 2

High School

  • High School: Fairview
  • High School District: Boulder Valley RE 2

Middle or Junior School

  • Middle Or Junior School: Platt
  • Middle Or Junior School District: Boulder Valley RE 2

Utilities

Equipment

  • Cooling: Central Air
  • Heating: Forced Air, Natural Gas
  • Laundry Features: In Unit
  • Sewer: Public Sewer
  • Water Source: Public

The content relating to real estate for sale in this Web site comes in part from the Internet Data eXchange ("IDX") program of METROLIST, INC., DBA RECOLORADO® Real estate listings held by brokers other than Prevu are marked with the IDX Logo. This information is being provided for the consumers' personal, non-commercial use and may not be used for any other purpose. All information subject to change and should be independently verified.

Full MLS Disclaimers

Rebate estimate is indicative only and based on listing price and estimated buyer's agent commission paid by owner, if applicable. Final rebates are subject to Terms of Use and may vary due to final negotiated transaction terms.