Prevu by reAlpha
BuySellBlogBrowse Listings

725 E 21St StOakland, CA 94606

For Sale

$799,999

Smart Buyer Rebate $7,500

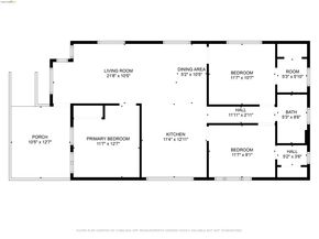
Chapter 11 Bankruptcy Sale, court approval required. As-Is sale. Call listing agent for details. Historic Charm Meets Modern Living in Ivy Hill. Discover the perfect blend of classic character and contemporary updates in this beautifully updated home, ideally located in Oakland’s desirable Ivy Hill neighborhood. Perched on an elevated 5,000 sq ft lot, this 5-bedroom, 2-bathroom residence offers 1,559 SQFT + finished lower level. 3/1 upper & 2/1 lower. Flexible layouts for all. Step inside to an inviting open-concept living and dining area, highlighted by newly refinished hardwood floors and fresh interior and exterior paint that create a bright, welcoming ambiance. The fully remodeled kitchen featuring sleek stainless steel appliances, custom cabinetry, and stylish modern fixtures.. Downstairs, offers incredible flexibility-ideal for a home office, gym, guest suite, or future rental opportunity. Outside, the spacious lot offers room to grow, with the potential to add an Accessory Dwelling Unit, create an urban garden, or simply enjoy the ample outdoor space. Generous off-street parking in the large concrete pad makes daily living and entertaining easy All of this, just minutes from Lake Merritt, BART, cafes, & grocery stores.

Listed by Sunny Wong

·

License #02134214

·

eXp Realty of California

·

sunny@fastagents.com

Last updated January 27, 2026

·

Source: bridgeMLS #41113022

Listing Facts

  • TypeSingle-family
  • NeighborhoodIvy Hill
  • Bedrooms5
  • Bathrooms2
  • Days on Prevu124
  • Size1,559 sqft
  • Price per sqft$513

Amenities

  • Parking
  • Swimming Pool

Location

Mortgage Calculator

Listing History

01/27/2026
Price Increased
$799,999
09/27/2025
Listed by eXp Realty of California
$699,000

Property Details for 725 E 21St St

Exterior

Construction

  • Roof: Shingle
  • Stories: 2
  • Year Built: 1880
  • Architectural Style: Craftsman
  • Construction Materials: Siding - Stucco
  • Exterior Features: Back Yard

Features

  • Fencing: Fenced

Measurements

  • Building Area Total: 1,559
  • Lot Features: Premium Lot, Back Yard
  • Lot Size Acres: 0.12
  • Lot Size Area: 0
  • Lot Size Square Feet: 5,000
  • Lot Size Units: Acres

Financial

Taxes

  • Parcel Number: 212723

Interior

Features

  • Appliances: Gas Range, Microwave, Gas Water Heater
  • Flooring: Hardwood, Vinyl

Measurements

  • Living Area: 1,559
  • Living Area Units: Square Feet

Rooms

  • Bathrooms Full: 2
  • Bathrooms Total Integer: 2
  • Bedrooms Total: 5
  • Rooms Total: 7

Other

Location

  • Subdivision Name: IVY HILL

Parking

Parking

  • Parking Features: Off Street

Utilities

Equipment

  • Electric: No Solar
  • Heating: Forced Air
  • Has Heating: Yes
  • Laundry Features: Hookups Only
  • Utilities: Natural Gas Connected

Frequently Asked Questions

How many bedrooms and bathrooms does this single-family home have?

There are 5 bedrooms and 2 bathrooms in this single-family home at 725 E 21St St.

How does 725 E 21St St compare to other single-family homes in Ivy Hill?

This single-family home is listed 7% below the average price for single-family homes in Ivy Hill and has been on the market for 20 more days than the typical home in this area.

What is the square footage on this single-family home?

According to the MLS, this listing is 1,559 sqft.

725 E 21St St is a 5-bedroom, 2-bath single-family home for sale in Oakland CA 94606. On Prevu for 124 days at $799,999. This includes a recent price increase of $100,999. This home features 1,559 square feet of living space, located in Oakland. The median listing price for single-family homes in this area is $949,000. Property amenities include parking and swimming pool. Browse more single-family home listings in Oakland.

Based on information from bridgeMLS and/or other sources. All data, including all measurements and calculations of area, is obtained from various sources and has not been, and will not be, verified by Prevu or the MLS. Information is provided exclusively for consumer's personal, non-commercial use and may not be used for any purpose other than to identify prospective properties consumer may be interested in purchasing.

Full MLS Disclaimers

Rebate estimate is indicative only and based on listing price and estimated buyer's agent commission paid by owner, if applicable. Final rebates are subject to Terms of Use and may vary due to final negotiated transaction terms.