Prevu by reAlpha
BuySellBlogBrowse Listings

68 State Route 37New Fairfield, CT 06812

For Sale

$984,500

Smart Buyer Rebate $9,845

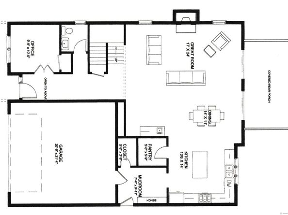
Welcome to this stunning new construction Colonial-style home, perfectly blending modern convenience with timeless charm. Situated on over an acre of land, this property has the space and flexibility you've been searching for. Step into an open-concept main level designed for effortless living and entertaining (9ft ceilings). The kitchen, with a walk-in pantry, dining area, and great room featuring a cozy gas fireplace and sliders to the back deck, is the heart of this home. Customization awaits with generous allowances for GE Cafe appliances, countertops, cabinets, lighting fixtures, and hardware, allowing you to create your dream kitchen and baths. An additional office on the main level provides a private and functional workspace. Upstairs, the well-thought-out layout includes four spacious bedrooms, including a luxurious primary suite (8ft ceilings). The primary suite boasts a full bath with a private toilet room, a walk-in closet, and a extra office space. The upper-level laundry room adds convenience to your daily routine. A 2-car garage completes this remarkable home, offering modern amenities and exceptional design on a picturesque lot. Don't miss the opportunity to make this customizable new construction your forever home!

Listed by Matt Rose

·

Keller Williams Realty

·

(203) 470-9115

Last updated October 07, 2025

·

Source: SmartMLS #24126781

Listing Facts

  • TypeSingle-family
  • NeighborhoodNew Fairfield
  • Bedrooms4
  • Bathrooms3
  • Days on Prevu116
  • Taxes$2,804/year
  • Size2,940 sqft
  • Price per sqft$335

Location

Mortgage Calculator

Listing History

10/06/2025
Listed by Keller Williams Realty
$984,500

Property Details for 68 State Route 37

Exterior

Construction

  • New Construction: To Be Built
  • Roof: Asphalt Shingle
  • Year Built: 2026
  • Architectural Style: Colonial
  • Construction Materials: Frame
  • Exterior Features: Porch-Enclosed, Porch, Gutters, Deck

Features

  • Waterfront Features: Not Applicable

Measurements

  • Lot Features: Level Lot
  • Lot Size Acres: 1.10

Financial

Taxes

  • Parcel Number: 1749227
  • Tax Annual Amount: $2,804.00
  • Tax Year: 25

Interior

Features

  • Appliances: Allowance
  • Fireplaces Total: 1
  • Interior Features: OPEN

Rooms

  • Basement: Full, Unfinished
  • Bathrooms Full: 2
  • Bathrooms Half: 1
  • Bathrooms Total Integer: 3
  • Bedrooms Total: 4
  • Rooms Total: 9

Parking

Parking

  • Attached Garage: Attached Garage
  • Garage Spaces: 2

Schools

Elementary School

  • Elementary School: Per Board Of Ed

High School

  • High School: Per Board Of Ed

Utilities

Equipment

  • Cooling: Central Air, Zoned
  • Heating: Hot Water
  • Laundry Features: Upper Level
  • Sewer: Septic
  • Water Source: Private Well

Frequently Asked Questions

How many bedrooms and bathrooms does this single-family home have?

There are 4 bedrooms and 3 bathrooms in this single-family home at 68 State Route 37.

What schools are nearby to 68 State Route 37?

Nearby schools include the Per Board Of Ed Elementary School and Per Board Of Ed High School.

Does this single-family home have parking?

Yes, there are 2 parking spaces available for 68 State Route 37.

What are the annual taxes for 68 State Route 37?

Annual taxes for this single-family home are estimated at $2,804.

How does 68 State Route 37 compare to other single-family homes in New Fairfield?

This single-family home is listed 17% above the average price for single-family homes in New Fairfield and has been on the market for 56 more days than the typical home in this area.

What is the square footage on this single-family home?

According to the MLS, this listing is 2,940 sqft.

68 State Route 37 is a 4-bedroom, 3-bath single-family home for sale in New Fairfield CT 06812. On Prevu for 116 days at $984,500. This property features 2,940 square feet of living space, located in New Fairfield. The median listing price for single-family homes in this area is $569,900. Nearby schools include Per Board Of Ed Elementary School and Per Board Of Ed High School. Explore more single-family home listings in Fairfield County.

The data relating to real estate for sale on this website appears in part through the SMARTMLS Internet Data Exchange program, a voluntary cooperative exchange of property listing data between licensed real estate brokerage firms, and is provided by SMARTMLS through a licensing agreement. Listing information is from various brokers who participate in the SMARTMLS IDX program and not all listings may be visible on the site. The property information being provided on or through the website is for the personal, non-commercial use of consumers and such information may not be used for any purpose other than to identify prospective properties consumers may be interested in purchasing. Some properties which appear for sale on the website may no longer be available because they are for instance, under contract, sold or are no longer being offered for sale. Property information displayed is deemed reliable but is not guaranteed. Copyright 2025 SmartMLS, Inc.

Full MLS Disclaimers

Rebate estimate is indicative only and based on listing price and estimated buyer's agent commission paid by owner, if applicable. Final rebates are subject to Terms of Use and may vary due to final negotiated transaction terms.