Prevu by reAlpha
BuySellBlogBrowse Listings

6206 PontiacSan Diego, CA 92115

For Sale

$2,170,000

Smart Buyer Rebate $21,700

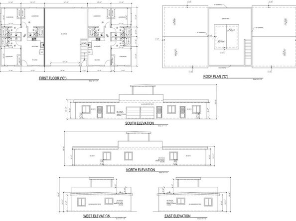
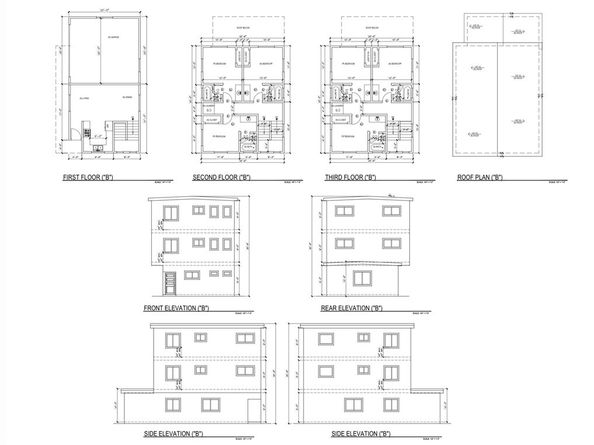
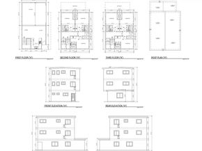
High-density residential development opportunity featuring four units, suitable for the construction of up to 18 bedrooms and 18 bathrooms, with multiple garages. The proposed project offers a total building area of approximately 6,800 square feet, situated on an approximately 8,800 square-foot lot. Proposed plans are available for review; upon buyer’s approval, plans may be submitted immediately, with an estimated approval timeline of approximately six months, subject to city review and approval. Estimated construction costs are approximately $180 per square foot; please contact the listing agent for additional details. Drive-by viewing only; please do not disturb tenants. Buyer to independently verify all information; seller makes no representations or warranties as to accuracy.

Listed by Zhu Liu

·

License #02116709

·

Pinnacle Real Estate Group

·

626-233-3077

Last updated February 24, 2026

·

Source: CRMLS #OC26027801

Listing Facts

  • TypeSingle-family
  • NeighborhoodCollege East
  • Bedrooms3
  • Bathrooms1.5
  • Days on Prevu38
  • Size2,152 sqft
  • Price per sqft$1,008

Amenities

  • Dishwasher
  • Air Conditioning
  • Parking

Location

Mortgage Calculator

Listing History

02/07/2026
Price Increased
$2,170,000
02/06/2026
Listed by Pinnacle Real Estate Group
$2,140,000

Property Details for 6206 Pontiac

Association

Amenities

  • Community Features: Biking, Sidewalks, Urban

Exterior

Construction

  • Number Of Units Total: 1
  • Stories: 1
  • Stories Total: 1
  • Structure Type: House
  • Window Features: Blinds, Garden Window(s)
  • Year Built: 1949
  • Common Walls: No Common Walls
  • Entry Level: 1
  • Entry Location: 1st Floor

Features

  • View: Neighborhood

Measurements

  • Lot Features: Item01Unit Acre
  • Lot Size Acres: 0.20
  • Lot Size Area: 8,800
  • Lot Size Source: Public Records
  • Lot Size Square Feet: 8,800
  • Lot Size Units: Square Feet

Financial

Taxes

  • Parcel Number: 4672910300

Interior

Features

  • Appliances: Barbecue, Dishwasher, Gas Cooktop, Microwave, Refrigerator, Range Hood
  • Fireplace Features: Living Room
  • Fireplace: Yes
  • Flooring: Tile, Wood
  • Interior Features: Ceiling Fan(s), Storage, Bedroom On Main Level, Main Level Primary, Walk-In Closet(s)

Measurements

  • Living Area: 2,152
  • Living Area Source: Assessor
  • Living Area Units: Square Feet

Rooms

  • Bathrooms Full: 1
  • Bathrooms Half: 1
  • Bathrooms Total Integer: 2
  • Bedrooms Total: 3
  • Main Level Bathrooms: 2
  • Main Level Bedrooms: 3

Other

Location

  • Subdivision Name: San Diego
  • Tax Lot: 100

Parking

Parking

  • Attached Garage: Yes
  • Garage Spaces: 2
  • Garage: Yes
  • Open Parking Spaces: 2
  • Parking Features: Driveway Up Slope From Street, Garage
  • Parking Total: 4

Schools

High School

  • High School District: San Diego Unified

Utilities

Equipment

  • Cooling: Central Air
  • Has Cooling: Yes
  • Electric: Standard
  • Heating: Central
  • Has Heating: Yes
  • Laundry Features: In Garage
  • Sewer: Public Sewer
  • Utilities: See Remarks
  • Water Source: Public

Frequently Asked Questions

How many bedrooms and bathrooms does this single-family home have?

There are 3 bedrooms and 1.5 bathrooms in this single-family home at 6206 Pontiac.

Does this single-family home have parking?

Yes, there are 2 parking spaces available for 6206 Pontiac.

How does 6206 Pontiac compare to other single-family homes in College East?

This single-family home is listed 103% above the average price for single-family homes in College East and has been on the market for 6 more days than the typical home in this area.

What is the square footage on this single-family home?

According to the MLS, this listing is 2,152 sqft.

6206 Pontiac is a 3-bedroom, 1.5-bath single-family home for sale in San Diego CA 92115. Available on Prevu for 38 days at $2,170,000. This includes a recent price increase of $30,000. This property features 2,152 square feet of living space, located in College East. The median listing price for single-family homes in this area is $755,000. Additional amenities include dishwasher, air conditioning, and parking. Explore more single-family home listings in San Diego.

Based on information from California Regional Multiple Listing Service, Inc. and/or other sources. All data, including all measurements and calculations of area, is obtained from various sources and has not been, and will not be, verified by Prevu or the MLS. Information is provided exclusively for consumer's personal, non-commercial use and may not be used for any purpose other than to identify prospective properties consumer may be interested in purchasing.

Full MLS Disclaimers

Rebate estimate is indicative only and based on listing price and estimated buyer's agent commission paid by owner, if applicable. Final rebates are subject to Terms of Use and may vary due to final negotiated transaction terms.