BuySellBlogBrowse Listings

62 Summit StreetHicksville, NY 11801

For Sale

$875,000

Smart Buyer Rebate $8,750

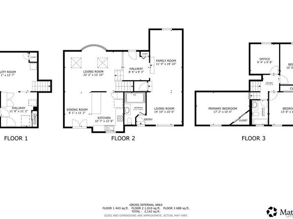
This beautifully maintained single-family split-level home offers 4 spacious bedrooms and 2 full bathrooms in the desirable Hicksville School District. Built in 1959 and thoughtfully updated, the home features a modern kitchen with stainless steel appliances, renovated bathrooms, and an open split-level layout ideal for today’s lifestyle.

Enjoy hardwood floors throughout, abundant natural light from skylights, and a fully finished basement providing additional living space. Outdoor living is equally inviting with a large patio, small deck, and a two-car driveway.

Move-in ready and well cared for, this property combines comfort, style, and convenience in a prime location close to schools, shopping, dining, and transportation.

Listed by Joel George

·

Real Broker NY LLC

·

516-427-7271

Last updated October 21, 2025

·

Source: OneKey #913367

Listing Facts

  • TypeSingle-family
  • NeighborhoodHicksville
  • Bedrooms4
  • Bathrooms2
  • Days on Prevu36
  • Taxes$13,082.86/year
  • Size2,142 sqft
  • Price per sqft$408

Amenities

  • Dishwasher
  • Washer/Dryer
  • Air Conditioning
  • Parking

Location

Mortgage Calculator

Listing History

10/21/2025
Price Decreased
$875,000
09/16/2025
Listed by Real Broker NY LLC
$888,000

Property Details for 62 Summit Street

Exterior

Construction

  • Property Condition: Actual
  • Year Built: 1959
  • Architectural Style: Split Level
  • Construction Materials: Aluminum Siding, Brick

Features

  • Direction Faces: North

Measurements

  • Building Area Total: 1,973
  • Building Area Units: Square Feet
  • Lot Size Acres: 0.16
  • Lot Size Dimensions: 70,100
  • Lot Size Square Feet: 7,000

Financial

Taxes

  • Parcel Number: 2489-12-264-00-0033-0
  • Tax Annual Amount: $13,082.86
  • Tax Year: 2025

Interior

Features

  • Appliances: Dishwasher, Dryer, Electric Range, Refrigerator, Washer
  • Flooring: Wood
  • Interior Features: Cathedral Ceiling(s)

Measurements

  • Living Area: 2,142
  • Living Area Source: Measured

Rooms

  • Basement: Finished, Partial
  • Has Basement: Yes
  • Bathrooms Full: 2
  • Bathrooms Total Integer: 2
  • Bedrooms Total: 4
  • Rooms Total: 11

Other

General

  • Exclusions: Raised garden flower beds in back yard, trees and bushes to the left of the driveway, basement refrigerator, chest freezer, wine fridge

Location

  • Tax Block: 264
  • Tax Lot: 33

Parking

Parking

  • Parking Features: Driveway
  • Parking Total: 2

Schools

Elementary School

  • Elementary School: Woodland Avenue School
  • Elementary School District: Hicksville

High School

  • High School: Hicksville High School
  • High School District: Hicksville

Middle or Junior School

  • Middle Or Junior School: Hicksville Middle School
  • Middle Or Junior School District: Hicksville

Utilities

Equipment

  • Cooling: Central Air
  • Heating: Oil
  • Laundry Features: Electric Dryer Hookup, In Basement
  • Sewer: Public Sewer
  • Utilities: Electricity Connected
  • Water Source: Public

The data relating to real estate for sale on this website comes in part from the IDX Program of OneKey™ MLS. The source of the displayed data is either the property owner or public record provided by non-governmental third parties. It is believed to be reliable but not guaranteed. This information is provided exclusively for consumers’ personal, non-commercial use. Information Copyright 2025, OneKey™ MLS. All Rights Reserved.

Full MLS Disclaimers

Rebate estimate is indicative only and based on listing price and estimated buyer's agent commission paid by owner, if applicable. Final rebates are subject to Terms of Use and may vary due to final negotiated transaction terms.