Prevu by reAlpha
BuySellBlogBrowse Listings

613 Pine StreetBoulder, CO 80302

For Sale

$3,200,000

Smart Buyer Rebate $32,000

"Charming Triplex on Historic Mapleton Hill". Located in Boulder's coveted Mapleton Hill neighborhood, 613 Pine Street offers a rare opportunity to own a beautifully maintained triplex in a prime location. This is a great income property (all units are currently fully leased until Summer of 2026) and is perfect for investors or homeowners looking for income-generating opportunities; Or can easily be converted to a spacious, single-family residence. Enjoy easy access to hiking trails, shopping, dining, and all the amenities Boulder has to offer. This property features spacious, light-filled units with a blend of historic charm and modern updates. With around $250k in fresh upgrades throughout including new EV charging station, this residence is ready for many years and memories to come. Whether you're seeking a place to call home or a smart investment, this triplex offers incredible value in one of Boulder's most sought-after areas. Don't miss your chance to own a piece of Boulder history!

Listed by Jung Lindas

·

License #IRP29108

·

Slifer Smith & Frampton-Bldr

·

303-775-5593

Last updated November 10, 2025

·

Source: REcolorado #IR1044026

Listing Facts

  • TypeMulti-family
  • NeighborhoodMapleton Hill
  • Days on Prevu87
  • Taxes$18,473/year

Amenities

  • Dishwasher
  • Private Outdoor Space
  • Washer/Dryer
  • Air Conditioning
  • Parking

Location

Mortgage Calculator

Listing History

09/19/2025
Listed by Slifer Smith & Frampton-Bldr
$3,200,000

Property Details for 613 Pine Street

Exterior

Construction

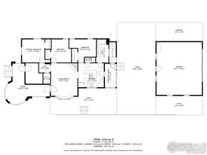
  • Number Of Units Total: 3
  • Property Attached: Yes
  • Roof: Composition
  • Window Features: Bay Window(s)
  • Year Built: 1900
  • Architectural Style: Victorian
  • Construction Materials: Stone, Frame
  • Entry Location: Exterior Access

Features

  • Direction Faces: South
  • Patio And Porch Features: Patio
  • Road Frontage Type: Public
  • View: Mountain(s)

Measurements

  • Building Area Total: 3,072
  • Lot Features: Historical District, Sprinklers In Front
  • Lot Size Acres: 0.16
  • Lot Size Square Feet: 7,068

Financial

Residential Income

  • Cap Rate: 3.34
  • Operating Expense: $18,473.00

Taxes

  • Parcel Number: R0002224
  • Tax Annual Amount: $18,473.00
  • Tax Year: 2024

Interior

Features

  • Appliances: Dishwasher, Dryer, Microwave, Oven, Refrigerator, Washer
  • Flooring: Wood
  • Interior Features: Eat-in Kitchen, Walk-In Closet(s)

Rooms

  • Basement: Walk-Out Access
  • Has Basement: Yes

Other

Location

  • Subdivision Name: Mapleton

Parking

Parking

  • Parking Total: 3

Schools

Elementary School

  • Elementary School: Whittier E-8
  • Elementary School District: Boulder Valley RE 2

High School

  • High School: Boulder
  • High School District: Boulder Valley RE 2

Middle or Junior School

  • Middle Or Junior School: Casey

Utilities

Equipment

  • Cooling: Air Conditioning-Room, Central Air
  • Heating: Forced Air
  • Laundry Features: In Unit
  • Sewer: Public Sewer
  • Utilities: Cable Available, Electricity Available, Natural Gas Available
  • Water Source: Public

Frequently Asked Questions

How many bedrooms does this multi-family home have?

There is bedrooms in this multi-family home at 613 Pine Street.

What schools are nearby to 613 Pine Street?

Nearby schools include the Whittier E-8 Elementary School, Casey Middle School, and Boulder High School.

Does this multi-family home have parking?

Yes, there are 3 parking spaces available for 613 Pine Street.

What are the annual taxes for 613 Pine Street?

Annual taxes for this multi-family home are estimated at $18,473.

How does 613 Pine Street compare to other multi-family homes in Mapleton Hill?

This multi-family home is listed 3% below the average price for multi-family homes in Mapleton Hill and has been on the market for 50 more days than the typical home in this area.

613 Pine Street is a -bedroom multi-family home for sale in Boulder CO 80302. On Prevu for 87 days at $3,200,000. This home is located in Mapleton Hill. The median listing price for multi-family homes in this area is $1,535,000. Nearby schools include Whittier E-8 Elementary School, Casey Middle School, and Boulder High School. Property amenities include private outdoor space, dishwasher, air conditioning, parking, and washer/dryer. View other multi-family home listings in Boulder.

The content relating to real estate for sale in this Web site comes in part from the Internet Data eXchange ("IDX") program of METROLIST, INC., DBA RECOLORADO® Real estate listings held by brokers other than Prevu are marked with the IDX Logo. This information is being provided for the consumers' personal, non-commercial use and may not be used for any other purpose. All information subject to change and should be independently verified.

Full MLS Disclaimers

Rebate estimate is indicative only and based on listing price and estimated buyer's agent commission paid by owner, if applicable. Final rebates are subject to Terms of Use and may vary due to final negotiated transaction terms.