BuySellBlogBrowse Listings

58 Academy Hill TerraceStratford, CT 06615

For Sale

$739,000

Smart Buyer Rebate $5,975

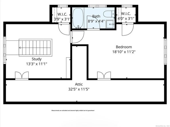
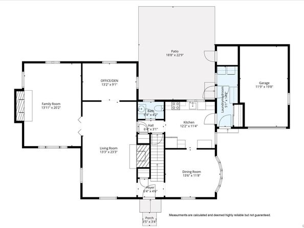
Welcome to 58 Academy Hill Terrace on a quiet cul-de-sac in the heart of Stratford's Historic District. This quintessential barn red saltbox-style Colonial overlooks the salt marsh and views of the Housatonic River. On the main level is a large living room with wood-burning fireplace, home office/den, family room with wood-burning fireplace, separate dining room with bowed bay window, remodeled kitchen and laundry room. On the second level is the primary bedroom, 2 other bedrooms, an over-sized cedar closet, and a remodeled bathroom with walk-in shower. The third level has a generous-sized bedroom, an adjoining study with built-in bookshelves and a full bath as well as storage under the eaves. All three of the living levels have oak hardwood floors. A one car attached garage (former inside door connecting to garage is now a closet), a rear slate patio and storage shed complete the main level. On the lower garden-level is an in-ground pool (now covered). This property is a short walk to MetroNorth, bus service, the public library, Sterling Community Center, restaurants, marinas, a private school and churches. Enjoy Stratford's two public beaches on Long Island Sound, the public golf course and tennis courts at Short Beach and Roosevelt Forest in the north end for hiking and biking trails. Close to I-95 and the Merritt Parkway.

Listed by Emily O'connor Karolyi

·

Century 21 AllPoints Realty

·

(203) 522-1228

Last updated October 22, 2025

·

Source: SmartMLS #24132422

Listing Facts

  • TypeSingle-family
  • NeighborhoodStratford Center Historic District
  • Bedrooms4
  • Bathrooms3
  • Days on Prevu14
  • Taxes$9,846/year
  • Size2,533 sqft
  • Price per sqft$292

Location

Mortgage Calculator

Listing History

10/09/2025
Listed by Century 21 AllPoints Realty
$739,000

Property Details for 58 Academy Hill Terrace

Exterior

Construction

  • New Construction: No/Resale
  • Roof: Asphalt Shingle
  • Year Built: 1940
  • Year Built Details: Public Records
  • Architectural Style: Colonial
  • Construction Materials: Frame
  • Exterior Features: Sidewalk, Gutters, Patio

Features

  • Pool Features: Safety Fence, In Ground Pool
  • Pool Private: Yes
  • Waterfront Features: Walk to Water, View, Seasonal

Measurements

  • Lot Features: Level Lot, Sloping Lot, On Cul-De-Sac, Historic District
  • Lot Size Acres: 0.38

Financial

Taxes

  • Parcel Number: 362681
  • Tax Annual Amount: $9,846.00
  • Tax Year: 25

Interior

Features

  • Appliances: Electric Range, Microwave, Refrigerator, Dishwasher, Washer, Dryer
  • Fireplaces Total: 2
  • Interior Features: DROPEN

Measurements

  • Living Area: 2,533

Rooms

  • Basement: Partial, Unfinished
  • Bathrooms Full: 2
  • Bathrooms Half: 1
  • Bathrooms Total Integer: 3
  • Bedrooms Total: 4
  • Rooms Total: 9

Parking

Parking

  • Attached Garage: Attached Garage, On Street Parking, Driveway
  • Garage Spaces: 1
  • Parking Total: 4

Schools

Elementary School

  • Elementary School: Per Board Of Ed

High School

  • High School: Stratford

Utilities

Equipment

  • Cooling: Central Air
  • Heating: Hot Water
  • Laundry Features: Main Level
  • Sewer: Public Sewer Connected
  • Water Source: Public Water Connected

The data relating to real estate for sale on this website appears in part through the SMARTMLS Internet Data Exchange program, a voluntary cooperative exchange of property listing data between licensed real estate brokerage firms, and is provided by SMARTMLS through a licensing agreement. Listing information is from various brokers who participate in the SMARTMLS IDX program and not all listings may be visible on the site. The property information being provided on or through the website is for the personal, non-commercial use of consumers and such information may not be used for any purpose other than to identify prospective properties consumers may be interested in purchasing. Some properties which appear for sale on the website may no longer be available because they are for instance, under contract, sold or are no longer being offered for sale. Property information displayed is deemed reliable but is not guaranteed. Copyright 2025 SmartMLS, Inc.

Full MLS Disclaimers

Rebate estimate is indicative only and based on listing price and estimated buyer's agent commission paid by owner, if applicable. Final rebates are subject to Terms of Use and may vary due to final negotiated transaction terms.