BuySellBlogBrowse Listings

49 Bellwood AvenueSouth Setauket, NY 11720

For Sale

$585,000

Smart Buyer Rebate $2,125

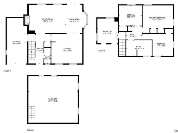
Three Village School District and A Full Basement, This 4 Bedroom, 1.5 Bath Colonial Checks All The Boxes and is Move in Ready! Step Inside to Hardwood Floors through First Floor, Brand New Eat in Kitchen with Ceiling High Cabinets with Soft Close Feature, Quartz Countertops, Brand New Stainless Steel Appliances. Perfect for Entertaining, Enjoy the Open Concept Dining Room and Living Room with Wood Burning Fireplace and Tons of Natural Light. Renovated Half Bath on First Floor is Perfect for Guests. Upstairs, You’ll Find Brand New Vinyl Flooring, 4 Bedrooms, including a Nice Sized Primary with Double Closets, Expansive Full Bath with Jacuzzi Tub with New Tiling and Vanity. Large Unfinished Basement with Epoxy Floors. Enjoy Gas Heat and Cooking, Upgraded Heating System (Forced Hot Air) and Electric Panel, 1 Car Garage, Recessed Lighting Throughout, Updated Hot Water Heater. Brand New Roof, Front Siding, Front Soffits Gutters, Garage Door, Front Door and Stoop. Forced Air Allowing for Easy Addition Of Central Air.

Listed by Kerri Passamenti

·

Realty Connect USA L I Inc

·

631-941-4300

Listed by John Passamenti

·

Realty Connect USA L I Inc

Last updated October 22, 2025

·

Source: OneKey #918785

Listing Facts

  • TypeSingle-family
  • NeighborhoodCentereach
  • Bedrooms4
  • Bathrooms2
  • Days on Prevu22
  • Taxes$13,765.98/year
  • Size1,406 sqft
  • Price per sqft$416

Amenities

  • Dishwasher
  • Washer/Dryer
  • Parking

Location

Mortgage Calculator

Listing History

10/21/2025
Price Decreased
$585,000
09/30/2025
Listed by Realty Connect USA L I Inc
$599,999

Property Details for 49 Bellwood Avenue

Exterior

Construction

  • Year Built: 1966
  • Architectural Style: Colonial
  • Construction Materials: Frame, Shake Siding, Vinyl Siding

Measurements

  • Building Area Units: Square Feet
  • Lot Features: Back Yard, Front Yard, Near Public Transit, Near School, Near Shops
  • Lot Size Acres: 0.24
  • Lot Size Square Feet: 10,454

Financial

Taxes

  • Parcel Number: 0200-333-00-03-00-050-000
  • Tax Annual Amount: $13,765.98
  • Tax Year: 2025

Interior

Features

  • Appliances: Dishwasher, Dryer, Microwave, Oven, Range, Refrigerator, Washer
  • Fireplace Features: Living Room, Wood Burning
  • Fireplace: Yes
  • Fireplaces Total: 1
  • Flooring: Hardwood, Vinyl
  • Interior Features: Chandelier, Eat-in Kitchen, Entrance Foyer, Formal Dining, Open Floorplan, Open Kitchen, Quartz/Quartzite Counters, Recessed Lighting, Washer/Dryer Hookup

Measurements

  • Living Area: 1,406
  • Living Area Source: Public Records

Rooms

  • Basement: Full, Unfinished
  • Has Basement: Yes
  • Bathrooms Full: 1
  • Bathrooms Half: 1
  • Bathrooms Total Integer: 2
  • Bedrooms Total: 4
  • Rooms Total: 7

Other

Location

  • Tax Block: 3.00
  • Tax Lot: 50.00

Parking

Parking

  • Garage Spaces: 1
  • Garage: Yes
  • Parking Features: Attached, Driveway, Garage

Schools

Elementary School

  • Elementary School: Arrowhead Elementary School
  • Elementary School District: Three Village

High School

  • High School: Ward Melville Senior High School
  • High School District: Three Village

Middle or Junior School

  • Middle Or Junior School: Robert Cushman Murphy Jr High School
  • Middle Or Junior School District: Three Village

Utilities

Equipment

  • Heating: Forced Air, Natural Gas
  • Laundry Features: In Basement
  • Sewer: Cesspool
  • Utilities: Electricity Connected, Natural Gas Connected, Water Connected
  • Water Source: Public

The data relating to real estate for sale on this website comes in part from the IDX Program of OneKey™ MLS. The source of the displayed data is either the property owner or public record provided by non-governmental third parties. It is believed to be reliable but not guaranteed. This information is provided exclusively for consumers’ personal, non-commercial use. Information Copyright 2025, OneKey™ MLS. All Rights Reserved.

Full MLS Disclaimers

Rebate estimate is indicative only and based on listing price and estimated buyer's agent commission paid by owner, if applicable. Final rebates are subject to Terms of Use and may vary due to final negotiated transaction terms.