Prevu by reAlpha
BuySellBlogBrowse Listings

487 Neighborhood RoadShirley, NY 11967

For Sale

$549,990

Smart Buyer Rebate $1,250

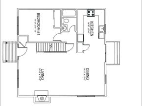
Construction About To Start!....New Construction Home...To Be Built 3 Bedroom Cape/ There is a first floor bedroom and the Second floor has 2 bedrooms/There is 2 full bathrooms... One on the first floor...One on the second floor/You have a choice of cabinets/choice of tiles for the bathrooms/choice of granite for the Kitchen/choice of carpet for the bedrooms ( All from Builder's Selection) Stainless Steel Appliance Package( From Builder's Selection)/Heat Pump/Central Air Conditioning/Full Unfinished Basement with 8ft ceilings with One Egress Window plus 3 additional windows that are 2x3 in size ( they are larger then the standard size basement window) Basement size approximately 900 square feet/ Construction to begin soon!!! Photos of a previously built home! You Can Still Customize the Home!! Off site Model To View!!

( SPANISH )
Esta casa tipo cape de 3 dormitorios se construir/ La primera planta tiene un dormitorio y la segunda planta dos/ Hay dos ba;os completos... uno en la primera planta y otro en la segunda/ Puede elegir entre gabinetes/ azulejos para el bao/ granito para la cocina/alfombra para los dormitorios (todo a elecci;n del constructor) Paquete de electrodom&;sticos de acero inoxidable/bomba de calor/aire acondicionado central/s;tano completo sin terminar con techos de 8 pies con una ventana de salida m&;s 3 ventanas adicionales que son 2x3 en tama&;o (son m;s grandes que las ventanas de s;tano de tama;o est;ndar) El tama&;o del s&tano es de aproximadamente 900 pies cuadrados. La construcci;n comenzar; pronto!! Fotos de una casa ya construida...

Listed by Debra Raimo

·

Douglas Elliman Real Estate

·

631-589-8500

Last updated January 11, 2026

·

Source: OneKey #854010

Listing Facts

  • TypeSingle-family
  • NeighborhoodShirley
  • Bedrooms3
  • Bathrooms2
  • Days on Prevu323
  • Size1,400 sqft
  • Price per sqft$393

Amenities

  • Dishwasher
  • Air Conditioning

Location

Mortgage Calculator

Listing History

04/27/2025
Listed by Douglas Elliman Real Estate
$549,990

Property Details for 487 Neighborhood Road

Exterior

Construction

  • Year Built: 2025
  • Architectural Style: Cape Cod
  • Construction Materials: Vinyl Siding

Measurements

  • Building Area Units: Square Feet
  • Lot Size Dimensions: 50,100

Financial

Taxes

  • Tax Year: 2026

Interior

Features

  • Appliances: Dishwasher, ENERGY STAR Qualified Appliances, Microwave, Oven, Refrigerator, Stainless Steel Appliance(s)
  • Interior Features: First Floor Bedroom, First Floor Full Bath

Measurements

  • Living Area: 1,400
  • Living Area Source: Plans

Rooms

  • Basement: Full, Unfinished
  • Has Basement: Yes
  • Bathrooms Full: 2
  • Bathrooms Total Integer: 2
  • Bedrooms Total: 3
  • Rooms Total: 6

Schools

Elementary School

  • Elementary School: William Floyd Elementary School
  • Elementary School District: William Floyd

High School

  • High School: William Floyd High School
  • High School District: William Floyd

Middle or Junior School

  • Middle Or Junior School: William Floyd Middle School
  • Middle Or Junior School District: William Floyd

Utilities

Equipment

  • Cooling: Central Air, ENERGY STAR Qualified Equipment
  • Heating: Heat Pump
  • Sewer: Cesspool
  • Utilities: Electricity Connected
  • Water Source: Public

Frequently Asked Questions

How many bedrooms and bathrooms does this single-family home have?

There are 3 bedrooms and 2 bathrooms in this single-family home at 487 Neighborhood Road.

What schools are nearby to 487 Neighborhood Road?

Nearby schools include the William Floyd Elementary School, William Floyd Middle School, and William Floyd High School.

How does 487 Neighborhood Road compare to other single-family homes in Shirley?

This single-family home is listed 3% below the average price for single-family homes in Shirley and has been on the market for 260 more days than the typical home in this area.

What is the square footage on this single-family home?

According to the MLS, this listing is 1,400 sqft.

487 Neighborhood Road is a 3-bedroom, 2-bath single-family home for sale in Shirley NY 11967. Listed on Prevu for 323 days at $549,990. This property features 1,400 square feet of living space, located in Shirley. The median listing price for single-family homes in this area is $549,000. Nearby schools include William Floyd Elementary School, William Floyd Middle School, and William Floyd High School. Property amenities include dishwasher and air conditioning. Explore more single-family home listings in Suffolk County.

The data relating to real estate for sale on this website comes in part from the IDX Program of OneKey™ MLS. The source of the displayed data is either the property owner or public record provided by non-governmental third parties. It is believed to be reliable but not guaranteed. This information is provided exclusively for consumers’ personal, non-commercial use. Information Copyright 2026, OneKey™ MLS. All Rights Reserved.

Full MLS Disclaimers

Rebate estimate is indicative only and based on listing price and estimated buyer's agent commission paid by owner, if applicable. Final rebates are subject to Terms of Use and may vary due to final negotiated transaction terms.