BuySellBlogBrowse Listings

455 58th StreetBrooklyn, NY 11220

For Sale

$1,650,000

Smart Buyer Rebate $20,625

FIRST ACCESS IS OUR 1ST OPEN HOUSE, SUNDAY - October 28th 11am-1pm.

Welcome to 455 58th St. - Located in the Sunset Park South Historic District
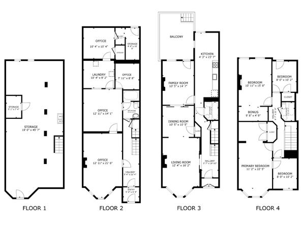
Built in 1910, this legal 2 family, is currently configured as an upper duplex, over a garden unit, which was formerly used as a doctors office.
There are details galore throughout this true gem of a home that just awaits your vision and modernization. The parlor floor boasts 10 1/2 foot ceilings, working pocket doors, beautiful original wood work, plaster work and multiple mantels. This home has 3 full floors and a full basement with an extension on the first and second floor. The extension creates a more unique layout that gives more space to the ground floor and a long EIK overlooking a parlor floor deck that sits above the larger garden level footprint. There is a large back yard with access from both units. The 3rd floor also has an exterior door with access over the extension's roof top for the potential of an additional deck to be added.
This home is A MUST SEE!
Check out our 3D video tour for this property for a preview of this property.

Great Location! This home is just steps from a plethora of cafe's, restaurants, bakeries, markets, banks and the N, R, trains are a block away. The actual Sunset Park is a short walk and the Belt Parkway and Verrazano Bridge are just minutes away. Dont miss this fantastic opportunity in one of Brooklyns most vibrant neighborhoods!

Listed by Jeff S Surowka

·

Abacus Properties LLC

·

(718) 284-4400

Last updated October 21, 2025

·

Source: REBNY #RLS20055848

Listing Facts

  • TypeMulti-family
  • NeighborhoodSunset Park
  • Bedrooms7
  • Bathrooms3
  • Days on Prevu1
  • Taxes$8,604/year
  • Size3,500 sqft
  • Price per sqft$471

Amenities

  • Pets Allowed

Location

Mortgage Calculator

Listing History

10/21/2025
Listed by Abacus Properties LLC
$1,650,000

Estimated Closing Costs

Total
$58,835
Attorney Fees
$4,000
NYC Mansion Tax
$16,500
Title Insurance
$7,425
Bank Attorney
$1,500
Mortgage Recording Tax
$25,410
Other Closing Costs
$4,000

Estimated closing costs are based on the list price of $1,650,000 and a 20% downpayment. These estimates are for indicative purposes only. Actual closing costs may vary for each transaction. See the Closing Costs Calculator for calculations specific to your situation.

Property Details for 455 58th Street

Association

Amenities

  • Pets Allowed: Building Yes, Yes

Financial

  • Flip Tax Remarks: ASK EXCL BROKER

Exterior

Construction

  • Number Of Units Total: 2
  • Stories Total: 3
  • Structure Type: Multi Family, Townhouse
  • Year Built: 1900

Measurements

  • Building Area Total: 3,188
  • Building Area Units: SquareFeet
  • Lot Size Dimensions: 100
  • Lot Size Units: SquareFeet

Financial

Taxes

  • Parcel Number: 00847-0053
  • Tax Annual Amount: $8,604.00

Interior

Features

  • Fireplace: Yes
  • Fireplaces Total: 1
  • Flooring: Hardwood
  • Interior Features: High Ceilings

Measurements

  • Living Area: 3,500
  • Living Area Units: SquareFeet

Rooms

  • Bathrooms Full: 3
  • Bathrooms Total Integer: 3
  • Bedrooms Total: 7
  • Rooms Total: 13

Other

Location

  • City Region: Brooklyn
  • Subdivision Name: Sunset Park
  • Tax Block: 00847
  • Tax Lot: 0053

Utilities

Equipment

  • Cooling: Window Unit(s)
  • Heating: Radiant
  • Has Heating: Yes
  • Laundry Features: Common Area

Based on information from Real Estate Board of New York and/or other sources. This information is not verified for authenticity or accuracy and is not guaranteed and may not reflect all real estate activity in the market. ©2025 The Real Estate Board of New York, Inc., All rights reserved.

Full MLS Disclaimers

Rebate estimate is indicative only and based on listing price and estimated buyer's agent commission paid by owner, if applicable. Final rebates are subject to Terms of Use and may vary due to final negotiated transaction terms.