BuySellBlogBrowse Listings

454 A Decatur StreetBrooklyn, NY 11233

For Sale

$2,100,000

Smart Buyer Rebate $26,250

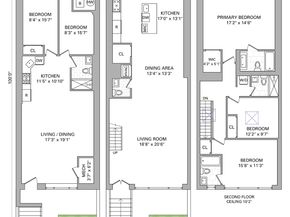
Welcome to 454A Decatur Street — a striking, contemporary two-family townhouse offering 3,000 square feet of beautifully executed living space in one of Brooklyn’s most storied neighborhoods, Bedford-Stuyvesant. With impressive dimensions stretching nearly 50 feet deep by 20 feet wide, this home offers a rare blend of scale, light, and thoughtful design.

As you enter the parlor level, you’re immediately struck by the expansive open layout—a space that flows the full depth of the home and is drenched in natural light thanks to floor-to-ceiling windows. High ceilings and clean architectural lines add a sense of volume, while hardwood floors anchor the space in comfort. At the heart of the home is a chef’s kitchen, outfitted with a large island, stainless steel appliances, walk-in pantry, and timeless shaker cabinetry. The kitchen seamlessly integrates with the dining and living areas, creating the ideal setting for both quiet nights and lively gatherings. From here, step out to your full-width rear deck, perfectly suited for al fresco dining or relaxing with a morning coffee. Beyond, a private backyard oasis invites gardening, entertaining, or simply unwinding under the sky.

The upper level is thoughtfully configured with three well-sized bedrooms, including two with en-suite bathrooms for added privacy and flexibility. The primary suite, located at the back of the home, is a true showstopper — an oversized sanctuary flooded with light, overlooking the treetops and your private balcony. There’s ample room for a king-size bed, sitting area, or dedicated workspace, along with custom closet space and a modern en-suite bath. At the front, a second en-suite bedroom offers privacy for guests or household members, while a third bedroom shares access to a full hall bathroom conveniently located next to a discreet laundry area. Multiple skylights throughout this level further enhance the natural light already abundant from the home’s signature oversized windows.

The garden level features a bright, well-appointed, oversized two-bedroom apartment with a private entrance — ideal for immediate rental income, an in-law suite, or a work-from-home setup. Smartly designed and self-contained, this unit offers flexibility without compromise.

Set on a charming, tree-lined block in the heart of Bedford-Stuyvesant, you’re moments away from the neighborhood’s best cafés, boutiques, and local institutions. The A & C subway lines are nearby, offering an effortless commute to Manhattan and beyond.

Whether you're a savvy buyer looking for a move-in ready home with supplemental income, or an investor seeking value and style in a prime Brooklyn location, 454A Decatur Street checks every box — space, design, light, location, and income potential — all in one compelling package.

Listed by Daniel Martin DiPasquale

·

Compass

·

(631) 897-8112

Listed by JOSHUA GOLAN

·

Compass

Last updated October 23, 2025

·

Source: REBNY #RLS20055084

Listing Facts

  • TypeSingle-family
  • NeighborhoodBedford-Stuyvesant
  • Bedrooms5
  • Bathrooms4.5
  • Days on Prevu7
  • Taxes$7,548/year
  • Size3,000 sqft
  • Price per sqft$700

Amenities

  • Dishwasher
  • Private Outdoor Space
  • Washer/Dryer

Location

Mortgage Calculator

Listing History

10/16/2025
Listed by Compass
$2,100,000

Estimated Closing Costs

Total
$77,540
Attorney Fees
$4,000
NYC Mansion Tax
$26,250
Title Insurance
$9,450
Bank Attorney
$1,500
Mortgage Recording Tax
$32,340
Other Closing Costs
$4,000

Estimated closing costs are based on the list price of $2,100,000 and a 20% downpayment. These estimates are for indicative purposes only. Actual closing costs may vary for each transaction. See the Closing Costs Calculator for calculations specific to your situation.

Property Details for 454 A Decatur Street

Association

Amenities

  • Pets Allowed: Building No, No

Exterior

Construction

  • Number Of Units Total: 2
  • Stories Total: 2
  • Structure Type: Duplex, Multi Family, Townhouse
  • Window Features: Skylight(s)
  • Year Built: 1899
  • Entry Level: 1

Features

  • Patio And Porch Features: Deck, Terrace, Balcony

Measurements

  • Building Area Total: 3,000
  • Building Area Units: SquareFeet
  • Lot Features: Front Yard
  • Lot Size Dimensions: 20
  • Lot Size Units: SquareFeet

Financial

Taxes

  • Tax Annual Amount: $7,548.00

Interior

Features

  • Appliances: Dryer, Dishwasher, Gas Cooktop, Gas Oven, Range, Refrigerator, Range Hood, Stainless Steel Appliance(s), Washer
  • Flooring: Hardwood
  • Interior Features: Breakfast Bar, Double Vanity, High Ceilings, Kitchen Island, Recessed Lighting, Sound System, Soaking Tub, Walk-In Closet(s)

Measurements

  • Living Area: 3,000
  • Living Area Units: SquareFeet

Rooms

  • Bathrooms Full: 4
  • Bathrooms Half: 1
  • Bathrooms Total Integer: 5
  • Bedrooms Total: 5
  • Rooms Total: 10

Other

Location

  • City Region: Brooklyn
  • Subdivision Name: Bedford-Stuyvesant
  • Tax Block: 01683
  • Tax Lot: 0020

Utilities

Equipment

  • Cooling: Central Air
  • Has Cooling: Yes
  • Heating: Central, Forced Air, Natural Gas
  • Has Heating: Yes
  • Laundry Features: See Remarks
  • Other Equipment: Intercom

Based on information from Real Estate Board of New York and/or other sources. This information is not verified for authenticity or accuracy and is not guaranteed and may not reflect all real estate activity in the market. ©2025 The Real Estate Board of New York, Inc., All rights reserved.

Full MLS Disclaimers

Rebate estimate is indicative only and based on listing price and estimated buyer's agent commission paid by owner, if applicable. Final rebates are subject to Terms of Use and may vary due to final negotiated transaction terms.