Prevu by reAlpha
BuySellBlogBrowse Listings

4326 A SW Mills StreetSeattle, WA 98136

For Sale

$988,000

Smart Buyer Rebate $9,880

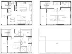
WELCOME HOME! This elevated, free-standing, luxurious 3 bed/2.5 bath home seamlessly blends luxury, function, & style. This NEW, single-family home will knock your socks off! Enjoy EV charging, high-end finishes, 2 west-facing decks w/ stunning sunset views, & fenced yard/dog run. Step into a chef-inspired kitchen featuring: spacious pantry, quartz island, open-concept living/dining area + 1/2 bath. Enjoy sun-filled entertaining or cozy up to your dreamy fireplace. The 2nd level offers two large bedrooms (one w/ deck), + full bath. Upstairs: Primary suite is a TRUE RETREAT— bask in luxury: 5-piece bath, expansive walk-in closet, & private deck with VIEWS of Puget Sound/Olympic Mountains. Blocks from Lincoln Park, Colman Pool, Ferry & Alki.

Listed by Candice L Oftebro

·

COMPASS

Last updated December 28, 2025

·

Source: NWMLS #2453602

Listing Facts

  • TypeSingle-family
  • NeighborhoodGatewood
  • Bedrooms3
  • Bathrooms3
  • Days on Prevu82
  • Taxes$5,916/year
  • Size1,803 sqft
  • Price per sqft$548

Amenities

  • Pets Allowed
  • Parking

Location

Mortgage Calculator

Listing History

11/24/2025
Price Decreased
$988,000
11/08/2025
Listed by COMPASS
$994,900

Property Details for 4326 A SW Mills Street

Association

Amenities

  • Community Features: CCRs

Exterior

Construction

  • Property Condition: Very Good
  • Roof: Composition
  • Structure Type: House
  • Year Built: 2024
  • Construction Materials: Cement Planked
  • Entry Location: Main
  • Exterior Features: Cement Planked

Features

  • Direction Faces: West
  • View: Mountain(s), Partial, Sound, Territorial

Measurements

  • Building Area Total: 1,803
  • Building Area Units: Square Feet
  • Lot Features: Alley, Curbs, Paved, Sidewalk
  • Lot Size Acres: 0.03
  • Lot Size Square Feet: 1,400
  • Lot Size Units: Square Feet

Financial

Taxes

  • Parcel Number: 2810100216
  • Tax Annual Amount: $5,916.00
  • Tax Year: 2025

Interior

Features

  • Appliances: Dishwasher(s), Disposal, Dryer(s), Microwave(s), Refrigerator(s), Stove(s)/Range(s), Washer(s)
  • Fireplace Features: Electric
  • Fireplace: Yes
  • Fireplaces Total: 1
  • Flooring: Ceramic Tile, Vinyl Plank
  • Interior Features: Bath Off Primary, Ceiling Fan(s), Double Pane/Storm Window, Dining Room, Fireplace, High Tech Cabling, Vaulted Ceiling(s), Walk-In Closet(s), Water Heater

Measurements

  • Living Area: 1,803

Rooms

  • Bathrooms Full: 2
  • Bathrooms Half: 1
  • Bathrooms Total Integer: 3
  • Bedrooms Total: 3
  • Main Level Bathrooms: 1

Other

Location

  • Subdivision Name: Gatewood

Parking

Parking

  • Parking Features: Off Street

Schools

Elementary School

  • Elementary School: Gatewood

High School

  • High School: West Seattle High
  • High School District: Seattle

Middle or Junior School

  • Middle Or Junior School: Madison Mid

Utilities

Equipment

  • Has Cooling: Yes
  • Has Heating: Yes
  • Sewer: Sewer Connected
  • Water Source: Public

Frequently Asked Questions

How many bedrooms and bathrooms does this single-family home have?

There are 3 bedrooms and 3 bathrooms in this single-family home at 4326 A SW Mills Street.

What schools are nearby to 4326 A SW Mills Street?

Nearby schools include the Gatewood Elementary School, Madison Mid Middle School, and West Seattle High.

What are the annual taxes for 4326 A SW Mills Street?

Annual taxes for this single-family home are estimated at $5,916.

How does 4326 A SW Mills Street compare to other single-family homes in Gatewood?

This single-family home is listed 3% below the average price for single-family homes in Gatewood and has been on the market for 50 more days than the typical home in this area.

What is the square footage on this single-family home?

According to the MLS, this listing is 1,803 sqft.

4326 A SW Mills Street is a 3-bedroom, 3-bath single-family home for sale in Seattle WA 98136. Available on Prevu for 82 days at $988,000. This includes a recent price decrease of $6,900. This property features 1,803 square feet of living space, located in Gatewood. The median listing price for single-family homes in this area is $799,950. Nearby schools include Gatewood Elementary School, Madison Mid Middle School, and West Seattle High. Property amenities include pets allowed and parking. Browse more single-family home listings in Seattle.

Based on information from NWMLS and/or other sources. All data, including all measurements and calculations of area, is obtained from various sources and has not been, and will not be, verified by Prevu or the MLS. Information is provided exclusively for consumer's personal, non-commercial use and may not be used for any purpose other than to identify prospective properties consumer may be interested in purchasing.

Full MLS Disclaimers

Rebate estimate is indicative only and based on listing price and estimated buyer's agent commission paid by owner, if applicable. Final rebates are subject to Terms of Use and may vary due to final negotiated transaction terms.