BuySellBlogBrowse Listings

416 West 20th StreetNew York, NY 10011

For Sale

$9,995,000

Smart Buyer Rebate $124,938

An Architectural Masterpiece on Chelsea’s Most Storied Block

A rare opportunity to own a landmark townhouse on one of New York’s most beautiful and sought-after streets — Cushman Row on the historic Seminary Block in West Chelsea.

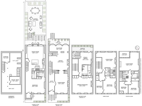
This 21-foot-wide, 6,000-square-foot masterpiece at 416 West 20th Street offers more than 1,400 square feet of private gardens and terraces, an extraordinary fusion of 19th-century grandeur and modern sophistication.

Masterfully reimagined by Hernandez-Eli Architecture, this residence honors its architectural heritage while embracing the comforts of contemporary luxury living. Currently configured as a private three-floor Owner’s Triplex with two full-floor, income-producing residences, the property offers both flexibility and elegance — a rare balance in Manhattan townhouse living.

Historic Elegance, Modern Refinement

Every detail has been meticulously restored and reimagined — from the seven wood-burning fireplaces to the handcrafted moldings and ironwork that define Cushman Row’s iconic charm.

Four distinct outdoor sanctuaries — including a lush south-facing garden, three private terraces, and a gracious front stoop — create a seamless connection between indoor and outdoor living.

The Owner’s Triplex

Parlor Floor: A grand double-door entry leads into an airy expanse of soaring ceilings, dual fireplaces, and meticulously restored plasterwork. Sunlight filters through the adjoining sunroom, opening to a private terrace overlooking the garden. Designed for both formal and relaxed entertaining, this level offers an elegant canvas for art, music, and gatherings — a space to live beautifully among friends and family.
Garden Level: A chef’s kitchen with bespoke cabinetry and top-tier appliances opens seamlessly to a tiered, landscaped garden — an ideal setting for al fresco dining and intimate gatherings. The formal dining room, anchored by a stately fireplace, exudes character and warmth, creating an inviting atmosphere for entertaining.
Primary Suite (Third Floor): A sophisticated full-floor sanctuary bathed in natural light, featuring a marble-clad spa bath, stately fireplace, and private library that opens onto a serene terrace overlooking the garden. A blend of elegance and tranquility — a true escape in the heart of the City.

Cellar: Flexible space for a gym, screening room, or playroom with laundry and abundant storage.

Income & Flexibility

Fourth Floor: Renovated two-bedroom apartment with high ceilings, fireplace, and sunlight throughout.

Fifth Floor: Another two-bedroom residence with skylights, fireplace, and a private terrace.
Both units are presently income generating or can be seamlessly incorporated into the Owner’s Triplex for a grand single-family home of exceptional scale and character.

A Setting Steeped in Beauty and History

Overlooking the Gothic spires and gardens of the General Theological Seminary, this home offers a rare blend of serenity and proximity to the city’s most dynamic destinations — the High Line, Hudson River Park, Chelsea Market, the Meatpacking District, and world-class art galleries.

Après Global Perspective

At Après Global, we believe extraordinary homes tell the story of timeless craftsmanship and modern vision. 416 West 20th Street stands as one of Chelsea’s crown jewels - a residence where history, architecture, and artistry converge in perfect harmony.

Listed by LYNNE S MAZIN

·

Compass

·

(917) 751-9822

Listed by Elena Ash

·

Compass

Last updated October 21, 2025

·

Source: REBNY #RLS20053040

Listing Facts

  • TypeSingle-family
  • NeighborhoodChelsea
  • Bedrooms6
  • Bathrooms4
  • Days on Prevu4
  • HOA/Maint. Fees$6,075/month
  • Size5,878 sqft
  • Price per sqft$1,700

Amenities

  • Private Outdoor Space
  • Washer/Dryer

Location

Mortgage Calculator

Listing History

10/18/2025
Listed by Compass
$9,995,000

Estimated Closing Costs

Total
$452,528
Attorney Fees
$4,000
NYC Mansion Tax
$224,887
Title Insurance
$44,978
Bank Attorney
$1,500
Mortgage Recording Tax
$173,163
Other Closing Costs
$4,000

Estimated closing costs are based on the list price of $9,995,000 and a 10% downpayment. These estimates are for indicative purposes only. Actual closing costs may vary for each transaction. See the Closing Costs Calculator for calculations specific to your situation.

Property Details for 416 West 20th Street

Association

Amenities

  • Pets Allowed: Building No, No

Fees

  • Association Fee: $6,075.00 Monthly

Exterior

Construction

  • Number Of Units Total: 3
  • Stories Total: 5
  • Structure Type: House
  • Year Built: 1839
  • Entry Level: 1

Features

  • Patio And Porch Features: Deck, Terrace, Balcony

Measurements

  • Building Area Total: 5,878
  • Building Area Units: SquareFeet
  • Lot Features: Front Yard
  • Lot Size Dimensions: 21
  • Lot Size Units: SquareFeet

Financial

Taxes

  • Parcel Number: 0717-0052

Interior

Features

  • Appliances: Dryer, Washer
  • Fireplace: Yes
  • Fireplaces Total: 1
  • Flooring: Hardwood
  • Interior Features: Crown Molding, High Ceilings

Measurements

  • Living Area: 5,878
  • Living Area Units: SquareFeet

Rooms

  • Basement: Full
  • Has Basement: Yes
  • Bathrooms Full: 4
  • Bathrooms Total Integer: 4
  • Bedrooms Total: 6
  • Rooms Total: 12

Other

Location

  • City Region: Manhattan
  • Subdivision Name: Chelsea
  • Tax Block: 00717
  • Tax Lot: 0052

Utilities

Equipment

  • Cooling: Central Air
  • Has Cooling: Yes
  • Laundry Features: Laundry Room, See Remarks

Based on information from Real Estate Board of New York and/or other sources. This information is not verified for authenticity or accuracy and is not guaranteed and may not reflect all real estate activity in the market. ©2025 The Real Estate Board of New York, Inc., All rights reserved.

Full MLS Disclaimers

Rebate estimate is indicative only and based on listing price and estimated buyer's agent commission paid by owner, if applicable. Final rebates are subject to Terms of Use and may vary due to final negotiated transaction terms.