Prevu by reAlpha
BuySellBlogBrowse Listings

3915 W Byron PlaceDenver, CO 80212

For Sale

$1,690,000

Smart Buyer Rebate $16,900

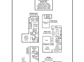
Seller is being relocated with their employer. Relocation company will be a party to the contract | A modern Sloan’s Lake home designed to live large, centered around light and an exceptional indoor/outdoor floorplan. Set on a generous lot, the home is wrapped in windows and thoughtfully oriented around an L-shaped yard-the true heart of the property - creating a rare sense of openness and connection. The main level flows effortlessly around the outdoor space, allowing main living and kitchen areas access to the yard. A sunken living room is anchored by a dramatic brick feature wall and double-sided fireplace, enjoyed both inside and out, while expansive sliding glass doors and walls of windows flood the home with natural light. The kitchen balances form and function with high-end stainless steel appliances, including a Thermador gas range, oversized eat-in island, tile backsplash, frosted lift-up cabinetry, and generous walk-in pantry. The dining area features a statement bubble chandelier, custom built-ins, and a raised soffit ceiling. A floating staircase framed by windows continues the home’s emphasis on light and volume. The primary suite is set apart in its own wing, offering west-facing windows, private balcony overlooking yard, an oversized walk-in closet with en-suite laundry, and spa-style bath with dual vanities and walk-in shower. Two additional bedrooms share a nearby full bath. The staircase extends to an entertainer’s rooftop deck with west-facing views, mounted TV and sound system. The lower level offers flexible living with a floating-style fireplace, siding doors to private patio, bedroom with walk-in closet, full bath, and second laundry - ideal for guests. Outdoor living is fully integrated with three distinct patio spaces connecting outdoor living to the garage, creating multiple gathering zones. Two-car garage and RV parking pad complete the home. Moments to Highlands, downtown Denver, and six blocks to Sloan’s Lake.

Listed by Mckinze Casey

·

License #065398

·

LIV Sotheby's International Realty

·

720-539-4547

Last updated January 29, 2026

·

Source: REcolorado #8575360

Listing Facts

  • TypeSingle-family
  • NeighborhoodSloan Lake
  • Bedrooms4
  • Bathrooms4
  • Days on Prevu1
  • Taxes$8,772/year
  • Size3,598 sqft
  • Price per sqft$470

Amenities

  • Dishwasher
  • Private Outdoor Space
  • Washer/Dryer
  • Air Conditioning
  • Parking

Location

Mortgage Calculator

Listing History

01/28/2026
Listed by LIV Sotheby's International Realty
$1,690,000

Property Details for 3915 W Byron Place

Exterior

Construction

  • Roof: Membrane
  • Structure Type: House
  • Window Features: Window Coverings
  • Year Built: 2014
  • Architectural Style: Urban Contemporary
  • Construction Materials: Brick, Cedar, Frame
  • Exterior Features: Balcony, Private Yard, Rain Gutters

Features

  • Direction Faces: South
  • Fencing: Full
  • Patio And Porch Features: Covered, Deck, Front Porch, Patio, Rooftop
  • Road Frontage Type: Public

Measurements

  • Building Area Total: 3,598
  • Lot Features: Level
  • Lot Size Acres: 0.14
  • Lot Size Area: 6,250
  • Lot Size Square Feet: 6,250
  • Lot Size Units: Square Feet

Financial

Taxes

  • Parcel Number: 2311-12-008
  • Tax Annual Amount: $8,772.00
  • Tax Year: 2024

Interior

Features

  • Appliances: Dishwasher, Dryer, Microwave, Range, Range Hood, Refrigerator, Washer
  • Fireplace Features: Basement, Living Room, Outside
  • Fireplaces Total: 2
  • Flooring: Tile, Wood
  • Interior Features: Built-in Features, Ceiling Fan(s), Eat-in Kitchen, High Ceilings, Kitchen Island, Pantry, Primary Suite, Walk-In Closet(s)

Measurements

  • Living Area: 3,598

Rooms

  • Basement: Daylight, Finished, Interior Entry, Partial
  • Has Basement: Yes
  • Bathrooms Full: 2
  • Bathrooms Half: 1
  • Bathrooms Three Quarter: 1
  • Bathrooms Total Integer: 4
  • Bedrooms Total: 4
  • Main Level Bathrooms: 1

Other

General

  • Exclusions: Seller's personal property, Staging items

Location

  • Subdivision Name: Sloan Lake

Parking

Parking

  • Garage Spaces: 2
  • Parking Total: 2

Schools

Elementary School

  • Elementary School: Brown
  • Elementary School District: Denver 1

High School

  • High School: North
  • High School District: Denver 1

Middle or Junior School

  • Middle Or Junior School: Lake
  • Middle Or Junior School District: Denver 1

Utilities

Equipment

  • Cooling: Central Air
  • Heating: Forced Air, Natural Gas
  • Sewer: Public Sewer
  • Water Source: Public

Frequently Asked Questions

How many bedrooms and bathrooms does this single-family home have?

There are 4 bedrooms and 4 bathrooms in this single-family home at 3915 W Byron Place.

What schools are nearby to 3915 W Byron Place?

Nearby schools include the Brown Elementary School, Lake Middle School, and North High School.

Does this single-family home have parking?

Yes, there are 2 parking spaces available for 3915 W Byron Place.

What are the annual taxes for 3915 W Byron Place?

Annual taxes for this single-family home are estimated at $8,772.

How does 3915 W Byron Place compare to other single-family homes in Sloan Lake?

This single-family home is listed 31% above the average price for single-family homes in Sloan Lake and has been on the market for 76 less days than the typical home in this area.

What is the square footage on this single-family home?

According to the MLS, this listing is 3,598 sqft.

3915 W Byron Place is a 4-bedroom, 4-bath single-family home for sale in Denver CO 80212. On Prevu for 1 days at $1,690,000. This residence features 3,598 square feet of living space, located in Sloan Lake. The median listing price for single-family homes in this area is $1,068,310. Nearby schools include Brown Elementary School, Lake Middle School, and North High School. Property amenities include private outdoor space, dishwasher, air conditioning, parking, and washer/dryer. View other single-family home listings in Denver.

The content relating to real estate for sale in this Web site comes in part from the Internet Data eXchange ("IDX") program of METROLIST, INC., DBA RECOLORADO® Real estate listings held by brokers other than Prevu are marked with the IDX Logo. This information is being provided for the consumers' personal, non-commercial use and may not be used for any other purpose. All information subject to change and should be independently verified.

Full MLS Disclaimers

Rebate estimate is indicative only and based on listing price and estimated buyer's agent commission paid by owner, if applicable. Final rebates are subject to Terms of Use and may vary due to final negotiated transaction terms.