BuySellBlogBrowse Listings

3805 Zavala Court Carrollton, Texas 75010

For Sale

$499,000

Smart Buyer Rebate $4,970

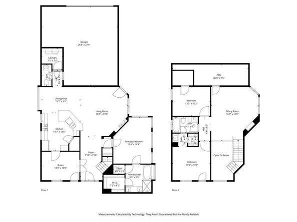
Welcome to 3805 Zavala Court in the sought-after Indian Creek community! Perfectly positioned on a quiet cul-de-sac right across from the park and minutes from Hwy 121, shopping, and dining, this home offers unbeatable convenience and charm. Inside, an open, light-filled layout features generous living areas and a well-appointed kitchen with plenty of cabinetry and prep space. The primary suite includes dual vanities, a soaking tub, separate shower, and walk-in closet. A flexible downstairs bedroom (included in the MLS count) off the entryway—converted from the formal dining room—features glass-paned doors, a closet, and a connection to the kitchen, ideal for an office, playroom, nursery, guest room, or dining space. Upstairs offers a spacious loft, large secondary bedrooms, and a walk-in attic providing exceptional storage. The garage adds a convenient storage nook, and the backyard is exceptionally large thanks to its .252-acre cul-de-sac lot—perfect for play, entertaining, gardening, or future outdoor projects.

Beyond the home itself, Indian Creek is a vibrant master-planned community comprised of seven neighborhoods and 1,359 homes. Residents enjoy access to a private clubhouse, refreshing community pool, tennis courts, playground, and a scenic pond located at 1689 Bandera Drive, all maintained by the HOA along with beautifully landscaped common areas. With its blend of peaceful surroundings, resort-style amenities, and proximity to everything Carrollton has to offer, this location truly stands out.

Listed by Joshua Dedmon

·

Keller Williams NO. Collin Cty

·

972-562-8883

Last updated October 23, 2025

·

Source: NTREIS #21080577

Listing Facts

  • TypeSingle-family
  • NeighborhoodIndian Creek
  • Bedrooms4
  • Bathrooms3
  • Days on Prevu15
  • HOA/Maint. Fees$300/annual
  • Size2,316 sqft
  • Price per sqft$215

Amenities

  • Dishwasher
  • Private Outdoor Space
  • Pets Allowed
  • Air Conditioning
  • Parking
  • Swimming Pool

Location

Mortgage Calculator

Listing History

10/10/2025
Listed by Keller Williams NO. Collin Cty
$499,000

Property Details for 3805 Zavala Court

Association

Amenities

  • Community Features: Boat Ramp, Club House, Community Pool, Community Sprinkler, Curbs, Fishing, Jogging Path/Bike Path, Lake, Park, Playground, Pool, Sidewalks, Tennis Court(s)

Fees

  • Association Fee: $300.00 Annually
  • Association Fee Includes: Full Use Of Facilities, Management Fees

Exterior

Construction

  • Roof: Composition, Shingle
  • Window Features: Bay Window(s), Window Coverings
  • Year Built: 1999
  • Year Built Details: Preowned
  • Architectural Style: Traditional
  • Construction Materials: Brick, Wood
  • Exterior Features: Garden(s), Rain Gutters, Lighting, Storage

Features

  • Fencing: Fenced, Privacy, Wood
  • Patio And Porch Features: Patio

Measurements

  • Lot Features: Cul-De-Sac, Few Trees, Landscaped, Lrg. Backyard Grass, Park View, Sprinkler System
  • Lot Size Acres: 0.25
  • Lot Size Area: 0
  • Lot Size Source: Public Records
  • Lot Size Square Feet: 10,977
  • Lot Size Units: Acres

Financial

Taxes

  • Parcel Number: R209078

Interior

Features

  • Appliances: Dishwasher, Disposal, Gas Cooktop, Gas Oven, Gas Range, Gas Water Heater, Microwave, Double Oven, Plumbed For Gas In Kitchen
  • Fireplace Features: Gas Starter, Masonry, Wood Burning
  • Fireplaces Total: 1
  • Flooring: Carpet, Ceramic Tile, Laminate
  • Interior Features: Cable TV Available, Double Vanity, Eat-in Kitchen, High Speed Internet Available, Open Floorplan, Pantry, Sound System Wiring, Vaulted Ceiling(s), Walk-In Closet(s)

Measurements

  • Living Area: 2,316

Rooms

  • Bathrooms Full: 2
  • Bathrooms Half: 1
  • Bathrooms Total Integer: 3
  • Bedrooms Total: 4

Other

Environmental

  • Green Energy Efficient: Exposure/Shade,Insulation,Thermostat

General

  • Exclusions: Drapes

Location

  • Subdivision Name: Elm Wood Trail Ph II
  • Tax Block: A
  • Tax Lot: 96

Parking

Parking

  • Attached Garage: Yes
  • Covered Spaces: 2
  • Garage Spaces: 2
  • Garage: Yes
  • Parking Features: Alley Access, Concrete, Driveway, Garage, Garage Double Door, Garage Faces Rear, Inside Entrance, Kitchen Level, On Site, Paved, Private, Side By Side

Schools

Elementary School

  • Elementary School: Hebron Valley

Utilities

Equipment

  • Cooling: Attic Fan, Ceiling Fan(s), Central Air, Heat Pump, Zoned
  • Heating: Central, Fireplace(s), Heat Pump, Natural Gas, Zoned
  • Laundry Features: Electric Dryer Hookup, In Hall, Utility Room, Full Size W/D Area, Dryer Hookup, Washer Hookup
  • Utilities: All Weather Road, Alley, Cable Available, City Sewer, City Water, Concrete, Curbs, Electricity Connected, Sidewalk

Based on information from NTREIS and/or other sources. All data, including all measurements and calculations of area, is obtained from various sources and has not been, and will not be, verified by Prevu or the MLS. Information is provided exclusively for consumer's personal, non-commercial use and may not be used for any purpose other than to identify prospective properties consumer may be interested in purchasing.

Full MLS Disclaimers

Rebate estimate is indicative only and based on listing price and estimated buyer's agent commission paid by owner, if applicable. Final rebates are subject to Terms of Use and may vary due to final negotiated transaction terms.