BuySellBlogBrowse Listings

3450 N Downing Street 3Denver, CO 80205

For Sale

$800,000

Smart Buyer Rebate $8,000

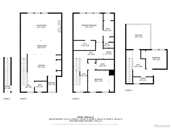
Check out this newer (Built in 2016) 3 bed 3 bath urban contemporary rowhome with attached direct access 2 car oversized garage from secured gated access driveway from alley. This modern rowhome also has NO monthly HOA (only a party wall agreement for shared expenses). Location! Location! Location! This is an amazing opportunity to own a newer, HOA free home in such a convenient, walkable location. Being on the edge of the RiNo Arts district, the list of convivences such as the vast number of bars & restaurants, performance venues like the Mission Ball Room and SO MUCH MORE it would be impossible to list, seriously, google location! Above and beyond the great Urban location this modern floor plan enters from the aforementioned garage or ground level entry at the foyer level with stairs to the second level featuring a spacious open "great room" or "loft style" combined living, dining, kitchen, 1/2 bath and access to a balcony perfect for a BBQ or morning coffee. Stairs, which are tucked away behind the wall off the kitchen, lead to the third level. This third level is highlighted by the large primary bedroom with bright modern luxurious on suite bathroom and very nice Denver city skyline views. The third level also features a large secondary bedroom (with large double door wall closet) and a full bathroom. There is more, so much more! From the third level a final staircase leads you to the final level which features nice 3rd bedroom with included custom murphy bed and built-in shelves. Also on this floor is a storage closet and convenient wet bar area. This wet bar is a MUST HAVE as you enjoy the private roof top deck, again with amazing views of the Denver city skyline and beautiful Rocky Mountains.

Listed by Michael Lunden

·

License #015080

·

Sellstate ACE Properties

·

303-525-6540

Last updated October 18, 2025

·

Source: REcolorado #6519980

Listing Facts

  • TypeSingle-family
  • NeighborhoodCole
  • Bedrooms3
  • Bathrooms3
  • Days on Prevu12
  • Taxes$3,994/year
  • Size2,023 sqft
  • Price per sqft$395

Amenities

  • Dishwasher
  • Air Conditioning
  • Parking

Location

Mortgage Calculator

Listing History

10/10/2025
Listed by Sellstate ACE Properties
$800,000

Property Details for 3450 N Downing Street 3

Exterior

Construction

  • Property Attached: Yes
  • Roof: Membrane
  • Structure Type: Townhouse
  • Year Built: 2016
  • Architectural Style: Urban Contemporary
  • Common Walls: 2+ Common Walls
  • Construction Materials: Frame
  • Entry Location: Ground
  • Exterior Features: Balcony

Measurements

  • Building Area Total: 2,023

Financial

Taxes

  • Parcel Number: 2263-07-048
  • Tax Annual Amount: $3,994.00
  • Tax Year: 2024

Interior

Features

  • Appliances: Dishwasher, Disposal, Microwave, Refrigerator
  • Interior Features: Ceiling Fan(s), Eat-in Kitchen, Entrance Foyer, High Ceilings, Open Floorplan, Pantry, Quartz Counters

Measurements

  • Living Area: 2,023

Rooms

  • Bathrooms Full: 1
  • Bathrooms One Quarter: 1
  • Bathrooms Three Quarter: 1
  • Bathrooms Total Integer: 3
  • Bedrooms Total: 3

Other

General

  • Exclusions: any personal property not specifically listed as included.

Location

  • Subdivision Name: Fords Add / Ri No

Parking

Parking

  • Attached Garage: Yes
  • Garage Spaces: 2
  • Parking Total: 2

Schools

Elementary School

  • Elementary School: Cole Arts And Science Academy
  • Elementary School District: Denver 1

High School

  • High School: Manual
  • High School District: Denver 1

Middle or Junior School

  • Middle Or Junior School: Whittier E-8
  • Middle Or Junior School District: Denver 1

Utilities

Equipment

  • Cooling: Central Air
  • Heating: Forced Air
  • Sewer: Public Sewer

The content relating to real estate for sale in this Web site comes in part from the Internet Data eXchange ("IDX") program of METROLIST, INC., DBA RECOLORADO® Real estate listings held by brokers other than Prevu are marked with the IDX Logo. This information is being provided for the consumers' personal, non-commercial use and may not be used for any other purpose. All information subject to change and should be independently verified.

Full MLS Disclaimers

Rebate estimate is indicative only and based on listing price and estimated buyer's agent commission paid by owner, if applicable. Final rebates are subject to Terms of Use and may vary due to final negotiated transaction terms.