BuySellBlogBrowse Listings

323 Butternut Way Irving, Texas 75063

For Sale

$1,250,000

Smart Buyer Rebate $12,500

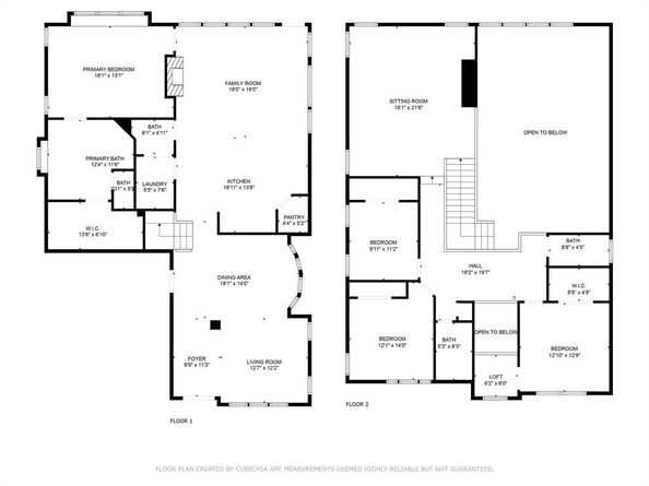
Experience luxury living in this gorgeous GRAND HOME, located in one of DFW’s most sought-after neighborhoods. This thoughtfully designed residence features an open and bright floor plan with 4 spacious bedrooms and 3.5 bathrooms, including the convenience of a main primary suite on the first floor and an equally impressive secondary primary bedroom upstairs. This home offers an open-concept design with formals, a spacious family room, game room, media room and an upstairs tech loft. This home is flooded with natural light, creating a open, bright and inviting atmosphere throughout every room. Just minutes from major highways, retail spots like Walmart, Sam's Club, Kohl’s, and the upcoming HEB, plus only 11 minutes from DFW Airport. Inside, enjoy smooth hardwood floors, a staircase with wrought iron spindles, and 8-foot doors with sleek matte black hardware. The vaulted family room features a modern fireplace with stunning tile. The gourmet kitchen boasts white Shaker cabinets, quartzite countertops, a gas cooktop, stainless steel appliances, and a large walk-in pantry. Energy-efficient with R-38 insulation and tankless water heater. Walking distance to Sam Houston Trail Park. Luxury and convenience await!

Listed by Iltiaz Nagaria

·

JPAR North Central Metro 2

·

972-836-9295

Last updated October 19, 2025

·

Source: NTREIS #21054979

Listing Facts

  • TypeSingle-family
  • NeighborhoodValley Ranch
  • Bedrooms4
  • Bathrooms4
  • Days on Prevu41
  • HOA/Maint. Fees$2,207/annual
  • Size3,236 sqft
  • Price per sqft$386

Amenities

  • Dishwasher
  • Pets Allowed
  • Air Conditioning

Location

Mortgage Calculator

Listing History

09/10/2025
Listed by JPAR North Central Metro 2
$1,250,000

Property Details for 323 Butternut Way

Association

Fees

  • Association Fee: $2,207.00 Annually
  • Association Fee Includes: Maintenance Grounds

Exterior

Construction

  • Roof: Composition
  • Year Built: 2021
  • Year Built Details: Preowned
  • Architectural Style: Contemporary/Modern
  • Construction Materials: Brick
  • Exterior Features: Rain Gutters

Features

  • Fencing: Back Yard, Privacy, Rock/Stone, Wood

Measurements

  • Lot Size Acres: 0.13
  • Lot Size Area: 6,016
  • Lot Size Square Feet: 6,016
  • Lot Size Units: Square Feet

Financial

Taxes

  • Parcel Number: 327248100D0020000

Interior

Features

  • Appliances: Dishwasher, Disposal, Gas Cooktop, Gas Water Heater, Microwave, Double Oven, Plumbed For Gas In Kitchen, Tankless Water Heater, Vented Exhaust Fan
  • Fireplace Features: Gas, Living Room
  • Fireplaces Total: 1
  • Flooring: Carpet, Ceramic Tile, Wood
  • Interior Features: Cable TV Available, Decorative Lighting, Double Vanity, Flat Screen Wiring, Granite Counters, High Speed Internet Available, In-Law Suite Floorplan, Loft, Open Floorplan, Pantry, Sound System Wiring, Walk-In Closet(s)

Measurements

  • Living Area: 3,236

Rooms

  • Bathrooms Full: 3
  • Bathrooms Half: 1
  • Bathrooms Total Integer: 4
  • Bedrooms Total: 4

Other

General

  • Exclusions: security cameras, fridge, washer and dryer

Location

  • Subdivision Name: Silverleaf Estates
  • Tax Block: D
  • Tax Lot: 2

Parking

Parking

  • Attached Garage: Yes
  • Garage Spaces: 2
  • Garage: Yes
  • Parking Features: Driveway, On Street

Schools

Elementary School

  • Elementary School: Landry

Utilities

Equipment

  • Cooling: Ceiling Fan(s), Central Air, Electric, Zoned
  • Heating: Central, Electric, Fireplace(s), Natural Gas, Zoned
  • Laundry Features: Dryer Hookup, Washer Hookup
  • Utilities: All Weather Road, City Sewer, City Water, Concrete, Curbs, Underground Utilities

Based on information from NTREIS and/or other sources. All data, including all measurements and calculations of area, is obtained from various sources and has not been, and will not be, verified by Prevu or the MLS. Information is provided exclusively for consumer's personal, non-commercial use and may not be used for any purpose other than to identify prospective properties consumer may be interested in purchasing.

Full MLS Disclaimers

Rebate estimate is indicative only and based on listing price and estimated buyer's agent commission paid by owner, if applicable. Final rebates are subject to Terms of Use and may vary due to final negotiated transaction terms.