BuySellBlogBrowse Listings

31 Walnut AvenueSouth Farmingdale, NY 11735

For Sale

$739,999

Smart Buyer Rebate $6,000

Spacious 5 Bedroom Cape on Quiet Dead-End Block – Farmingdale Schools
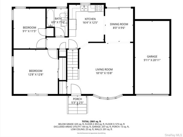
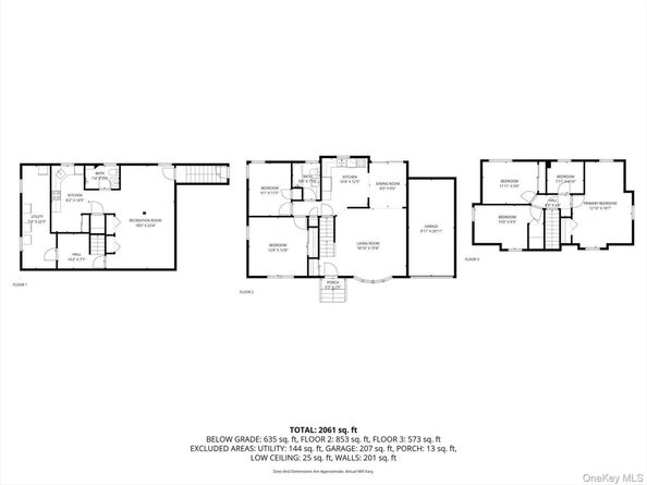
Welcome to this charming and well-maintained 5-bedroom, 2-bath Cape located on a peaceful dead-end street in desirable Farmingdale.
The first floor features 2 bedrooms, a full bath, a bright living room, and a dining room with sliders leading out to a deck and a beautifully manicured lawn — perfect for entertaining or relaxing outdoors. The kitchen offers a newer refrigerator and wall ovens.
Upstairs, you’ll find 3 additional bedrooms and a bonus room that’s already set up to become a full bathroom with plumbing in the walls, plus access to convenient over-garage storage.
The finished basement includes a full bath, an outside entrance, washer and dryer, and plenty of room for recreation or guests.
Additional highlights include a new above-ground oil tank, 3-zone heating, wall A/C units, and lovely landscaped grounds with both a deck and patio area.
This home offers incredible space and potential in a quiet, family-friendly location close to schools, parks, shopping, and transportation.

Listed by Maria Mizzi

·

Weichert Realtors Performance

·

516-845-4700

Last updated October 23, 2025

·

Source: OneKey #924908

Listing Facts

  • TypeSingle-family
  • NeighborhoodSouth Farmingdale
  • Bedrooms5
  • Bathrooms2
  • Days on Prevu4
  • Taxes$12,561.24/year
  • Size1,285 sqft
  • Price per sqft$576

Amenities

  • Dishwasher
  • Private Outdoor Space
  • Washer/Dryer
  • Parking

Location

Mortgage Calculator

Listing History

10/20/2025
Listed by Weichert Realtors Performance
$739,999

Property Details for 31 Walnut Avenue

Exterior

Construction

  • Year Built: 1958
  • Architectural Style: Cape Cod
  • Construction Materials: Brick, Vinyl Siding

Features

  • Patio And Porch Features: Deck, Patio

Measurements

  • Building Area Total: 1,285
  • Building Area Units: Square Feet
  • Lot Features: Landscaped, Level
  • Lot Size Acres: 0.16
  • Lot Size Square Feet: 7,000

Financial

Taxes

  • Parcel Number: 2489-49-089-00-0060-0
  • Tax Annual Amount: $12,561.24
  • Tax Assessed Value: $418.00
  • Tax Year: 2024

Interior

Features

  • Appliances: Cooktop, Dishwasher, Dryer, Oven, Refrigerator, Washer
  • Flooring: Carpet, Hardwood
  • Interior Features: First Floor Bedroom, Formal Dining

Measurements

  • Living Area: 1,285
  • Living Area Source: Public Records

Rooms

  • Basement: Walk-Out Access
  • Has Basement: Yes
  • Bathrooms Full: 2
  • Bathrooms Total Integer: 2
  • Bedrooms Total: 5
  • Rooms Total: 8

Other

Location

  • Tax Block: 89
  • Tax Lot: 60

Parking

Parking

  • Garage Spaces: 1
  • Garage: Yes
  • Parking Features: Driveway

Schools

Elementary School

  • Elementary School: Saltzman East Memorial Elem Sch
  • Elementary School District: Farmingdale

High School

  • High School: Farmingdale Senior High School
  • High School District: Farmingdale

Middle or Junior School

  • Middle Or Junior School: Howitt School
  • Middle Or Junior School District: Farmingdale

Utilities

Equipment

  • Cooling: Wall/Window Unit(s)
  • Heating: Oil
  • Laundry Features: In Basement
  • Sewer: Public Sewer
  • Utilities: Electricity Connected, Sewer Connected, Trash Collection Public, Water Connected
  • Water Source: Public

The data relating to real estate for sale on this website comes in part from the IDX Program of OneKey™ MLS. The source of the displayed data is either the property owner or public record provided by non-governmental third parties. It is believed to be reliable but not guaranteed. This information is provided exclusively for consumers’ personal, non-commercial use. Information Copyright 2025, OneKey™ MLS. All Rights Reserved.

Full MLS Disclaimers

Rebate estimate is indicative only and based on listing price and estimated buyer's agent commission paid by owner, if applicable. Final rebates are subject to Terms of Use and may vary due to final negotiated transaction terms.