Prevu by reAlpha
BuySellBlogBrowse Listings

301 Border Street 513Boston, MA 02128

For Sale

$629,000

Smart Buyer Rebate - Ask

Waterfront living at its finest! Step into luxury with this new construction 2 Bed / 1.5 Bath condo in East Boston. Floor-to-ceiling windows bring abundant natural light and showcase stunning panoramic views of the Boston Harbor. The modern open layout is designed for both style and function, featuring sleek Metropolitan cabinetry, quartz countertops and full-slab quartz backsplashes. Engineered oak hardwood floors, high-end Bosch appliances plus the convenience of in-unit laundry. Take in more breathtaking views from the building's exclusive roof deck or purchase a private roof deck of your own. This residence includes one dedicated tandem stacker parking spot ($75.58/mo.) and access to Mira’s top-tier amenities: fitness center, club room, private meeting space, pet wash station, curated art gallery and roof deck with City Views. Located in the heart of East Boston’s vibrant neighborhood, just 0.5 miles to Maverick Square T Station with easy access to all major highways.

Listed by Aleksandra Frasheri

·

Century 21 Cityside

·

617-953-8426

Listed by Nico Longo

·

Century 21 Cityside

Last updated November 12, 2025

·

Source: MLSPin #73443031

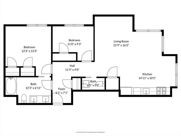
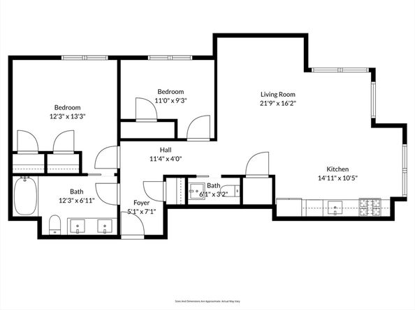
Listing Facts

  • TypeCondo
  • NeighborhoodCentral Square
  • Bedrooms2
  • Bathrooms2
  • Days on Prevu61
  • HOA/Maint. Fees$705.51/month
  • Taxes$8,714/year
  • Size999 sqft
  • Price per sqft$630

Amenities

  • Dishwasher
  • Private Outdoor Space
  • Washer/Dryer
  • Pets Allowed
  • Air Conditioning
  • Parking
  • Fitness Center

Location

Mortgage Calculator

Listing History

10/21/2025
Price Decreased
$629,000
10/13/2025
Listed by Century 21 Cityside
$635,000

Property Details for 301 Border Street 513

Association

Amenities

  • Association Amenities: Elevator(s), Park, Fitness Center, Clubroom
  • Community Features: Public Transportation, Shopping, Park, Walk/Jog Trails, Bike Path, Highway Access, Public School, T-Station, University
  • Pets Allowed: Yes w/ Restrictions

Fees

  • Association Fee: $705.51 Monthly
  • Association Fee Includes: Water, Sewer, Insurance, Maintenance Structure, Maintenance Grounds, Snow Removal, Trash, Reserve Funds

Exterior

Construction

  • Number Of Units Total: 64
  • Property Attached: Yes
  • Stories: 1
  • Stories Total: 1
  • Structure Type: Mid-Rise
  • Year Built: 2023
  • Year Built Details: Actual
  • Building Name: Mira
  • Common Walls: Corner
  • Construction Materials: Frame, Stone
  • Entry Level: 5
  • Entry Location: Unit Placement(Upper)
  • Exterior Features: Deck - Roof

Features

  • Patio And Porch Features: Deck - Roof
  • Waterfront Features: Waterfront, Harbor, Ocean, 1/2 To 1 Mile To Beach, Beach Ownership(Public)
  • Waterfront: Yes

Measurements

  • Building Area Total: 999
  • Building Area Units: Square Feet
  • Lot Size Units: Acres

Financial

Taxes

  • Parcel Number: 1330187
  • Tax Annual Amount: $8,714.00
  • Tax Assessed Value: $9,999,999.00
  • Tax Year: 2025

Interior

Features

  • Appliances: Range, Dishwasher, Disposal, Microwave, Refrigerator, Freezer, Washer, Dryer, Range Hood
  • Flooring: Tile, Marble, Engineered Hardwood

Measurements

  • Living Area: 999
  • Living Area Source: Master Deed

Rooms

  • Basement: N
  • Bathrooms Full: 1
  • Bathrooms Half: 1
  • Bathrooms Total Integer: 2
  • Bedrooms Total: 2
  • Rooms Total: 4

Parking

Parking

  • Attached Garage: Yes
  • Covered Spaces: 1
  • Garage Spaces: 1
  • Garage: Yes
  • Parking Features: Attached, Deeded
  • Parking Total: 1

Utilities

Equipment

  • Cooling: Central Air
  • Has Cooling: Yes
  • Heating: Central, Natural Gas
  • Has Heating: Yes
  • Laundry Features: In Unit
  • Sewer: Public Sewer
  • Water Source: Public

Frequently Asked Questions

How many bedrooms and bathrooms does this condo have?

There are 2 bedrooms and 2 bathrooms in this condo at 301 Border Street 513.

Does this condo have parking?

Yes, there is 1 parking space available for 301 Border Street 513.

Are pets allowed at 301 Border Street?

Yes, 301 Border Street allows pets. Check the Property Details for any relevant restrictions.

What are the annual taxes for 301 Border Street 513?

Annual taxes for this condo are estimated at $8,714.

How does 301 Border Street 513 compare to other condos in Central Square?

This condo is listed 13% below the average price for condos in Central Square and has been on the market for 4 less days than the typical home in this area.

What building or home owners association is the condo part of?

This condo is in the Mira building.

What is the square footage on this condo?

According to the MLS, this listing is 999 sqft.

301 Border Street 513 is a 2-bedroom, 2-bath condo for sale in Boston MA 02128. Listed on Prevu for 61 days at $629,000. This includes a recent price decrease of $6,000. This residence features 999 square feet of living space, located in Boston. The median listing price for condos in this area is $725,000. Additional amenities include private outdoor space, dishwasher, pets allowed, air conditioning, fitness center, parking, and washer/dryer. View other condo listings in Boston.

The property listing data and information, or the Images, set forth herein were provided to MLS Property Information Network, Inc. from third party sources, including sellers, lessors, landlords and public records, and were compiled by MLS Property Information Network, Inc. The property listing data and information, and the Images, are for the personal, non commercial use of consumers having a good faith interest in purchasing, leasing or renting listed properties of the type displayed to them and may not be used for any purpose other than to identify prospective properties which such consumers may have a good faith interest in purchasing, leasing or renting. MLS Property Information Network, Inc. and its subscribers disclaim any and all representations and warranties as to the accuracy of the property listing data and information, or as to the accuracy of any of the Images, set forth herein.

Full MLS Disclaimers

Rebate estimate is indicative only and based on listing price and estimated buyer's agent commission paid by owner, if applicable. Final rebates are subject to Terms of Use and may vary due to final negotiated transaction terms.