BuySellBlogBrowse Listings

2835 S University BoulevardDenver, CO 80210

For Sale

$679,000

Smart Buyer Rebate $6,790

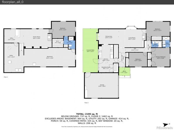
Welcome to Cherry Hills Vista, a coveted Denver neighborhood filled with picturesque tree-lined streets, enduring character and timeless appeal. This 4-bedroom, 3-bath home combines main-level living with a finished basement perfect for multigenerational living, and a generous backyard ideal for entertaining. An extended driveway lined with serene, mature greenery leads to the home’s front entrance, featuring an attached garage, a cozy covered porch, and generous parking. Hardwood floors extend through the home’s open layout, offering effortless flow. The living room centers around a charming wood-burning fireplace with built-in shelving, flowing effortlessly into a formal dining room perfect for hosting dinner parties. The eat-in kitchen shines with white cabinetry, granite countertops, self-cleaning oven, and a walk-in pantry that can easily convert to an upstairs laundry. A breakfast nook opens to a covered patio and fenced backyard—a tranquil retreat for grilling or enjoying quiet mornings under the trees. Bright and inviting, the main-level primary suite includes a glass-enclosed shower and space for everyday convenience. Two additional bedrooms and a full bath provide flexible space for family, guests, or a home office. Downstairs, a sunny rec room with built-ins and a gas fireplace offers the ideal spot for movie nights or game days, flowing seamlessly into an open office with a built-in desk. A spacious lower-level bedroom serves as a second primary suite with a walk-in closet and a private bathroom, complemented by a nearby laundry area for daily ease. The backyard offers complete privacy, shaded by mature trees and alive with trumpet vines in bloom all summer. Located in vibrant University Park, enjoy top-rated schools, scenic walking trails, and nearby cultural attractions. Indulge in nearby restaurants, shop at University Hills Plaza, or hop on 285 or I-25 for quick access to DTC, Wash Park, and Downtown Denver.

Listed by Missy Crew

·

License #55059226

·

The Steller Group, Inc

·

720-338-0757

Last updated October 16, 2025

·

Source: REcolorado #9759966

Listing Facts

  • TypeSingle-family
  • NeighborhoodUniversity
  • Bedrooms4
  • Bathrooms3
  • Days on Prevu28
  • Taxes$3,316/year
  • Size2,416 sqft
  • Price per sqft$281

Amenities

  • Dishwasher
  • Private Outdoor Space
  • Washer/Dryer
  • Parking

Location

Mortgage Calculator

Listing History

09/26/2025
Listed by The Steller Group, Inc
$679,000

Property Details for 2835 S University Boulevard

Exterior

Construction

  • Roof: Composition
  • Structure Type: House
  • Window Features: Bay Window(s), Window Coverings
  • Year Built: 1959
  • Architectural Style: Traditional
  • Common Walls: No Common Walls
  • Construction Materials: Brick
  • Exterior Features: Private Yard, Rain Gutters

Features

  • Direction Faces: East
  • Fencing: Full
  • Patio And Porch Features: Covered, Front Porch, Patio
  • Road Frontage Type: Public

Measurements

  • Building Area Total: 3,142
  • Lot Features: Irrigated, Landscaped, Level, Many Trees, Near Public Transit, Sprinklers In Front, Sprinklers In Rear
  • Lot Size Acres: 0.23
  • Lot Size Area: 10,100
  • Lot Size Square Feet: 10,100
  • Lot Size Units: Square Feet

Financial

Taxes

  • Parcel Number: 5351-12-021
  • Tax Annual Amount: $3,316.00
  • Tax Year: 2024

Interior

Features

  • Appliances: Convection Oven, Dishwasher, Disposal, Dryer, Microwave, Range Hood, Refrigerator, Self Cleaning Oven, Washer
  • Fireplace Features: Basement, Gas, Living Room
  • Fireplaces Total: 2
  • Flooring: Carpet, Tile, Wood
  • Interior Features: Built-in Features, Ceiling Fan(s), Eat-in Kitchen, Entrance Foyer, Granite Counters, Pantry, Primary Suite, Smoke Free, Walk-In Closet(s)

Measurements

  • Living Area: 2,416

Rooms

  • Basement: Bath/Stubbed, Finished, Full, Interior Entry
  • Has Basement: Yes
  • Bathrooms Full: 1
  • Bathrooms Three Quarter: 2
  • Bathrooms Total Integer: 3
  • Bedrooms Total: 4
  • Main Level Bathrooms: 2
  • Main Level Bedrooms: 3

Other

General

  • Exclusions: n/a

Location

  • Subdivision Name: Cherry Hills Vista

Parking

Parking

  • Attached Garage: Yes
  • Garage Spaces: 2
  • Parking Features: Exterior Access Door, Finished Garage, Storage
  • Parking Total: 2

Schools

Elementary School

  • Elementary School: Slavens E-8
  • Elementary School District: Denver 1

High School

  • High School: Thomas Jefferson
  • High School District: Denver 1

Middle or Junior School

  • Middle Or Junior School: Merrill
  • Middle Or Junior School District: Denver 1

Utilities

Equipment

  • Cooling: Attic Fan, Evaporative Cooling
  • Heating: Baseboard, Hot Water
  • Laundry Features: In Unit
  • Sewer: Public Sewer
  • Utilities: Cable Available, Electricity Available, Electricity Connected, Internet Access (Wired), Natural Gas Available, Natural Gas Connected, Phone Available, Phone Connected

The content relating to real estate for sale in this Web site comes in part from the Internet Data eXchange ("IDX") program of METROLIST, INC., DBA RECOLORADO® Real estate listings held by brokers other than Prevu are marked with the IDX Logo. This information is being provided for the consumers' personal, non-commercial use and may not be used for any other purpose. All information subject to change and should be independently verified.

Full MLS Disclaimers

Rebate estimate is indicative only and based on listing price and estimated buyer's agent commission paid by owner, if applicable. Final rebates are subject to Terms of Use and may vary due to final negotiated transaction terms.