Prevu by reAlpha
BuySellBlogBrowse Listings

2708 Bristol DRAustin, TX 78723

For Sale

$725,000

Smart Buyer Rebate $7,250

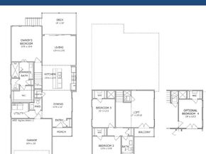
As unique as its namesake, the Pennybacker floorplan bridges the gorge between boredom and ordinary, delivering natural greenbelt views paired with unbeatable central convenience in Austin’s University Hills neighborhood. This thoughtfully designed 3-bedroom, 2.5-bath home is located just six minutes from H-E-B (Mueller), The Home Depot, and Dell Children's Medical Center, placing everyday essentials right at your fingertips. Inside, a spacious loft offers the perfect setting for a home office or secondary living area, with the easy option to convert it into a fourth bedroom upon request. The living room showcases a stunning retractable glass door system that opens to a large patio and private greenbelt-facing backyard—no rear neighbors, just peaceful views. A full two-car garage with epoxy floors adds style and function, while the kitchen impresses with a gorgeous island that comfortably seats four, ceiling-height cabinetry for abundant storage, and a French drawer refrigerator, with an optional washer and dryer package available. The first-floor primary suite overlooks the greenbelt and features vaulted ceilings, a double vanity, a frameless glass walk-in shower, and a spacious walk-in closet. Built by Thurman Homes, Austin’s Green Builder of the Year, this home includes 100% foam insulation, a state-of-the-art variable speed AC system, and is solar ready—all with no HOA fees and no deed restrictions.

Listed by Tom Rott

·

License #588043

·

Select Austin Real Estate

·

(512) 410-9323

Last updated February 16, 2026

·

Source: ACTRIS #9792995

Listing Facts

  • TypeSingle-family
  • NeighborhoodWindsor Park
  • Bedrooms3
  • Bathrooms3
  • Days on Prevu75
  • Taxes$4,971/year
  • Size1,973 sqft
  • Price per sqft$367

Amenities

  • Dishwasher
  • Private Outdoor Space
  • Air Conditioning
  • Parking
  • Swimming Pool

Location

Mortgage Calculator

Listing History

02/15/2026
Listed by Select Austin Real Estate
$725,000

Property Details for 2708 Bristol DR

Association

Amenities

  • Community Features: Curbs

Exterior

Construction

  • Property Condition: To Be Built
  • Roof: Composition, Shingle
  • Window Features: Double Pane Windows
  • Year Built: 2026
  • Builder Name: Thurman Homes
  • Construction Materials: Frame, Hardi Plank Type
  • Exterior Features: Balcony, Gutters Full, No Exterior Steps, Private Yard

Features

  • Direction Faces: SW
  • Fencing: Fenced, Full, Gate, Wood
  • Patio And Porch Features: Patio, Porch
  • View: Panoramic

Measurements

  • Lot Features: Back To Park/Greenbelt, Curbs, Public Maintained Road, Sprinkler - Automatic, Sprinkler - Back Yard, Sprinklers In Front
  • Lot Size Acres: 0.13
  • Lot Size Area: 0
  • Lot Size Dimensions: 52,115
  • Lot Size Square Feet: 5,980

Financial

Taxes

  • Parcel Number: 02222110220000
  • Tax Annual Amount: $4,971.00
  • Tax Assessed Value: $242,917.00
  • Tax Year: 2025

Interior

Features

  • Appliances: Dishwasher, Disposal, Exhaust Fan, Gas Cooktop, Microwave, Free-Standing Range, Refrigerator, Stainless Steel Appliance(s), Gas Water Heater
  • Flooring: Carpet, Tile, Wood
  • Interior Features: Breakfast Bar, High Ceilings, Vaulted Ceiling(s), Quartz Counters, Stone Counters, In-Law Floorplan, Interior Steps, Multiple Living Areas, Pantry, Primary Bedroom On Main, Walk-In Closet(s)

Measurements

  • Living Area: 1,973
  • Living Area Source: Builder

Rooms

  • Bathrooms Full: 2
  • Bathrooms Half: 1
  • Bathrooms Total Integer: 3
  • Bedrooms Total: 3
  • Main Level Bedrooms: 1

Other

Location

  • Subdivision Name: Highlands / University Hills In East Austin
  • Tax Block: A
  • Tax Lot: 4

Parking

Parking

  • Attached Garage: Yes
  • Covered Spaces: 2
  • Garage Spaces: 2
  • Garage: Yes
  • Parking Features: Attached, Door-Single, Garage Door Opener, Garage Faces Front
  • Parking Total: 4

Schools

Elementary School

  • Elementary School: Harris
  • Elementary School District: Austin ISD

High School

  • High School: Northeast Early College
  • High School District: Austin ISD

Middle or Junior School

  • Middle Or Junior School: Webb
  • Middle Or Junior School District: Austin ISD

Utilities

Equipment

  • Cooling: Central Air
  • Heating: Central, Natural Gas
  • Sewer: Public Sewer
  • Utilities: Electricity Connected, Internet-Cable, Internet-Fiber, Natural Gas Connected, Sewer Connected, Water Connected
  • Water Source: Public

Frequently Asked Questions

How many bedrooms and bathrooms does this single-family home have?

There are 3 bedrooms and 3 bathrooms in this single-family home at 2708 Bristol DR.

What schools are nearby to 2708 Bristol DR?

Nearby schools include the Harris Elementary School, Webb Middle School, and Northeast Early College High School.

Does this single-family home have parking?

Yes, there are 2 parking spaces available for 2708 Bristol DR.

What are the annual taxes for 2708 Bristol DR?

Annual taxes for this single-family home are estimated at $4,971.

How does 2708 Bristol DR compare to other single-family homes in Windsor Park?

This single-family home is listed 26% above the average price for single-family homes in Windsor Park and has been on the market for 13 more days than the typical home in this area.

What is the square footage on this single-family home?

According to the MLS, this listing is 1,973 sqft.

2708 Bristol DR is a 3-bedroom, 3-bath single-family home for sale in Austin TX 78723. On Prevu for 75 days at $725,000. This home features 1,973 square feet of living space, located in Windsor Park. The median listing price for single-family homes in this area is $560,000. Nearby schools include Harris Elementary School, Webb Middle School, and Northeast Early College High School. Additional amenities include private outdoor space, dishwasher, air conditioning, parking, and swimming pool. Explore more single-family home listings in Austin.

Based on information from ACTRIS and/or other sources. All data, including all measurements and calculations of area, is obtained from various sources and has not been, and will not be, verified by Prevu or the MLS. Information is provided exclusively for consumer's personal, non-commercial use and may not be used for any purpose other than to identify prospective properties consumer may be interested in purchasing.

Full MLS Disclaimers

Rebate estimate is indicative only and based on listing price and estimated buyer's agent commission paid by owner, if applicable. Final rebates are subject to Terms of Use and may vary due to final negotiated transaction terms.