BuySellBlogBrowse Listings

2320 Arroyo Avenue Dallas, Texas 75219

For Sale

$675,000

Smart Buyer Rebate $6,750

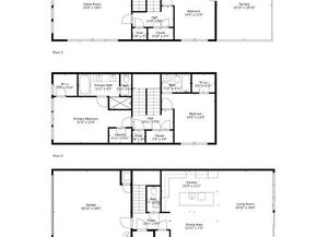
SELLER OFFERING CONCESSION TOWARD 2-1 RATE BUYDOWN WITH ACCEPTABLE OFFER. This sleek, transitional modern duplex in the heart of Dallas is perfectly situated between Uptown and the Medical District, and just minutes from Oak Lawn, Downtown, and the Design District. Architecturally designed with an impressive elevation, this three-story home offers expansive open-concept living and is bathed in natural light through large windows throughout. The first floor features a sophisticated kitchen with quartz countertops, seamlessly flowing into a spacious living area with high ceilings, which opens to a private, fenced backyard—ideal for both relaxation and entertaining. On the second floor, the primary suite and a secondary ensuite bedroom provide luxurious comfort and privacy. The third floor includes an additional ensuite bedroom, a large game room, and a rooftop terrace boasting breathtaking skyline views of Dallas. With quick access to major highways DNT and I-35, this property offers convenience to nearby dining, shopping, and entertainment options. Both sides of this exceptional duplex are available for sale, offering the option to purchase individually or together. This is a unique opportunity to own a modern masterpiece in one of Dallas’s most desirable areas.

Listed by Marjan Wolford

·

Christies Lone Star

·

214-821-3336

Listed by Rebecca Simmons

·

Christies Lone Star

Last updated October 21, 2025

·

Source: NTREIS #21066898

Listing Facts

  • TypeSingle-family
  • NeighborhoodMedical District
  • Bedrooms3
  • Bathrooms4
  • Days on Prevu26
  • Size2,570 sqft
  • Price per sqft$263

Amenities

  • Dishwasher
  • Pets Allowed
  • Air Conditioning
  • Parking

Location

Mortgage Calculator

Listing History

10/21/2025
Price Decreased
$675,000
09/25/2025
Listed by Christies Lone Star
$699,000

Property Details for 2320 Arroyo Avenue

Exterior

Construction

  • Property Attached: Yes
  • Roof: Flat
  • Year Built: 2024
  • Year Built Details: New Construction - Complete
  • Architectural Style: Contemporary/Modern
  • Construction Materials: Stucco
  • Exterior Features: Covered Patio/Porch, Private Yard

Features

  • Fencing: Wood

Measurements

  • Lot Features: Few Trees, Interior Lot, Sprinkler System
  • Lot Size Acres: 0.08
  • Lot Size Area: 0
  • Lot Size Dimensions: 25,150
  • Lot Size Source: Builder
  • Lot Size Square Feet: 3,615
  • Lot Size Units: Acres

Financial

Taxes

  • Parcel Number: 00000208825000000

Interior

Features

  • Appliances: Dishwasher, Disposal, Gas Range, Plumbed For Gas In Kitchen, Vented Exhaust Fan
  • Flooring: Tile, Wood
  • Interior Features: Cable TV Available, Chandelier, Decorative Lighting, Eat-in Kitchen, High Speed Internet Available, Kitchen Island, Open Floorplan, Walk-In Closet(s)

Measurements

  • Living Area: 2,570

Rooms

  • Bathrooms Full: 3
  • Bathrooms Half: 1
  • Bathrooms Total Integer: 4
  • Bedrooms Total: 3

Other

Location

  • Subdivision Name: Clifton Place 02
  • Tax Block: 92262
  • Tax Lot: 8

Parking

Parking

  • Attached Garage: Yes
  • Covered Spaces: 2
  • Garage Spaces: 2
  • Garage: Yes
  • Parking Features: Direct Access, Driveway, Garage, Garage Faces Front, Garage Single Door, Inside Entrance, Kitchen Level

Schools

Elementary School

  • Elementary School: Esperanza Medrano

Utilities

Equipment

  • Cooling: Ceiling Fan(s), Central Air, Electric, Zoned
  • Heating: Central, Natural Gas, Zoned
  • Utilities: Cable Available, City Sewer, City Water, Concrete, Curbs, Electricity Connected, Individual Gas Meter, Individual Water Meter, Natural Gas Available, Overhead Utilities, Phone Available, Sewer Available

Based on information from NTREIS and/or other sources. All data, including all measurements and calculations of area, is obtained from various sources and has not been, and will not be, verified by Prevu or the MLS. Information is provided exclusively for consumer's personal, non-commercial use and may not be used for any purpose other than to identify prospective properties consumer may be interested in purchasing.

Full MLS Disclaimers

Rebate estimate is indicative only and based on listing price and estimated buyer's agent commission paid by owner, if applicable. Final rebates are subject to Terms of Use and may vary due to final negotiated transaction terms.