Prevu by reAlpha
BuySellBlogBrowse Listings

21 Kite Hill RoadSanta Cruz, CA 95060

For Sale

$3,295,000

Smart Buyer Rebate $32,950

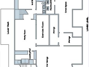
Perched above Santa Cruz with sweeping Monterey Bay views, 21 Kite Hill blends modern design, privacy, and flexible living. The epicurean kitchen features a chefs island with dual sinks and dishwashers, a butlers pantry, ample storage, and a unique tasting room with full-height shelving, wet bar, ice maker, and beverage fridge. The luxe primary suite offers vaulted ceilings, a soaking tub, radiant heated floors, and a custom walk-in closet with rotating shoe storage for 56 pairs of shoes. Two additional bedrooms provide thoughtfully designed spaces for family or guests, one with a built-in study nook and second walk-in closet. A private office guest suite with deck access and lofted sleeping area offers flexible accommodations. Downstairs, a spacious rec lounge opens to the lower deck for media, games, or gatherings. Tiered decks, mature landscaping, and peaceful hillside surroundings complete this retreat. At nearly 3,185 sq ft on a 24,568 sq ft lot with 4 bedrooms, 3.5 baths just minutes to UCSC, beaches, trails, Pasatiempo Golf Club, and Silicon Valley's prestigious tech corridor, this home is a true gem.

Listed by 2 Guys in Real Estate

·

License #70010146

·

Epique Realty

·

831-750-9795

Last updated January 30, 2026

·

Source: MLSListings #ML82033227

Listing Facts

  • TypeSingle-family
  • NeighborhoodPasatiempo
  • Bedrooms3
  • Days on Prevu1
  • HOA/Maint. Fees$2,800/annual
  • Size3,185 sqft
  • Price per sqft$1,035

Amenities

  • Pets Allowed
  • Parking

Location

Mortgage Calculator

Listing History

01/30/2026
Listed by Epique Realty
$3,295,000

Property Details for 21 Kite Hill Road

Association

Fees

  • Association Fee: $2,800.00 Annually

General

  • Association Name: Pasatiempo Homeowners ASS

Exterior

Construction

  • Roof: Composition
  • Stories: 1
  • Year Built: 1978
  • Year Built Details: 2

Measurements

  • Building Area Total: 3,185
  • Lot Size Acres: 0.56
  • Lot Size Area: 24,568
  • Lot Size Source: Assessor
  • Lot Size Square Feet: 24,568
  • Lot Size Units: Square Feet

Financial

Taxes

  • Parcel Number: 067-521-01-000

Interior

Features

  • Appliances: Exhaust Fan, Garbage Disposal, Ice Maker, Refrigerator
  • Fireplace Features: Gas Starter, Living Room, Two-Way
  • Fireplaces Total: 1
  • Flooring: Carpet, Hardwood, Tile
  • Interior Features: High Ceiling

Measurements

  • Living Area: 3,185

Rooms

  • Bathrooms Full: 3
  • Bathrooms Half: 1
  • Bedrooms Total: 3

Parking

Parking

  • Attached Garage: Yes
  • Garage Spaces: 2
  • Garage: Yes
  • Parking Features: Attached Garage

Schools

Elementary School

  • Elementary School District: Scotts Valley Unified

High School

  • High School District: Scotts Valley Unified

Utilities

Equipment

  • Cooling: Other
  • Heating: Central Forced Air
  • Laundry Features: Inside, In Utility Room
  • Utilities: Public Utilities, Water - Public
  • Water Source: Public

Frequently Asked Questions

How many bedrooms does this single-family home have?

There are 3 bedrooms in this single-family home at 21 Kite Hill Road.

Does this single-family home have parking?

Yes, there are 2 parking spaces available for 21 Kite Hill Road.

How does 21 Kite Hill Road compare to other single-family homes in Pasatiempo?

This single-family home is listed 1% below the average price for single-family homes in Pasatiempo and has been on the market for 56 less days than the typical home in this area.

What building or home owners association is the single-family home part of?

This single-family home is part of the Pasatiempo Homeowners ASS home owners association.

What is the square footage on this single-family home?

According to the MLS, this listing is 3,185 sqft.

21 Kite Hill Road is a 3-bedroom single-family home for sale in Santa Cruz CA 95060. On Prevu for 1 days at $3,295,000. This property features 3,185 square feet of living space, located in California. The median listing price for single-family homes in this area is $2,495,000. Property amenities include pets allowed and parking. Explore more single-family home listings in California.

Based on information from MLSListings™️ and/or other sources. All data, including all measurements and calculations of area, is obtained from various sources and has not been, and will not be, verified by Prevu or the MLS. Information is provided exclusively for consumer's personal, non-commercial use and may not be used for any purpose other than to identify prospective properties consumer may be interested in purchasing.

Full MLS Disclaimers

Rebate estimate is indicative only and based on listing price and estimated buyer's agent commission paid by owner, if applicable. Final rebates are subject to Terms of Use and may vary due to final negotiated transaction terms.