Prevu by reAlpha
BuySellBlogBrowse Listings

205 Clinton StreetBrooklyn, NY 11201

For Sale

$18,500,000

Smart Buyer Rebate $231,250

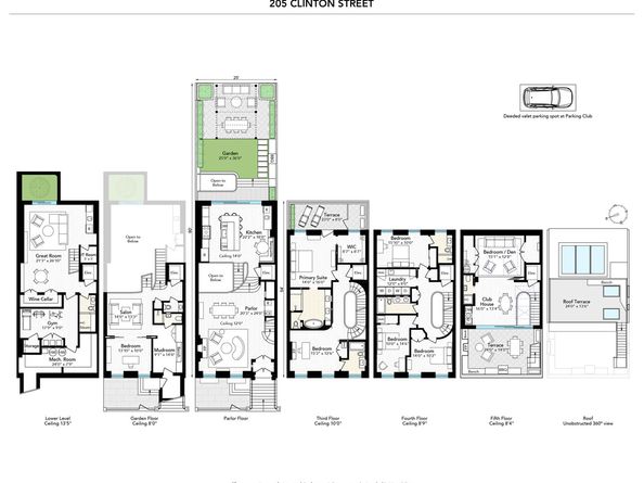
  Above and beyond in every sense imaginable. The epitome of contemporary design meets historic brownstone style in this utterly reimagined and reconstructed 25-foot-wide Cobble Hill townhouse.  The marriage of loft living and brownstone charm, this house was intentionally designed to maximize light and a sense of space and connection throughout. It includes top-of-the-line finishes, numerous separate but integrated living areas, an elevator stopping on every floor, four separate levels of outdoor space and a highly sought-after North Cobble Hill location. A roster of smart home features and full-service concierge parking included with the sale, create an effortless lifestyle in this turnkey showpiece home. Masterfully designed by award-winning Brooklyn architect Mike Ingui, this bespoke residence is the result of more than two years of thoughtful planning and rigorous landmark approvals. Modern interventions and engineering join lovingly preserved historical details, like original fireplace mantels, cleverly repurposed stained glass windows, beautifully restored by hand, a stunning pier mirror that adds a touch of grandeur to the space - all seamlessly integrated into modern living. Thoughtfully designed staircase niches capture the timeless charm of classic brownstone architecture. Original brick was repurposed to create arched doorways in the home's wine cellar.  Ceilings soar up to 14 feet high over hand-sanded white wide-plank oak flooring. Ultra-high-end triple-pane windows glide, tilt or turn with ease and keep the neighborhood noise out. Custom millwork, Waterworks fixtures, swaths of marble, and a stunning hand-carved staircase run throughout. The drama of the space and volume greets you the moment you enter through the parlor foyer, where views stretch over this massive space and into the rear yard. In the living/dining room, entertain alongside a marble gas fireplace (which can be converted to wood-burning should you prefer) and custom walnut and marble bar with a Sub-Zero wine cooler and ice maker. Ahead looking across the home's stunning 30-foot tall triple-height center atrium, the gourmet kitchen impresses with double-height ceilings, walnut millwork, and top of the line appliances, including a stainless steel AGA Elise induction range, two Miele dishwashers, and Sub-Zero refrigerator-freezer columns and drawers. Take casual meals at the built-in banquette or the massive island topped by a single slab of 2-inch marble, and enjoy the convenience of the concealed charging station and coffee bar. Outside, the yard welcomes al fresco entertaining with a bluestone patio, SynLawn yard, an Ipe pergola and an outdoor kitchen with built-in gas grill. On the garden level, a lovely salon flows to a stately home office or guest bedroom. The oversized mudroom delivers generous storage for all of your gear from boots to bikes. A powder room for the main living space and a full bathroom are located at this level. One floor down, a 13-foot-tall great room invites all to relax with another wet bar and wine lovers will delight over an extraordinary 500-bottle wine cellar with dedicated cooling system and arched doorways. A fitness space is complemented by a spa bathroom with steam shower. Additional storage and the home's mechanicals are also located on this level. One floor above the parlor, the exquisite primary suite opens to an East-facing terrace overlooking the yard below. A windowed walk-in closet offers generous wardrobe storage, while the oversized en suite bathroom features a soaking tub, benched shower, private water closet, heated floors and double vanity with Waterworks fixtures surrounded by Calacatta marble. The fireplace den on this floor is perfect as a sitting area, nursery or media lounge with an en suite bathroom, featuring a clean fuel fireplace. On the fourth floor, you'll find a secondary suite with en suite bath, plus two more bedrooms that share an oversized hall bath with double sinks. A proper laundry room with two sets of large-capacity washer-dryers, a sink and folding area, makes laundry day a breeze. The top-floor clubhouse is the cherry on top. Enjoy seamless indoor-outdoor living and world-class entertaining with a tasteful kitchenette, multiple living spaces, a 15-foot skylight and huge sliding doors that open up a span of12-feet to reveal a terrace with a fireplace and grill. Above, the ultra-rare, hot tub-ready roof deck delivers 360-degree views of iconic skylines, the East River and dazzling sunsets. Built in the 1850s, this home's near-complete reconstruction included truly everything inside the walls along with reverent facade updates that faithfully restored the original architectural ornamentation. Twelve-zone HVAC, new 400-amp electrical service, Lutron lighting, integrated top of the line Polk audio. Ring cameras, and high-speed internet in every room make this the model of modern living. Perfect for entertaining, the six zone audio system can play the same music throughout the home or different music in each zone. From this tree-lined block in the Cobble Hill Historic District, you'll enjoy easy access to world-renowned shopping and dining along Court and Smith Streets and Atlantic Avenue. Cobble Hill Park and Brooklyn Bridge Park provide fantastic outdoor space and recreation nearby.  

Listed by LINDSAY A BARRETT

·

Douglas Elliman Real Estate

·

(917) 363-5521

Listed by Steven Taylor Schultz

·

Douglas Elliman Real Estate

Last updated November 21, 2025

·

Source: REBNY #RLS20053363

Listing Facts

  • TypeSingle-family
  • NeighborhoodCobble Hill
  • Bedrooms7
  • Bathrooms7
  • Days on Prevu63
  • Taxes$29,088/year

Amenities

  • Private Outdoor Space

Location

Mortgage Calculator

Listing History

11/21/2025
Price Decreased
$18,500,000
10/26/2025
Status changed to Active
$22,000,000
10/25/2025
Status changed to Removed from Feed
$22,000,000
10/08/2025
Listed by Douglas Elliman Real Estate
$22,000,000

Estimated Closing Costs

Total
$1,025,150
Attorney Fees
$4,000
NYC Mansion Tax
$647,500
Title Insurance
$83,250
Bank Attorney
$1,500
Mortgage Recording Tax
$284,900
Other Closing Costs
$4,000

Estimated closing costs are based on the list price of $18,500,000 and a 20% downpayment. These estimates are for indicative purposes only. Actual closing costs may vary for each transaction. See the Closing Costs Calculator for calculations specific to your situation.

Property Details for 205 Clinton Street

Association

Amenities

  • Pets Allowed: Building Yes, No

Exterior

Construction

  • Number Of Units Total: 1
  • Stories Total: 5
  • Structure Type: Townhouse
  • Year Built: 1900
  • Entry Level: 1

Features

  • Building Features: Elevator(s)
  • Patio And Porch Features: Deck

Measurements

  • Building Area Total: 1,425
  • Building Area Units: SquareFeet
  • Lot Size Area: 2,250
  • Lot Size Dimensions: 90
  • Lot Size Units: SquareFeet

Financial

Taxes

  • Parcel Number: 00292-0006
  • Tax Annual Amount: $29,088.00

Interior

Features

  • Appliances: Washer Dryer Allowed
  • Fireplace Features: Gas
  • Fireplace: Yes
  • Fireplaces Total: 1
  • Interior Features: Smoke Free

Measurements

  • Living Area Units: SquareFeet

Rooms

  • Bathrooms Full: 7
  • Bathrooms Total Integer: 7
  • Bedrooms Total: 7
  • Rooms Total: 14

Other

Location

  • City Region: Brooklyn
  • Subdivision Name: Cobble Hill
  • Tax Block: 00292
  • Tax Lot: 0006

Utilities

Equipment

  • Cooling: Zoned
  • Has Cooling: Yes
  • Laundry Features: In Unit

Frequently Asked Questions

How many bedrooms and bathrooms does this single-family home have?

There are 7 bedrooms and 7 bathrooms in this single-family home at 205 Clinton Street.

What are the annual taxes for 205 Clinton Street?

Annual taxes for this single-family home are estimated at $29,088.

How does 205 Clinton Street compare to other single-family homes in Cobble Hill?

This single-family home is listed 113% above the average price for single-family homes in Cobble Hill and has been on the market for 18 less days than the typical home in this area.

205 Clinton Street is a 7-bedroom, 7-bath single-family home for sale in Brooklyn NY 11201. On Prevu for 63 days at $18,500,000. This includes a recent price decrease of $3,500,000. This property is located in Cobble Hill. The median listing price for single-family homes in this area is $3,295,000. Additional amenities include private outdoor space. Explore more single-family home listings in Brooklyn.

Based on information from Real Estate Board of New York and/or other sources. This information is not verified for authenticity or accuracy and is not guaranteed and may not reflect all real estate activity in the market. ©2025 The Real Estate Board of New York, Inc., All rights reserved.

Full MLS Disclaimers

Rebate estimate is indicative only and based on listing price and estimated buyer's agent commission paid by owner, if applicable. Final rebates are subject to Terms of Use and may vary due to final negotiated transaction terms.