Prevu by reAlpha
BuySellBlogBrowse Listings

2004 Crooked Cree STLeander, TX 78641

For Sale

$547,490

Smart Buyer Rebate $5,475

ESTIMATED COMPLETION MAY. Images representative of plan only and may vary when built.

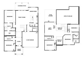
Take a tour of the stunning Homer floorplan at Rosenbusch Ranch in Leander, TX. The Homer is a two-story floor plan offering 3,008 sq. ft. of living space across 5 bedrooms, 4 bathrooms, and a loft.

The long foyer leads into a spacious family room overlooking the kitchen and dining area. The kitchen features Silestone® or quartz countertops, stainless steel appliances, decorative tile backsplash and a large kitchen island. The large main bedroom, bedroom 1, is off the family room and offers separate tub and shower and huge walk in closet.

Making your way upstairs, you will be impressed by the spacious loft that overlooks the living area and kitchen below. Transform this loft into a space of your choosing such as a media room, game room, or home gym. You will also find 3 more bedrooms upstairs and 2 full bathrooms. Each bedroom has carpeted floors and a closet.

This home comes included with a professionally designed landscape package and a full irrigation system as well as our America's Smart Home® package that offers devices such as the Qolsys IQ Panel, Video Doorbell, Alarm.com app, Honeywell Thermostat, Kwikset Smart lock, and more.

Listed by Dave Clinton

·

License #245076

·

D.R. Horton, AMERICA'S Builder

·

(512) 345-4663

Last updated March 14, 2026

·

Source: ACTRIS #7074735

Listing Facts

  • TypeSingle-family
  • NeighborhoodLeander
  • Bedrooms5
  • Bathrooms4
  • Days on Prevu2
  • HOA/Maint. Fees$70/month
  • Size3,008 sqft
  • Price per sqft$182

Amenities

  • Dishwasher
  • Private Outdoor Space
  • Air Conditioning
  • Parking
  • Swimming Pool

Location

Mortgage Calculator

Listing History

03/13/2026
Listed by D.R. Horton, AMERICA'S Builder
$547,490

Property Details for 2004 Crooked Cree ST

Association

Amenities

  • Community Features: Cluster Mailbox, Common Grounds, High Speed Internet, Park, Picnic Area, Playground, Pool, Street Lights

Fees

  • Association Fee: $70.00 Monthly
  • Association Fee Includes: Common Area Maintenance

General

  • Association Name: ROSENBUSCH RANCH

Exterior

Construction

  • New Construction: Yes
  • Property Condition: New Construction
  • Roof: Composition, Shingle
  • Window Features: Double Pane Windows, Low Emissivity Windows, Vinyl Windows
  • Year Built: 2026
  • Builder Name: DR HORTON
  • Construction Materials: Brick
  • Exterior Features: Lighting

Features

  • Direction Faces: NW
  • Fencing: Back Yard, Fenced, Wood
  • Patio And Porch Features: Covered, Patio

Measurements

  • Lot Features: Back Yard, Front Yard, Interior Lot, Landscaped, Sprinkler - Automatic, Sprinkler - Back Yard, Sprinklers In Front, Sprinkler - Side Yard
  • Lot Size Acres: 0.15
  • Lot Size Area: 0
  • Lot Size Square Feet: 6,708

Financial

Taxes

  • Parcel Number: 2004 Crooked Creek Street
  • Tax Year: 2026

Interior

Features

  • Appliances: Dishwasher, Disposal, Gas Range, Microwave, Oven, Vented Exhaust Fan, Gas Water Heater
  • Flooring: Carpet, Laminate
  • Interior Features: High Ceilings, Quartz Counters, Double Vanity, Gas Dryer Hookup, Entrance Foyer, High Speed Internet, Open Floorplan, Pantry, Recessed Lighting, Smart Home, Smart Thermostat, Walk-In Closet(s)

Measurements

  • Living Area: 3,008
  • Living Area Source: Builder

Rooms

  • Bathrooms Full: 4
  • Bathrooms Total Integer: 4
  • Bedrooms Total: 5
  • Main Level Bedrooms: 2

Other

Environmental

  • Green Energy Efficient: Appliances, Construction, Doors, Exposure/Shade, HVAC, Insulation, Lighting, Materials, Roof, Thermostat, Water Heater

Location

  • Subdivision Name: ROSENBUSCH RANCH
  • Tax Lot: 18

Parking

Parking

  • Attached Garage: Yes
  • Covered Spaces: 2
  • Garage Spaces: 2
  • Garage: Yes
  • Parking Features: Attached, Garage, Garage Faces Front
  • Parking Total: 2

Schools

Elementary School

  • Elementary School: Bagdad
  • Elementary School District: Leander ISD

High School

  • High School: Leander High
  • High School District: Leander ISD

Middle or Junior School

  • Middle Or Junior School: Leander Middle
  • Middle Or Junior School District: Leander ISD

Utilities

Equipment

  • Cooling: Central Air
  • Heating: Central
  • Laundry Features: Gas Dryer Hookup
  • Sewer: Public Sewer
  • Utilities: Electricity Available, Natural Gas Available, Sewer Connected, Water Available
  • Water Source: Public

Frequently Asked Questions

How many bedrooms and bathrooms does this single-family home have?

There are 5 bedrooms and 4 bathrooms in this single-family home at 2004 Crooked Cree ST.

What schools are nearby to 2004 Crooked Cree ST?

Nearby schools include the Bagdad Elementary School, Leander Middle, and Leander High.

Does this single-family home have parking?

Yes, there are 2 parking spaces available for 2004 Crooked Cree ST.

How does 2004 Crooked Cree ST compare to other single-family homes in Leander?

This single-family home is listed 17% below the average price for single-family homes in Leander and has been on the market for 62 less days than the typical home in this area.

What building or home owners association is the single-family home part of?

This single-family home is part of the ROSENBUSCH RANCH home owners association.

What is the square footage on this single-family home?

According to the MLS, this listing is 3,008 sqft.

2004 Crooked Cree ST is a 5-bedroom, 4-bath single-family home for sale in Leander TX 78641. On Prevu for 2 days at $547,490. This property features 3,008 square feet of living space, located in Leander. The median listing price for single-family homes in this area is $560,000. Nearby schools include Bagdad Elementary School, Leander Middle, and Leander High. Property amenities include private outdoor space, dishwasher, air conditioning, parking, and swimming pool. Browse more single-family home listings in Texas.

Based on information from ACTRIS and/or other sources. All data, including all measurements and calculations of area, is obtained from various sources and has not been, and will not be, verified by Prevu or the MLS. Information is provided exclusively for consumer's personal, non-commercial use and may not be used for any purpose other than to identify prospective properties consumer may be interested in purchasing.

Full MLS Disclaimers

Rebate estimate is indicative only and based on listing price and estimated buyer's agent commission paid by owner, if applicable. Final rebates are subject to Terms of Use and may vary due to final negotiated transaction terms.