BuySellBlogBrowse Listings

20 Daley Place 104Lynbrook, NY 11563

For Sale

$399,900

Smart Buyer Rebate - Ask

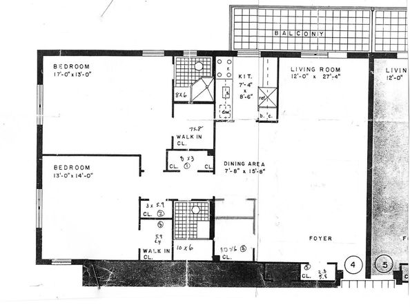
Look no further, this is the one you have been waiting for! Welcome to Lynbrook Gardens! Huge, rare, beautiful, 2 big bedroom, 2 full bath, with private oversized balcony overlooking beautiful built-in pool! Must see in person to appreciate! Huge primary bedroom with private bath and walk in closet. Corner/end unit with tons of windows and natural light. Approximately 1200 sqft of living space, which is larger than some standalone homes in the area! See floorplan attached. Beautiful hardwood, Parkay floors throughout, recessed high hat lighting throughout, tons of storage space, 6 closets total including some walk-in closets. Beautiful, well maintained, quiet, elevator building. Convenient first floor location not far from elevator (one floor above the lobby level). $1474.40 maintenance includes Taxes, Heat, Water & Gas. 1 Outdoor Parking Spot Guaranteed for $55/Month & Waiting List for Garage Spot. Laundry Room, bike room & Inground Pool on Premises. Very Close to LIRR and Lynbrook Village shopping district/dining. No smoking, No pets. 20% down required. Sale subject to term & conditions of an offering plan. Shown by appointment only. Priced to sell!

Listed by Brian E. Lewis SRES

·

EXP Realty

·

888-276-0630

Last updated September 12, 2025

·

Source: OneKey #911363

Listing Facts

  • TypeCo-op
  • NeighborhoodLynbrook
  • Bedrooms2
  • Bathrooms2
  • Days on Prevu41
  • HOA/Maint. Fees$1,474/month
  • Size1,200 sqft
  • Price per sqft$333

Amenities

  • Dishwasher
  • Private Outdoor Space
  • Elevator
  • Parking
  • Swimming Pool

Location

Mortgage Calculator

Listing History

09/11/2025
Listed by EXP Realty
$399,900

Property Details for 20 Daley Place 104

Association

Amenities

  • Community Features: Pool
  • Pets Allowed: No

Financial

  • Renting Allowed: Yes

General

  • Association Name: Alexander Wolf

Exterior

Construction

  • Property Attached: Yes
  • Stories Total: 3
  • Year Built: 1967
  • Architectural Style: Other
  • Common Walls: End Unit, No One Below
  • Construction Materials: Brick
  • Exterior Features: Balcony

Features

  • Building Features: Outdoor Space, Pool/Spa
  • Patio And Porch Features: Covered, Porch
  • Pool Features: In Ground, Outdoor Pool

Measurements

  • Building Area Units: Square Feet

Interior

Features

  • Appliances: Dishwasher, Gas Range, Microwave, Refrigerator
  • Flooring: Wood
  • Interior Features: First Floor Bedroom, First Floor Full Bath, Breakfast Bar, Chandelier, Elevator, Entrance Foyer, Formal Dining, Galley Type Kitchen, Open Floorplan, Primary Bathroom, Master Downstairs, Walk-In Closet(s)

Measurements

  • Living Area: 1,200
  • Living Area Source: Plans

Rooms

  • Basement: Common
  • Has Basement: Yes
  • Bathrooms Full: 2
  • Bathrooms Total Integer: 2
  • Bedrooms Total: 2
  • Rooms Total: 5

Other

Features

  • Accessibility Features: Accessible Bedroom, Accessible Central Living Area, Accessible Entrance, Visitor Bathroom

Location

  • Subdivision Name: Lynbrook Gardens

Parking

Parking

  • Garage: Yes
  • Parking Features: Assigned, Off Street, Parking Lot
  • Parking Total: 1

Schools

Elementary School

  • Elementary School: Waverly Park School
  • Elementary School District: Lynbrook

High School

  • High School: Lynbrook Senior High School
  • High School District: Lynbrook

Middle or Junior School

  • Middle Or Junior School: Lynbrook North Middle School
  • Middle Or Junior School District: Lynbrook

Utilities

Equipment

  • Cooling: Wall/Window Unit(s)
  • Heating: Hot Water
  • Laundry Features: Common Area, In Basement
  • Sewer: Public Sewer
  • Utilities: Cable Available, Electricity Connected, Natural Gas Connected, Phone Available, Sewer Connected, Trash Collection Public, Water Connected
  • Water Source: Public

The data relating to real estate for sale on this website comes in part from the IDX Program of OneKey™ MLS. The source of the displayed data is either the property owner or public record provided by non-governmental third parties. It is believed to be reliable but not guaranteed. This information is provided exclusively for consumers’ personal, non-commercial use. Information Copyright 2025, OneKey™ MLS. All Rights Reserved.

Full MLS Disclaimers

Rebate estimate is indicative only and based on listing price and estimated buyer's agent commission paid by owner, if applicable. Final rebates are subject to Terms of Use and may vary due to final negotiated transaction terms.