Prevu by reAlpha
BuySellBlogBrowse Listings

1721 Q Street SEWashington, DC 20020

For Sale

$287,000

Smart Buyer Rebate $2,175

Momentum is building east of the river, and opportunities like this are where smart investors get ahead of it.

This classic mid-century brick duplex presents a clear path to value creation in one of Washington’s most actively transforming corridors. Built in 1950 with solid masonry construction, the structure offers the kind of durable foundation developers look for when planning their next project. With RA-2 zoning and no historic restrictions, the property gives buyers flexibility to reimagine the existing footprint into modern residences designed for today’s rental or resale market.

What makes this opportunity especially compelling is the scale of investment reshaping the surrounding area. Just blocks away, the planned RFK redevelopment anchored by the future Washington Commanders stadium is expected to bring thousands of new residences, retail, hospitality, and jobs to the neighborhood. Nearby, the 11th Street Bridge Park and continued expansion of the Anacostia Waterfront Initiative continue to draw attention, infrastructure, and long-term growth to this section of the city.

For investors thinking strategically, this property offers multiple paths forward. Maintain it as a duplex and renovate for strong rental demand. Reconfigure the layout to maximize unit count within zoning. Hold as a land play as development momentum continues to accelerate. Few opportunities allow you to enter a growth story this early while maintaining control over execution strategy.

For those who understand timing, positioning, and the power of buying ahead of transformation, this is where the next chapter begins.

Nearby amenities:

Anacostia Metro Station – approx. 0.7 miles
11th Street Bridge Park site – approx. 1.1 miles
Nationals Park – approx. 2.7 miles
Navy Yard dining district – approx. 2.5 miles
The Wharf – approx. 3.5 miles
Downtown Washington, DC – approx. 3.8 miles

Listed by Marc Cashin

·

License #BR40000263

·

Corcoran McEnearney

·

2029003126

Last updated April 25, 2026

·

Source: BrightMLS #DCDC2249972

Listing Facts

  • TypeSingle-family
  • NeighborhoodFairlawn
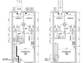
  • Bedrooms4
  • Bathrooms2
  • Days on Prevu51
  • Taxes$9,008/year
  • Size1,258 sqft
  • Price per sqft$228

Location

Mortgage Calculator

Listing History

04/09/2026
Price Decreased
$287,000
03/11/2026
Listed by Corcoran McEnearney
$298,000

Property Details for 1721 Q Street SE

Exterior

Construction

  • New Construction: No
  • Year Built: 1950
  • Architectural Style: Colonial, Traditional, Art Deco
  • Construction Materials: Brick

Features

  • Other Structures: Above Grade, Below Grade
  • Waterfront: No

Measurements

  • Lot Size Acres: 0.03
  • Lot Size Source: Assessor
  • Lot Size Square Feet: 1,513
  • Lot Size Units: Square Feet

Financial

Taxes

  • Tax Annual Amount: $9,008.00
  • Tax Year: 2025

Interior

Features

  • Fireplace: No

Measurements

  • Living Area: 1,258
  • Living Area Source: Assessor

Rooms

  • Has Basement: No
  • Bathrooms Full: 2
  • Bathrooms Total Integer: 2
  • Bedrooms Total: 4
  • Main Level Bedrooms: 4

Other

General

  • Senior Community: No

Location

  • Subdivision Name: ANACOSTIA
  • Tax Lot: 811

Parking

Parking

  • Garage: No

Utilities

Equipment

  • Heating: Hot Water
  • Has Heating: Yes
  • Sewer: Public Sewer
  • Water Source: Public

Frequently Asked Questions

How many bedrooms and bathrooms does this single-family home have?

There are 4 bedrooms and 2 bathrooms in this single-family home at 1721 Q Street SE.

What are the annual taxes for 1721 Q Street SE?

Annual taxes for this single-family home are estimated at $9,008.

How does 1721 Q Street SE compare to other single-family homes in Fairlawn?

This single-family home is listed 46% below the average price for single-family homes in Fairlawn and has been on the market for 24 less days than the typical home in this area.

What is the square footage on this single-family home?

According to the MLS, this listing is 1,258 sqft.

1721 Q Street SE is a 4-bedroom, 2-bath single-family home for sale in WASHINGTON DC 20020. Available on Prevu for 51 days at $287,000. This includes a recent price decrease of $11,000. This property features 1,258 square feet of living space, located in Fairlawn. The median listing price for single-family homes in this area is $494,950. Explore more single-family home listings in Washington.

The data relating to real estate for sale on this website appears in part through the BRIGHT Internet Data Exchange program, a voluntary cooperative exchange of property listing data between licensed real estate brokerage firms in which participates, and is provided by BRIGHT through a licensing agreement. The information provided by this website is for the personal, non-commercial use of consumers and may not be used for any purpose other than to identify prospective properties consumers may be interested in purchasing. Copyright BRIGHT, All Rights Reserved.

Full MLS Disclaimers

Rebate estimate is indicative only and based on listing price and estimated buyer's agent commission paid by owner, if applicable. Final rebates are subject to Terms of Use and may vary due to final negotiated transaction terms.