Prevu by reAlpha
BuySellBlogBrowse Listings

167 Lancaster RoadBerlin, MA 01503

For Sale

$480,000

Smart Buyer Rebate - Ask

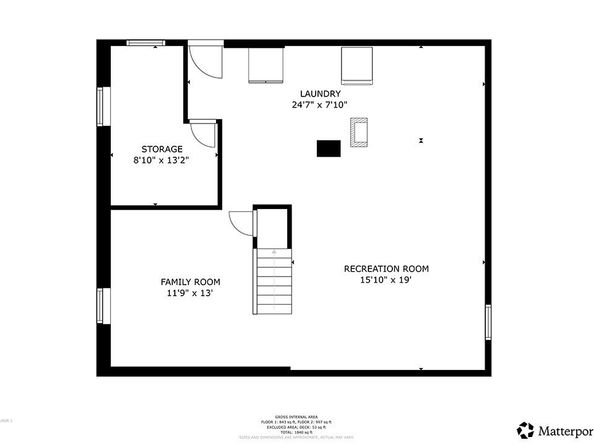
Charming ranch offers beautiful hardwood floors throughout, finished basement and a level yard. The large living room offers a large picture window over looking the front yard. The dining room is situated off the back of the kitchen with access to the large deck, perfect for entertaining. There are two good size bedrooms on the main level and an additional bedroom at the basement level. The basement offers an open concept large enough to accommodate a sitting area, pool table room and a separate bedroom. A large attic offers plenty of space for storage and maybe possible for future expansion. The mostly fenced in back yard is level and offers space to relax, garden and play. Two separate fenced in areas for family pets and a vegetable garden. The home offers a Deep well with a lifetime warranty. New 3 bedroom septic June 2025. Move in ready.

Listed by Maryanne Hardy

·

Foster-Healey Real Estate

·

978-413-7786

Last updated November 01, 2025

·

Source: MLSPin #73436830

Listing Facts

  • TypeSingle-family
  • NeighborhoodBerlin
  • Bedrooms2
  • Bathrooms1
  • Days on Prevu74
  • Taxes$4,261/year
  • Size1,912 sqft
  • Price per sqft$251

Amenities

  • Washer/Dryer
  • Parking

Location

Mortgage Calculator

Listing History

10/28/2025
Price Decreased
$480,000
09/29/2025
Listed by Foster-Healey Real Estate
$499,900

Property Details for 167 Lancaster Road

Exterior

Construction

  • Roof: Shingle
  • Window Features: Insulated Windows
  • Year Built: 1956
  • Year Built Details: Actual
  • Architectural Style: Ranch
  • Construction Materials: Frame

Features

  • Road Frontage Type: Public

Measurements

  • Building Area Total: 1,912
  • Building Area Units: Square Feet
  • Lot Features: Cleared, Level
  • Lot Size Acres: 0.28
  • Lot Size Area: 0
  • Lot Size Square Feet: 12,197
  • Lot Size Units: Acres

Financial

Taxes

  • Parcel Number: M:0230 B:0028 L:00000,1466478
  • Tax Annual Amount: $4,261.00
  • Tax Assessed Value: $300,300.00
  • Tax Year: 2025

Interior

Features

  • Appliances: Tankless Water Heater, Range, Refrigerator, Washer, Dryer, Washer/Dryer, Plumbed For Ice Maker
  • Flooring: Wood, Tile

Measurements

  • Living Area: 1,912
  • Living Area Source: Public Record

Rooms

  • Basement: Full, Finished, Bulkhead, Concrete
  • Bathrooms Full: 1
  • Bathrooms Total Integer: 1
  • Bedrooms Total: 2
  • Main Level Bedrooms: 2
  • Rooms Total: 5

Parking

Parking

  • Open Parking Spaces: 6
  • Open Parking: Yes
  • Parking Features: Paved Drive, Off Street
  • Parking Total: 6

Utilities

Equipment

  • Electric: Circuit Breakers
  • Heating: Baseboard, Oil
  • Has Heating: Yes
  • Laundry Features: Electric Dryer Hookup, Washer Hookup
  • Sewer: Private Sewer
  • Utilities: For Electric Range, For Electric Dryer, Washer Hookup, Icemaker Connection
  • Water Source: Private

Frequently Asked Questions

How many bedrooms and bathrooms does this single-family home have?

There are 2 bedrooms and 1 bathroom in this single-family home at 167 Lancaster Road.

Does this single-family home have parking?

Yes, there are 6 parking spaces available for 167 Lancaster Road.

What are the annual taxes for 167 Lancaster Road?

Annual taxes for this single-family home are estimated at $4,261.

How does 167 Lancaster Road compare to other single-family homes in Berlin?

This single-family home is listed 55% below the average price for single-family homes in Berlin and has been on the market for 17 less days than the typical home in this area.

What is the square footage on this single-family home?

According to the MLS, this listing is 1,912 sqft.

167 Lancaster Road is a 2-bedroom, 1-bath single-family home for sale in Berlin MA 01503. Listed on Prevu for 74 days at $480,000. This includes a recent price decrease of $19,900. This residence features 1,912 square feet of living space, located in Worcester County. The median listing price for single-family homes in this area is $1,124,000. Additional amenities include parking and washer/dryer. View other single-family home listings in Worcester County.

The property listing data and information, or the Images, set forth herein were provided to MLS Property Information Network, Inc. from third party sources, including sellers, lessors, landlords and public records, and were compiled by MLS Property Information Network, Inc. The property listing data and information, and the Images, are for the personal, non commercial use of consumers having a good faith interest in purchasing, leasing or renting listed properties of the type displayed to them and may not be used for any purpose other than to identify prospective properties which such consumers may have a good faith interest in purchasing, leasing or renting. MLS Property Information Network, Inc. and its subscribers disclaim any and all representations and warranties as to the accuracy of the property listing data and information, or as to the accuracy of any of the Images, set forth herein.

Full MLS Disclaimers

Rebate estimate is indicative only and based on listing price and estimated buyer's agent commission paid by owner, if applicable. Final rebates are subject to Terms of Use and may vary due to final negotiated transaction terms.