Prevu by reAlpha
BuySellBlogBrowse Listings

16010 E 11th AvenueAurora, CO 80011

For Sale

$465,000

Smart Buyer Rebate $1,625

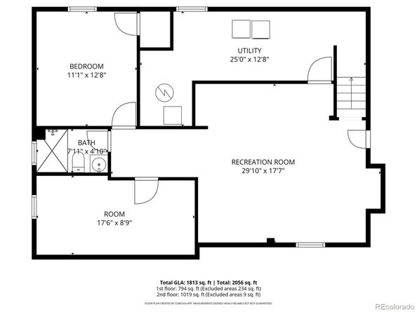
A seamless blend of comfort, space and thoughtful updates awaits in this beautifully enhanced Laredo Highline residence. Set on an expansive lot with a quiet, private backyard, this home has been meticulously improved with over $50k in upgrades — including a new AC and furnace, Class 4 roof, attic insulation, gutters, electrical panel and more. An inviting living room warmed by a brick fireplace flows into an open kitchen featuring stainless steel appliances, including a newer stainless steel kitchen appliances. The spacious layout offers five sizable bedrooms, including a tranquil primary suite with an en-suite bath, and versatile secondary bedrooms ideal for guests or a home office. The finished basement expands living space with a large rec room, dedicated laundry and ample storage. Outside, a fenced yard with a newly added patio and oversized storage shed provides the perfect backdrop for outdoor living. With modern systems and a serene setting, this home is a move-in-ready retreat with endless comfort. The property qualifies for a Community Reinvestment Act (CRA) lending program through preferred lender, under which qualified buyers may be eligible for a 5.625% interest rate with 3% down and reduced PMI, subject to lender approval and all program requirements. Please reach out for more details.

Listed by James McElvenny

·

License #55054013

·

Milehimodern

·

720-663-9871

Last updated November 28, 2025

·

Source: REcolorado #5524225

Listing Facts

  • TypeSingle-family
  • NeighborhoodLaredo Highline
  • Bedrooms5
  • Bathrooms3
  • Days on Prevu34
  • Taxes$2,808/year
  • Size1,938 sqft
  • Price per sqft$240

Amenities

  • Dishwasher
  • Private Outdoor Space
  • Air Conditioning
  • Parking

Location

Mortgage Calculator

Listing History

11/07/2025
Listed by Milehimodern
$465,000

Property Details for 16010 E 11th Avenue

Exterior

Construction

  • Roof: Composition
  • Structure Type: House
  • Window Features: Window Coverings
  • Year Built: 1975
  • Architectural Style: Traditional
  • Common Walls: No Common Walls
  • Construction Materials: Brick, Wood Siding
  • Exterior Features: Lighting, Private Yard, Rain Gutters

Features

  • Direction Faces: North
  • Fencing: Full
  • Patio And Porch Features: Patio
  • Road Frontage Type: Public
  • View: Mountain(s)

Measurements

  • Building Area Total: 2,092
  • Lot Features: Level
  • Lot Size Acres: 0.19
  • Lot Size Area: 8,276
  • Lot Size Square Feet: 8,276
  • Lot Size Units: Square Feet

Financial

Taxes

  • Parcel Number: 031320364
  • Tax Annual Amount: $2,808.00
  • Tax Year: 2024

Interior

Features

  • Appliances: Dishwasher, Disposal, Microwave, Range, Range Hood, Refrigerator
  • Fireplace Features: Living Room
  • Fireplaces Total: 1
  • Flooring: Carpet, Tile, Wood
  • Interior Features: Breakfast Bar, Ceiling Fan(s), Eat-in Kitchen, Open Floorplan, Pantry, Primary Suite, Smoke Free, Stone Counters

Measurements

  • Living Area: 1,938

Rooms

  • Basement: Finished, Full
  • Has Basement: Yes
  • Bathrooms Full: 1
  • Bathrooms Half: 1
  • Bathrooms Three Quarter: 1
  • Bathrooms Total Integer: 3
  • Bedrooms Total: 5
  • Main Level Bathrooms: 2
  • Main Level Bedrooms: 3

Other

Environmental

  • Green Energy Efficient: Insulation

General

  • Exclusions: Seller's personal property as determined by Seller at Seller's sole discretion.

Location

  • Subdivision Name: Laredo Highline

Parking

Parking

  • Attached Garage: Yes
  • Garage Spaces: 1
  • Parking Total: 3

Schools

Elementary School

  • Elementary School: Laredo
  • Elementary School District: Adams-Arapahoe 28J

High School

  • High School: Hinkley
  • High School District: Adams-Arapahoe 28J

Middle or Junior School

  • Middle Or Junior School: East
  • Middle Or Junior School District: Adams-Arapahoe 28J

Utilities

Equipment

  • Cooling: Central Air
  • Heating: Forced Air, Natural Gas
  • Laundry Features: Sink, In Unit
  • Sewer: Public Sewer
  • Utilities: Cable Available, Electricity Connected, Natural Gas Connected, Phone Available
  • Water Source: Public

Frequently Asked Questions

How many bedrooms and bathrooms does this single-family home have?

There are 5 bedrooms and 3 bathrooms in this single-family home at 16010 E 11th Avenue.

What schools are nearby to 16010 E 11th Avenue?

Nearby schools include the Laredo Elementary School, East Middle School, and Hinkley High School.

Does this single-family home have parking?

Yes, there is 1 parking space available for 16010 E 11th Avenue.

What are the annual taxes for 16010 E 11th Avenue?

Annual taxes for this single-family home are estimated at $2,808.

How does 16010 E 11th Avenue compare to other single-family homes in Laredo Highline?

This single-family home is listed 7% below the average price for single-family homes in Laredo Highline and has been on the market for 16 more days than the typical home in this area.

What is the square footage on this single-family home?

According to the MLS, this listing is 1,938 sqft.

16010 E 11th Avenue is a 5-bedroom, 3-bath single-family home for sale in Aurora CO 80011. Listed on Prevu for 34 days at $465,000. This property features 1,938 square feet of living space, located in Aurora. The median listing price for single-family homes in this area is $525,000. Nearby schools include Laredo Elementary School, East Middle School, and Hinkley High School. The home offers private outdoor space, dishwasher, air conditioning, and parking. View other single-family home listings in Aurora.

The content relating to real estate for sale in this Web site comes in part from the Internet Data eXchange ("IDX") program of METROLIST, INC., DBA RECOLORADO® Real estate listings held by brokers other than Prevu are marked with the IDX Logo. This information is being provided for the consumers' personal, non-commercial use and may not be used for any other purpose. All information subject to change and should be independently verified.

Full MLS Disclaimers

Rebate estimate is indicative only and based on listing price and estimated buyer's agent commission paid by owner, if applicable. Final rebates are subject to Terms of Use and may vary due to final negotiated transaction terms.