Prevu by reAlpha
BuySellBlogBrowse Listings

15413 W Dequesne AvenueMorrison, CO 80465

For Sale

$1,044,450

Smart Buyer Rebate $10,445

***Contact builder today about Special Financing for this home - terms and conditions apply**


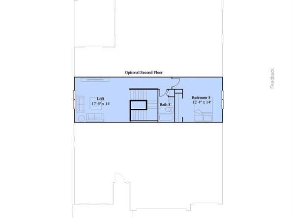
Available NOW! Beautiful Davis Ranch plan with an optional popped top features 3 beds, 3 baths, study, breakfast nook, great room, kitchen, loft, unfinished basement for future expansion and 3 car garage! The builder provides the latest in energy efficiency and state of the art technology with several fabulous floorplans to choose from. This home offers plenty of space for visitors and entertaining. Beautiful finishes and upgrades throughout including stainless steel appliances, luxury vinyl plank flooring and more. Energy efficiency, and technology/connectivity seamlessly blended with luxury to make your new house a home. Inspiration offers single family homes for every lifestyle. What some builders consider high end upgrades, this builder makes a standard inclusion. Welcome Home! Photos and walkthrough tour are a model only and subject to change.

Listed by Tom Ullrich

·

License #98663

·

RE/MAX Professionals

·

303-910-8436

Last updated January 30, 2026

·

Source: REcolorado #7186529

Listing Facts

  • TypeSingle-family
  • NeighborhoodWard 4 Coalition
  • Bedrooms3
  • Bathrooms3
  • Days on Prevu53
  • HOA/Maint. Fees$67/month
  • Taxes$13,843/year
  • Size2,802 sqft
  • Price per sqft$373

Amenities

  • Dishwasher
  • Private Outdoor Space
  • Pets Allowed
  • Air Conditioning
  • Parking

Location

Mortgage Calculator

Listing History

01/30/2026
Price Decreased
$1,044,450
12/09/2025
Listed by RE/MAX Professionals
$1,081,450

Property Details for 15413 W Dequesne Avenue

Association

Amenities

  • Association Amenities: Park, Trail(s)
  • Pets Allowed: Cats OK, Dogs OK, Yes

Fees

  • Association Fee: $67.00 Monthly
  • Association Fee Includes: Maintenance Grounds, Recycling, Trash

General

  • Association Name: Red Rocks Community Association

Exterior

Construction

  • Property Condition: New Construction, Under Construction
  • Roof: Composition
  • Structure Type: House
  • Window Features: Double Pane Windows
  • Year Built: 2025
  • Builder Name: Lennar
  • Common Walls: No Common Walls
  • Construction Materials: Frame, Stone
  • Exterior Features: Rain Gutters

Features

  • Patio And Porch Features: Covered, Deck, Front Porch
  • Road Frontage Type: Public

Measurements

  • Building Area Total: 4,851
  • Lot Size Acres: 0.16
  • Lot Size Area: 7,013
  • Lot Size Square Feet: 7,013
  • Lot Size Units: Square Feet

Financial

Taxes

  • Parcel Number: 515230
  • Tax Annual Amount: $13,843.00
  • Tax Year: 2024

Interior

Features

  • Appliances: Dishwasher, Disposal, Microwave, Oven, Refrigerator
  • Flooring: Carpet, Tile, Vinyl
  • Interior Features: Breakfast Bar, Entrance Foyer, Kitchen Island, Open Floorplan, Smoke Free, Walk-In Closet(s)

Measurements

  • Living Area: 2,802

Rooms

  • Basement: Full, Interior Entry, Unfinished
  • Has Basement: Yes
  • Bathrooms Full: 2
  • Bathrooms Three Quarter: 1
  • Bathrooms Total Integer: 3
  • Bedrooms Total: 3
  • Main Level Bathrooms: 2
  • Main Level Bedrooms: 2

Other

General

  • Exclusions: Seller's Personal Possessions and any staging items that may be in use

Location

  • Subdivision Name: Red Rocks Ranch

Parking

Parking

  • Attached Garage: Yes
  • Garage Spaces: 3
  • Parking Features: Concrete
  • Parking Total: 3

Schools

Elementary School

  • Elementary School: Hutchinson
  • Elementary School District: Jefferson County R-1

High School

  • High School: Green Mountain
  • High School District: Jefferson County R-1

Middle or Junior School

  • Middle Or Junior School: Dunstan
  • Middle Or Junior School District: Jefferson County R-1

Utilities

Equipment

  • Cooling: Central Air
  • Heating: Forced Air, Natural Gas
  • Laundry Features: In Unit
  • Sewer: Public Sewer
  • Utilities: Cable Available, Electricity Available, Electricity Connected, Natural Gas Available, Natural Gas Connected, Phone Connected
  • Water Source: Public

Frequently Asked Questions

How many bedrooms and bathrooms does this single-family home have?

There are 3 bedrooms and 3 bathrooms in this single-family home at 15413 W Dequesne Avenue.

What schools are nearby to 15413 W Dequesne Avenue?

Nearby schools include the Hutchinson Elementary School, Dunstan Middle School, and Green Mountain High School.

Does this single-family home have parking?

Yes, there are 3 parking spaces available for 15413 W Dequesne Avenue.

What are the annual taxes for 15413 W Dequesne Avenue?

Annual taxes for this single-family home are estimated at $13,843.

How does 15413 W Dequesne Avenue compare to other single-family homes in Ward 4 Coalition?

This single-family home is listed 32% above the average price for single-family homes in Ward 4 Coalition and has been on the market for 12 more days than the typical home in this area.

What building or home owners association is the single-family home part of?

This single-family home is part of the Red Rocks Community Association home owners association.

What is the square footage on this single-family home?

According to the MLS, this listing is 2,802 sqft.

15413 W Dequesne Avenue is a 3-bedroom, 3-bath single-family home for sale in Morrison CO 80465. On Prevu for 53 days at $1,044,450. This includes a recent price decrease of $37,000. This residence features 2,802 square feet of living space, located in Ward 4 Coalition. The median listing price for single-family homes in this area is $670,000. Nearby schools include Hutchinson Elementary School, Dunstan Middle School, and Green Mountain High School. The home offers private outdoor space, dishwasher, pets allowed, air conditioning, and parking. Browse more single-family home listings in Lakewood.

The content relating to real estate for sale in this Web site comes in part from the Internet Data eXchange ("IDX") program of METROLIST, INC., DBA RECOLORADO® Real estate listings held by brokers other than Prevu are marked with the IDX Logo. This information is being provided for the consumers' personal, non-commercial use and may not be used for any other purpose. All information subject to change and should be independently verified.

Full MLS Disclaimers

Rebate estimate is indicative only and based on listing price and estimated buyer's agent commission paid by owner, if applicable. Final rebates are subject to Terms of Use and may vary due to final negotiated transaction terms.