Prevu by reAlpha
BuySellBlogBrowse Listings

142 Cross StSomerville, MA 02145

For Sale

$899,900

Smart Buyer Rebate $4,500

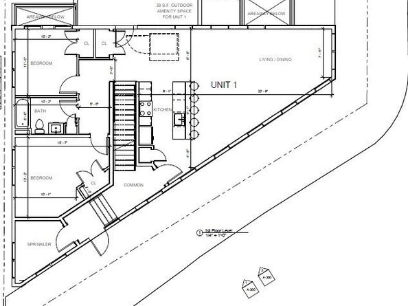
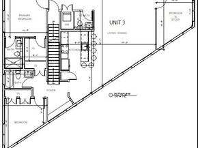
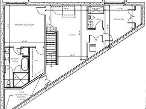
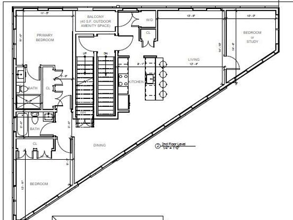
Excellent development opportunity in Somerville, just 0.3 miles from East Somerville Green Line Station, on the bike path and great proximity to East Cambridge and downtown Boston. Located on the edge of the rapidly growing Inner Belt neighborhood, this ZBA-approved 3-unit condo project is ideal for developers or end users looking to create a community and build equity. The first floor unit features 4 beds and 2 baths (2843 SF); the middle unit offers 3 beds and 2 baths (1383 SF); and the penthouse unit includes 3 beds, 2.5 baths, and a roof deck (1590 SF including roof deck. The project comes with all site and architectural plans which are approved by the ZBA and is awaiting traffic plan analysis for final special building permit approval. Seller open to offers subject to building permit approval. Full package available upon request.

Listed by Tricia Monasterio

·

Coldwell Banker Realty - Waltham

·

617-290-1252

Listed by Brian J. Fitzpatrick

·

Coldwell Banker Realty - Waltham

Last updated April 25, 2026

·

Source: MLSPin #73444203

Listing Facts

  • TypeMulti-family
  • NeighborhoodEast Somerville
  • Bedrooms10
  • Bathrooms7
  • Days on Prevu197
  • Taxes$12,574/year
  • Size5,735 sqft
  • Price per sqft$157

Amenities

  • Private Outdoor Space
  • Parking

Location

Mortgage Calculator

Listing History

04/09/2026
Price Decreased
$899,900
03/03/2026
Status changed to Active
$929,900
03/01/2026
Status changed to Expired
$929,900
01/17/2026
Status changed to Active
$929,900
01/16/2026
Status changed to Expired
$929,900
12/05/2025
Price Decreased
$929,900
10/15/2025
Listed by Coldwell Banker Realty - Waltham
$949,900

Property Details for 142 Cross St

Association

Amenities

  • Community Features: Public Transportation, Shopping, Medical Facility, Highway Access, House Of Worship, Private School, Public School, T-Station, University

Exterior

Construction

  • Number Of Units Total: 3
  • Roof: Rubber
  • Stories: 4
  • Stories Total: 4
  • Window Features: Insulated Windows
  • Year Built: 2025
  • Year Built Details: Approximate
  • Construction Materials: Frame
  • Exterior Features: Rain Gutters

Features

  • Patio And Porch Features: Deck - Roof
  • Road Frontage Type: Public

Measurements

  • Building Area Total: 5,735
  • Building Area Units: Square Feet
  • Lot Features: Corner Lot
  • Lot Size Acres: 0.06
  • Lot Size Area: 0
  • Lot Size Square Feet: 2,507
  • Lot Size Units: Acres

Financial

Taxes

  • Parcel Number: M:93 B:D L:1,760446
  • Tax Annual Amount: $12,574.00
  • Tax Assessed Value: $664,600.00
  • Tax Year: 2025

Interior

Features

  • Flooring: Tile, Hardwood

Measurements

  • Living Area: 5,735
  • Living Area Source: Measured

Rooms

  • Basement: Full, Partially Finished
  • Bathrooms Full: 6
  • Bathrooms Half: 1
  • Bathrooms Total Integer: 7
  • Bedrooms Total: 10
  • Rooms Total: 18

Other

Environmental

  • Green Energy Efficient: Thermostat

Utilities

Equipment

  • Sewer: Public Sewer
  • Water Source: Public

Frequently Asked Questions

How many bedrooms and bathrooms does this multi-family home have?

There are 10 bedrooms and 7 bathrooms in this multi-family home at 142 Cross St.

What are the annual taxes for 142 Cross St?

Annual taxes for this multi-family home are estimated at $12,574.

How does 142 Cross St compare to other multi-family homes in East Somerville?

This multi-family home is listed 71% below the average price for multi-family homes in East Somerville and has been on the market for 122 more days than the typical home in this area.

What is the square footage on this multi-family home?

According to the MLS, this listing is 5,735 sqft.

142 Cross St is a 10-bedroom, 7-bath multi-family home for sale in Somerville MA 02145. Listed on Prevu for 197 days at $899,900. This includes a recent price decrease of $30,000. This residence features 5,735 square feet of living space, located in East Somerville. The median listing price for multi-family homes in this area is $1,189,900. Additional amenities include private outdoor space and parking. Browse more multi-family home listings in Somerville.

The property listing data and information, or the Images, set forth herein were provided to MLS Property Information Network, Inc. from third party sources, including sellers, lessors, landlords and public records, and were compiled by MLS Property Information Network, Inc. The property listing data and information, and the Images, are for the personal, non commercial use of consumers having a good faith interest in purchasing, leasing or renting listed properties of the type displayed to them and may not be used for any purpose other than to identify prospective properties which such consumers may have a good faith interest in purchasing, leasing or renting. MLS Property Information Network, Inc. and its subscribers disclaim any and all representations and warranties as to the accuracy of the property listing data and information, or as to the accuracy of any of the Images, set forth herein.

Full MLS Disclaimers

Rebate estimate is indicative only and based on listing price and estimated buyer's agent commission paid by owner, if applicable. Final rebates are subject to Terms of Use and may vary due to final negotiated transaction terms.