BuySellBlogBrowse Listings

141 Hobart StBraintree, MA 02184

For Sale

$659,000

Smart Buyer Rebate - Ask

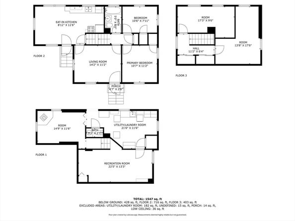
Back on Market due to buyer finance falling through is Your opportunity to own this lovingly maintained, freshly painted 4-bedroom, 1.5-bath home is located on a corner lot on an idyllic side street in a highly desired neighborhood. The first floor features a spacious, sunny, eat-in kitchen, bright living room and two first-floor bedrooms with refinished hardwood floors. Upstairs offers two spacious bedrooms with attic access for storage. The finished basement includes two bonus rooms ideal for home office, gym or playroom plus a laundry area and a walk-out to the patio. One car garage with a workshop area, two additional outdoor storage sheds, a good-sized backyard ready for your garden, and a patio with a pergola perfect for entertaining. Seller offering a $5,000 credit for the buyer to use towards updating and making the house their own! Just a few doors from Abraham Lincoln Park, 1/2 mile to Ross Elementary. Minutes to I-93, Rt 3, the MBTA, shops & restaurants—a commuter's dream!

Listed by Tiffanie Williams Needham

·

Escalate Real Estate

·

617-645-1885

Last updated October 20, 2025

·

Source: MLSPin #73386031

Listing Facts

  • TypeSingle-family
  • NeighborhoodEast Braintree
  • Bedrooms4
  • Bathrooms2
  • Days on Prevu140
  • Taxes$5,720/year
  • Size1,543 sqft
  • Price per sqft$427

Amenities

  • Dishwasher
  • Private Outdoor Space
  • Washer/Dryer
  • Parking

Location

Mortgage Calculator

Listing History

10/16/2025
Status changed to Active
$659,000
08/09/2025
Status changed to Pending
$659,000
07/29/2025
Status changed to In Contract
$659,000
07/23/2025
Price Decreased
$659,000
06/12/2025
Price Decreased
$675,000
06/05/2025
Listed by Escalate Real Estate
$689,000

Property Details for 141 Hobart St

Association

Amenities

  • Community Features: Public Transportation, Shopping, Park, Highway Access, Public School, T-Station

Exterior

Construction

  • Year Built: 1940
  • Year Built Details: Actual
  • Architectural Style: Cape
  • Exterior Features: Patio, Garden

Features

  • Patio And Porch Features: Patio
  • Road Frontage Type: Public

Measurements

  • Building Area Total: 1,543
  • Building Area Units: Square Feet
  • Lot Features: Corner Lot
  • Lot Size Acres: 0.16
  • Lot Size Area: 0
  • Lot Size Square Feet: 6,800
  • Lot Size Units: Acres

Financial

Taxes

  • Parcel Number: M:3054 B:0 L:97,23577
  • Tax Annual Amount: $5,720.00
  • Tax Assessed Value: $573,100.00
  • Tax Year: 2025

Interior

Features

  • Appliances: Range, Dishwasher, Washer, Dryer
  • Flooring: Carpet, Hardwood, Flooring - Wall To Wall Carpet

Measurements

  • Living Area: 1,543
  • Living Area Source: Public Record

Rooms

  • Basement: Full, Finished
  • Bathrooms Full: 1
  • Bathrooms Half: 1
  • Bathrooms Total Integer: 2
  • Bedrooms Total: 4
  • Rooms Total: 7

Other

Features

  • Accessibility Features: No

Parking

Parking

  • Covered Spaces: 1
  • Garage Spaces: 1
  • Garage: Yes
  • Open Parking: Yes
  • Parking Features: Garage Faces Side, Paved Drive, Paved
  • Parking Total: 2

Schools

Elementary School

  • Elementary School: Ross

High School

  • High School: Braintree High

Middle or Junior School

  • Middle Or Junior School: East

Utilities

Equipment

  • Heating: Steam, Oil
  • Has Heating: Yes
  • Sewer: Public Sewer
  • Water Source: Public

The property listing data and information, or the Images, set forth herein were provided to MLS Property Information Network, Inc. from third party sources, including sellers, lessors, landlords and public records, and were compiled by MLS Property Information Network, Inc. The property listing data and information, and the Images, are for the personal, non commercial use of consumers having a good faith interest in purchasing, leasing or renting listed properties of the type displayed to them and may not be used for any purpose other than to identify prospective properties which such consumers may have a good faith interest in purchasing, leasing or renting. MLS Property Information Network, Inc. and its subscribers disclaim any and all representations and warranties as to the accuracy of the property listing data and information, or as to the accuracy of any of the Images, set forth herein.

Full MLS Disclaimers

Rebate estimate is indicative only and based on listing price and estimated buyer's agent commission paid by owner, if applicable. Final rebates are subject to Terms of Use and may vary due to final negotiated transaction terms.