BuySellBlogBrowse Listings

13751 Penn StreetWhittier, CA 90602

For Sale

$975,000

Smart Buyer Rebate $9,750

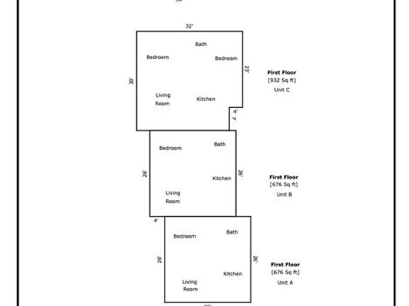
GREAT INVESTMENT OPPORTUNITY. Perfect for the savvy investor looking for some great passive income. The front unit is a 1 bed/1bath 676 sq.ft. living space which boasts updated features including a remodeled kitchen with granite counters, a dining area within the kitchen and updated bathroom. Original hardwood flooring brings out the rich tones of medium oak. A spacious front living room allows for great entertaining space accompanied by a accommodating bedroom. The middle unit is a 1 bed/1 bath 676 sq.ft. living space with many original features, including a spacious living room an accommodating bedroom. The back unit is a 2 bed/1 bath 932 sq.ft. living space, larger bedroom and a separate outdoor laundry room. The property has a 720 sq.ft. 3 car detached garage space, currently utilized as a carport in addition to uncovered parking available. New exterior painting makes for an enhanced curb appeal. Within walking distance to Whittier College, and close to local restaurants, shopping, schools, parks and Uptown Whittier. Call for a showing appointment today!

Listed by Tom Moore

·

License #01987433

·

Keller Williams Pacific Estates

·

562-713-4889

Last updated August 22, 2025

·

Source: bridgeMLS #CRDW25036718

Listing Facts

  • TypeMulti-family
  • NeighborhoodEast Penn
  • Bedrooms4
  • Days on Prevu244
  • Size2,284 sqft
  • Price per sqft$427

Location

Mortgage Calculator

Listing History

07/03/2025
Status changed to Active
$975,000
06/27/2025
Status changed to Removed from Feed
$975,000
06/18/2025
Status changed to Active
$975,000
06/06/2025
Status changed to Pending
$975,000
03/01/2025
Status changed to In Contract
$975,000
02/21/2025
Listed by Keller Williams Pacific Estates
$975,000

Property Details for 13751 Penn Street

Exterior

Construction

  • Number Of Units Total: 3
  • Year Built: 1949
  • Exterior Features: Other

Features

  • View: Other

Measurements

  • Building Area Total: 2,284
  • Lot Features: Other, Landscaped
  • Lot Size Acres: 0.15
  • Lot Size Area: 0
  • Lot Size Square Feet: 6,496
  • Lot Size Units: Acres

Financial

Taxes

  • Parcel Number: 8138010006

Interior

Features

  • Flooring: Tile, Vinyl, Wood

Measurements

  • Living Area: 2,284
  • Living Area Units: Square Feet

Rooms

  • Bedrooms Total: 4

Other

Features

  • Accessibility Features: Other

Parking

Parking

  • Parking Features: Covered, Other, Uncovered Parking Space, Street Parking

Utilities

Equipment

  • Cooling: Wall/Window Unit(s)
  • Heating: Wall Furnace
  • Has Heating: Yes
  • Laundry Features: Other

Based on information from bridgeMLS and/or other sources. All data, including all measurements and calculations of area, is obtained from various sources and has not been, and will not be, verified by Prevu or the MLS. Information is provided exclusively for consumer's personal, non-commercial use and may not be used for any purpose other than to identify prospective properties consumer may be interested in purchasing.

Full MLS Disclaimers

Rebate estimate is indicative only and based on listing price and estimated buyer's agent commission paid by owner, if applicable. Final rebates are subject to Terms of Use and may vary due to final negotiated transaction terms.