BuySellBlogBrowse Listings

133 2nd Avenue 9New York, NY 10003

For Sale

$1,800,000

Smart Buyer Rebate $22,500

Nestled in the heart of the East Village on the buildings top floor, this truly unique and stylish condo home is a rare find, bathed in natural light and designed for those who appreciate distinctive living.

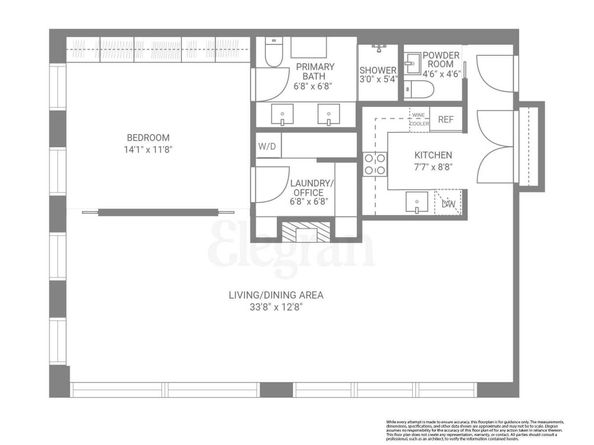
Located at 133 2nd Avenue, this exceptional residence features a sensational oversized skylight that floods the home with light, soaring ceilings that enhance the open and airy feel, and an extra-large living room, where an additional bedroom could easily be added. Two elegant pocket doors create a true loft-like atmosphere, while ample custom closets, an EcoSmart fireplace for cozy nights in, and a serene view overlooking the building’s garden complete the perfect setting.

The thoughtfully sectioned-off kitchen is equipped for gourmet cooking and features a convenient pass-through to the dining area, making entertaining effortless. Whether hosting an intimate dinner or a lively gathering, the dining space sets the stage beautifully. The expansive living area is a lounge lover’s dream, designed for ultimate relaxation.

The tranquil bedroom serves as a peaceful retreat, insulated from city noise for a restful escape. Additional perks include a sought-after home office, a practical powder room, and the convenience of an in-unit washer/dryer.

The Theatre Condominium is a rare find where no two homes are alike. This pet-friendly, elevator building offers a beautifully landscaped rooftop deck, perfect for unwinding in.

And the location? Pure prime East Village, steps from the city’s best restaurants, bars, cultural attractions, and effortless access to multiple transportation options.

This is more than just an apartment; it's a custom-designed home and lifestyle you are guaranteed to love.

Listed by Luke Whittle

·

Elegran LLC

·

(954) 608-3467

Last updated October 19, 2025

·

Source: REBNY #RLS20010513

Listing Facts

  • TypeCondo
  • NeighborhoodBowery
  • Bedrooms1
  • Bathrooms2.5
  • Days on Prevu218
  • HOA/Maint. Fees$988/month
  • Taxes$18,408/year
  • Size990 sqft
  • Price per sqft$1,818

Amenities

  • Washer/Dryer
  • Pets Allowed
  • Pied-A-Terre Allowed

Location

Mortgage Calculator

Listing History

09/13/2025
Price Decreased
$1,800,000
03/20/2025
Listed by Elegran LLC
$1,900,000

Estimated Closing Costs

Total
$66,785
Attorney Fees
$4,000
NYC Mansion Tax
$18,000
Title Insurance
$8,100
Bank Attorney
$1,500
Mortgage Recording Tax
$31,185
Other Closing Costs
$4,000

Estimated closing costs are based on the list price of $1,800,000 and a 10% downpayment. These estimates are for indicative purposes only. Actual closing costs may vary for each transaction. See the Closing Costs Calculator for calculations specific to your situation.

Property Details for 133 2nd Avenue 9

Association

Amenities

  • Pets Allowed: Building Yes, Yes

Fees

  • Association Fee: $988.00 Monthly

Financial

  • Flip Tax Remarks: ASK EXCL BROKER

Exterior

Construction

  • Number Of Units Total: 10
  • Year Built: 1936
  • Architectural Style: Prewar
  • Entry Level: 5

Features

  • Building Features: Elevator(s)
  • View: City

Measurements

  • Building Area Total: 990
  • Building Area Units: SquareFeet
  • Lot Size Area: 990
  • Lot Size Units: SquareFeet

Financial

Taxes

  • Parcel Number: 0464-1310
  • Tax Annual Amount: $18,408.00

Interior

Features

  • Appliances: Dryer, Washer
  • Interior Features: Dining Area

Measurements

  • Living Area: 990
  • Living Area Units: SquareFeet

Rooms

  • Bathrooms Full: 2
  • Bathrooms Half: 1
  • Bathrooms Total Integer: 3
  • Bedrooms Total: 1
  • Rooms Total: 3

Other

Location

  • City Region: Manhattan
  • Subdivision Name: E. Greenwich Village

Utilities

Equipment

  • Cooling: Wall Unit(s)
  • Has Cooling: Yes
  • Laundry Features: In Unit

Based on information from Real Estate Board of New York and/or other sources. This information is not verified for authenticity or accuracy and is not guaranteed and may not reflect all real estate activity in the market. ©2025 The Real Estate Board of New York, Inc., All rights reserved.

Full MLS Disclaimers

Rebate estimate is indicative only and based on listing price and estimated buyer's agent commission paid by owner, if applicable. Final rebates are subject to Terms of Use and may vary due to final negotiated transaction terms.