BuySellBlogBrowse Listings

132 Institute RdWorcester, MA 01602

For Sale

$425,000

Smart Buyer Rebate - Ask

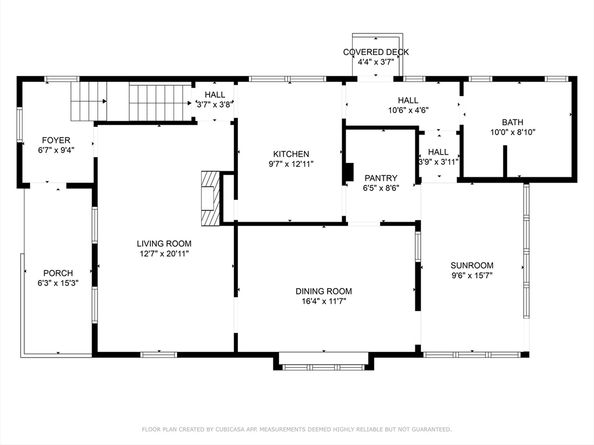
Back on Market! Classic home in sought-after WPI district! This solid 3-bedroom home is now vacant & cleaned so you can more easily its potential.Pperfect blend of character, space, and location—just waiting for a new owner with vision. Enter through the inviting front porch into a generously sized Living Rm leading to Dining RM. The kitchen features some newer cabinets, flooring, young appliances, plus original pantry for extra storage. 1st floor bath has been updated with walk-in shower & laundry - washer and dryer stay. Sunroom offers great potential to be a favorite spot in the home & opens to a private backyard. Updates inc. roof and oil tank (2024), water heater (approx. 2 yrs), replacement windows, and boiler (under 10 yrs). With some fresh paint and finishing touches, this home could truly shine. Close to Elm Park, Worcester Art Museum, restaurants, and more. Easy highway access in a vibrant, convenient location. Check out floor plans attached.

Listed by Susan Dicks

·

ERA Key Realty Services

·

508-509-5204

Listed by Brian Dicks

·

ERA Key Realty Services

Last updated October 10, 2025

·

Source: MLSPin #73391023

Listing Facts

  • TypeSingle-family
  • NeighborhoodSalisbury Street
  • Bedrooms3
  • Bathrooms2
  • Days on Prevu132
  • Taxes$4,838/year
  • Size1,702 sqft
  • Price per sqft$250

Amenities

  • Dishwasher
  • Private Outdoor Space
  • Washer/Dryer
  • Parking
  • Swimming Pool

Location

Mortgage Calculator

Listing History

10/06/2025
Status changed to Active
$425,000
09/17/2025
Status changed to Withdrawn
$425,000
08/01/2025
Status changed to Pending
$425,000
06/14/2025
Listed by ERA Key Realty Services
$425,000

Property Details for 132 Institute Rd

Association

Amenities

  • Community Features: Public Transportation, Shopping, Pool, Tennis Court(s), Park, Walk/Jog Trails, Medical Facility, Laundromat, Bike Path, Highway Access, House Of Worship, Private School, Public School, University, Sidewalks

Exterior

Construction

  • Roof: Shingle
  • Window Features: Window(s) - Bay/Bow/Box, Insulated Windows
  • Year Built: 1912
  • Year Built Details: Actual
  • Architectural Style: Cottage, Bungalow
  • Construction Materials: Frame
  • Exterior Features: Porch, Porch - Enclosed, Patio, Rain Gutters

Features

  • Patio And Porch Features: Porch, Porch - Enclosed, Patio
  • Road Frontage Type: Public

Measurements

  • Building Area Total: 1,702
  • Building Area Units: Square Feet
  • Frontage Length: 65
  • Lot Features: Easements, Gentle Sloping, Level
  • Lot Size Acres: 0.15
  • Lot Size Area: 0
  • Lot Size Square Feet: 6,500
  • Lot Size Units: Acres

Financial

Taxes

  • Parcel Number: 20_017_00024,1782112
  • Tax Annual Amount: $4,838.00
  • Tax Assessed Value: $366,800.00
  • Tax Year: 2025

Interior

Features

  • Appliances: Water Heater, Range, Dishwasher, Microwave, Refrigerator, Dryer
  • Fireplace: Yes
  • Fireplaces Total: 1
  • Flooring: Wood, Tile, Vinyl, Hardwood, Flooring - Stone/Ceramic Tile, Flooring - Hardwood
  • Interior Features: Bathroom - Full, Bathroom - With Shower Stall, Lighting - Overhead, Bathroom - With Tub, Closet - Linen, Ceiling Fan(s), Bathroom, Sun Room, Walk-up Attic

Measurements

  • Living Area: 1,702
  • Living Area Source: Public Record

Rooms

  • Basement: Full, Interior Entry, Concrete, Unfinished
  • Bathrooms Full: 2
  • Bathrooms Total Integer: 2
  • Bedrooms Total: 3
  • Rooms Total: 7

Other

Features

  • Accessibility Features: Accessible Entrance

Location

  • Tax Block: 17
  • Tax Lot: 24

Parking

Parking

  • Garage: Yes
  • Open Parking: Yes
  • Parking Features: Storage, Paved Drive, Shared Driveway, Off Street, Paved
  • Parking Total: 2

Schools

Elementary School

  • Elementary School: Flagg St

High School

  • High School: Doherty

Middle or Junior School

  • Middle Or Junior School: Forest Grove

Utilities

Equipment

  • Electric: Circuit Breakers
  • Heating: Steam, Oil
  • Has Heating: Yes
  • Laundry Features: Dryer Hookup - Electric, Washer Hookup, First Floor, Electric Dryer Hookup
  • Sewer: Public Sewer
  • Utilities: For Gas Range, For Electric Dryer, Washer Hookup
  • Water Source: Public

The property listing data and information, or the Images, set forth herein were provided to MLS Property Information Network, Inc. from third party sources, including sellers, lessors, landlords and public records, and were compiled by MLS Property Information Network, Inc. The property listing data and information, and the Images, are for the personal, non commercial use of consumers having a good faith interest in purchasing, leasing or renting listed properties of the type displayed to them and may not be used for any purpose other than to identify prospective properties which such consumers may have a good faith interest in purchasing, leasing or renting. MLS Property Information Network, Inc. and its subscribers disclaim any and all representations and warranties as to the accuracy of the property listing data and information, or as to the accuracy of any of the Images, set forth herein.

Full MLS Disclaimers

Rebate estimate is indicative only and based on listing price and estimated buyer's agent commission paid by owner, if applicable. Final rebates are subject to Terms of Use and may vary due to final negotiated transaction terms.