Prevu by reAlpha
BuySellBlogBrowse Listings

13085 5thChino, CA 91710

For Sale

$750,000

Smart Buyer Rebate $6,250

Charming starter home located in the heart of Chino!
This desirable corner-lot property features 6 bedrooms, 4 full bathrooms, and RV parking. Currently fully rented and generating $4,600 per month, each room is equipped with its own air-conditioning unit, offering comfort and convenience for tenants.
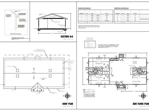
The backyard offers incredible potential — whether you want to build a swimming pool, an ADU, or even both! The 1,092 sq ft ADU plans have already been approved by the city. All design fees and city fees have been paid, leaving only the final city procedures to complete. The property is sold" as-is". This is a fantastic investment opportunity! Don't miss it! It's located just minutes from the 60 Freeway and only 10 minutes from The Shoppes at Chino Hills.

Listed by Kuei Ju Hsieh

·

License #02116708

·

Wetrust Realty

·

626-588-8688

Last updated December 13, 2025

·

Source: CRMLS #AR25274804

Listing Facts

  • TypeSingle-family
  • NeighborhoodChino
  • Bedrooms6
  • Bathrooms4
  • Days on Prevu4
  • Size1,368 sqft
  • Price per sqft$548

Amenities

  • Parking

Location

Mortgage Calculator

Listing History

12/11/2025
Listed by Wetrust Realty
$750,000

Property Details for 13085 5th

Association

Amenities

  • Community Features: Sidewalks

Exterior

Construction

  • Number Of Units Total: 1
  • Stories: 1
  • Stories Total: 1
  • Structure Type: House
  • Year Built: 1905
  • Common Walls: No Common Walls
  • Entry Level: 1
  • Entry Location: front

Measurements

  • Lot Features: Corner Lot
  • Lot Size Acres: 0.15
  • Lot Size Area: 6,800
  • Lot Size Source: Public Records
  • Lot Size Square Feet: 6,800
  • Lot Size Units: Square Feet

Financial

Taxes

  • Parcel Number: 1020032120000

Interior

Features

  • Appliances: Gas Cooktop, Gas Range
  • Interior Features: All Bedrooms Down

Measurements

  • Living Area: 1,368
  • Living Area Source: Public Records
  • Living Area Units: Square Feet

Rooms

  • Bathrooms Full: 4
  • Bathrooms Total Integer: 4
  • Bedrooms Total: 6
  • Main Level Bathrooms: 4
  • Main Level Bedrooms: 6

Other

Location

  • Tax Lot: 6800

Schools

High School

  • High School District: Chino Valley Unified

Utilities

Equipment

  • Cooling: Electric
  • Has Cooling: Yes
  • Laundry Features: In Kitchen
  • Sewer: Public Sewer
  • Water Source: Public

Frequently Asked Questions

How many bedrooms and bathrooms does this single-family home have?

There are 6 bedrooms and 4 bathrooms in this single-family home at 13085 5th.

How does 13085 5th compare to other single-family homes in Chino?

This single-family home is listed 12% below the average price for single-family homes in Chino and has been on the market for 70 less days than the typical home in this area.

What is the square footage on this single-family home?

According to the MLS, this listing is 1,368 sqft.

13085 5th is a 6-bedroom, 4-bath single-family home for sale in Chino CA 91710. Listed on Prevu for 4 days at $750,000. This property features 1,368 square feet of living space, located in Chino. The median listing price for single-family homes in this area is $732,995. Additional amenities include parking. View other single-family home listings in California.

Based on information from California Regional Multiple Listing Service, Inc. and/or other sources. All data, including all measurements and calculations of area, is obtained from various sources and has not been, and will not be, verified by Prevu or the MLS. Information is provided exclusively for consumer's personal, non-commercial use and may not be used for any purpose other than to identify prospective properties consumer may be interested in purchasing.

Full MLS Disclaimers

Rebate estimate is indicative only and based on listing price and estimated buyer's agent commission paid by owner, if applicable. Final rebates are subject to Terms of Use and may vary due to final negotiated transaction terms.