BuySellBlogBrowse Listings

112 S Cannery Row CircleDelray Beach, FL 33444

For Sale

$1,950,000

Smart Buyer Rebate $19,500

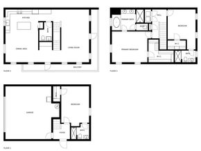
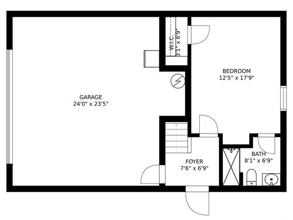
This beautiful spacious downtown delray townhouse boasts 3219 total square ft corner unit has plenty of windows which make it very light bright remodeled 2018 the gourmet kitchen with a butler s pantry has top of the line appliances including a sub zero refrigerator viking hood jenn aire stove with a pasta pot filler there is a large island counter that is perfect for entertaining generous sized dining room has a lighted built in bar area with a wine chiller 3 bedrooms each having ensuite bathrooms large walk in closets wood floors thruout impact windows extra wide 2 car garage where water softener charcoal water filter water pump system are located enjoy the outdoor space on your large wrap around balcony located just 3 blocks to the vibrant dining shopping area

Listed by Karen Eason

·

License #621637

·

CENTURY 21 Tenace Realty

·

(561) 251-7683

Last updated September 24, 2025

·

Source: BeachesMLS #RX-11126605

Listing Facts

  • TypeSingle-family
  • NeighborhoodPineapple Grove
  • Bedrooms3
  • Bathrooms4
  • Days on Prevu30
  • HOA/Maint. Fees$911/month
  • Taxes$13,516/year
  • Size2,401 sqft
  • Price per sqft$812

Amenities

  • Dishwasher
  • Private Outdoor Space
  • Washer/Dryer
  • Pets Allowed
  • Parking
  • Swimming Pool

Location

Mortgage Calculator

Listing History

09/24/2025
Listed by CENTURY 21 Tenace Realty
$1,950,000

Property Details for 112 S Cannery Row Circle

Association

Amenities

  • Association Amenities: Clubhouse, Pool
  • Community Features: Clubhouse, Non Gated, Pool, Street Lights, Sidewalks
  • Pets Allowed: Yes

Fees

  • Association Fee: $911.00 Monthly
  • Association Fee Includes: Common Areas, Insurance, Maintenance Structure, Reserve Fund, Roof

General

  • Number Of Units In Community: 82

Exterior

Construction

  • Property Condition: Resale
  • Roof: Concrete, Tar Gravel
  • Stories Total: 3
  • Window Features: Impact Glass
  • Year Built: 2016
  • Year Built Details: Resale
  • Construction Materials: Block
  • Entry Level: 1
  • Exterior Features: Balcony

Features

  • Patio And Porch Features: Balcony, Open, Wrap Around
  • Pool Features: None, Association, Community
  • View: Garden, Water

Measurements

  • Building Area Total: 3,219
  • Lot Features: Corner Lot, Less Than Quarter Acre
  • Lot Size Area: 1,712
  • Lot Size Dimensions: 14
  • Lot Size Square Feet: 1,712
  • Lot Size Units: SquareFeet

Financial

Taxes

  • Parcel Number: 12434616k90000160
  • Tax Annual Amount: $13,516.00
  • Tax Year: 2024

Interior

Features

  • Appliances: Dryer, Dishwasher, Electric Range, Electric Water Heater, Disposal, Microwave, Refrigerator, Water Softener Owned, Washer Dryer, Washer
  • Flooring: Hardwood, Tile, Wood
  • Interior Features: Breakfast Bar, Dual Sinks, Garden Tub Roman Tub, Kitchen Dining Combo, Split Bedrooms, Separate Shower, Vaulted Ceilings, Bar, Walk In Closets

Measurements

  • Living Area: 2,401

Rooms

  • Bathrooms Full: 3
  • Bathrooms Half: 1
  • Bathrooms Total Integer: 4
  • Bedrooms Total: 3

Other

Location

  • Subdivision Name: CANNERY ROW

Parking

Parking

  • Attached Garage: Yes
  • Covered Spaces: 2
  • Garage Spaces: 2
  • Garage: Yes
  • Parking Features: Attached, Garage, Garage Door Opener

Utilities

Equipment

  • Cooling: Central Air, Electric
  • Has Cooling: Yes
  • Heating: Central, Electric
  • Has Heating: Yes
  • Sewer: PublicSewer
  • Utilities: Cable Available, Electricity Available, Sewer Available, Water Available
  • Water Source: Public

Based on information from Beaches MLS and/or other sources. All data, including all measurements and calculations of area, is obtained from various sources and has not been, and will not be, verified by Prevu or the MLS. Information is provided exclusively for consumer's personal, non-commercial use and may not be used for any purpose other than to identify prospective properties consumer may be interested in purchasing.

Full MLS Disclaimers

Rebate estimate is indicative only and based on listing price and estimated buyer's agent commission paid by owner, if applicable. Final rebates are subject to Terms of Use and may vary due to final negotiated transaction terms.