BuySellBlogBrowse Listings

111 West 57th Street 36New York, NY 10019

For Sale

$18,250,000

Smart Buyer Rebate $228,125

IMMEDIATE OCCUPANCY - Last Remaining Full Floor

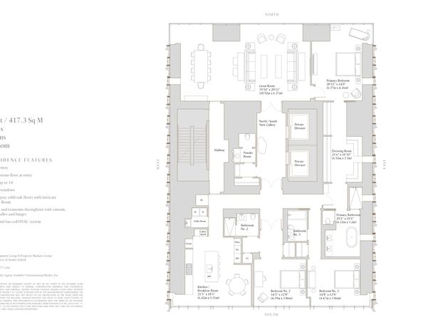
Designed by the renowned Studio Sofield, recognized for their impeccable craftsmanship, this 4,492 sqft residence offers a direct elevator Entry Gallery which leads into a sprawling full-floor, 3 Bedroom, 3.5 Bathroom Tower Residence.

The formal Entry Gallery is finished with white macauba stone floors and offers a dramatic North to South view which opens into the sumptuous Great Room. This incredible space is highlighted by 14-foot ceilings and floor-to-ceiling windows which showcase unrivaled, perfectly centered views over Central Park.

The luxuriously appointed Primary Bedroom Suite features northern, perfectly centered, Central Park views, a windowed pass through Dressing Room leading into a windowed Bathroom clad in hand selected veined white onyx. The custom freestanding polished nickel bathtub is by William Holland and beautiful, custom-designed fixtures are hand-cast by P.E. Guerin, the only foundry still operating in New York City.

The Secondary Bedrooms, each with striking southern skyline views, are generously proportioned with en-suite bathrooms finished in a distinctive crystallo gold quartzite and custom Studio Sofield designed fixtures.

The corner, south-facing Kitchen offers a generous breakfast area, custom cabinetry designed by Studio Sofield, crystallo white quartzite countertops and backsplash, and a full suite of Gaggenau appliances, including gas cooktop with fully vented hood, steam oven and wine fridge.

A powder room with a jewel onyx stone vanity, floors and wainscoting completes this grand residence.

111 West 57 an elegant tower of glass, terracotta and bronze, rising to 1,428’ and perfectly centered, overlooking Central Park. It is the premier Condominium along West 57th Street, offering extraordinary views, boutique sophistication, and an unparalleled level of privacy and highly-personalized services. Residents at 111 West 57 will enjoy exclusive concierge service and a rare, private porte cochère entrance on 58th Street for the utmost in security and privacy.

Club 111 and Sports Club include:
-Complementary daily breakfast for all residents catered by Le Bilboquet
-Wellness and Lifestyle Concierge Services
-82’ two-lane Swimming Pool with Private Cabanas
-Separate Sauna and Treatment Rooms
-Double-height Fitness Center with mezzanine Terrace
-Private Club space with Dining/Meeting rooms, Bar/Coffee service, Living Areas, Library and an expansive double-level Terrace.
-Chef’s catering Kitchen
-Manhattan’s first private Padel court
-Golf Simulator
-Children’s Playroom

*Please note the padel court, golf-simulator, and children’s playroom are part of Non-Residential 2 Unit and are owned and controlled by the Non-Residential 2 Unit Owner. Additional fees may apply.

Listed by Nikki Field

·

Sothebys International Realty

·

(212) 606-7669

Listed by Benjamin Pofcher

·

Sothebys International Realty

Last updated October 09, 2025

·

Source: REBNY #RLS20049371

Listing Facts

  • TypeCondo
  • NeighborhoodTheater District
  • Bedrooms3
  • Bathrooms3.5
  • Days on Prevu36
  • HOA/Maint. Fees$10,902/month
  • Taxes$157,260/year
  • Size4,492 sqft
  • Price per sqft$4,063

Amenities

  • Dishwasher
  • Washer/Dryer
  • Pets Allowed
  • Concierge

Location

Mortgage Calculator

Listing History

09/17/2025
Listed by Sothebys International Realty
$18,250,000

Estimated Closing Costs

Total
$1,394,112
Attorney Fees
$4,000
NYC Mansion Tax
$638,750
Title Insurance
$82,125
Bank Attorney
$1,500
Mortgage Recording Tax
$281,050
Other Closing Costs
$4,000
NY State Transfer Tax
$118,625
NYC Transfer Tax
$260,062
Seller's Attorney Fee
$4,000

Estimated closing costs are based on the list price of $18,250,000 and a 20% downpayment. These estimates are for indicative purposes only. Actual closing costs may vary for each transaction. See the Closing Costs Calculator for calculations specific to your situation.

Property Details for 111 West 57th Street 36

Association

Amenities

  • Pets Allowed: Building Yes, Yes
  • Concierge: Lobby Attendant Yes, Concierge Yes, Concierge Full Time, Elevator Attendance Yes, Doorman Yes, Doorman Full Time

Fees

  • Association Fee: $10,902.00 Monthly

Financial

  • Flip Tax Remarks: Paid By Buyer
  • Sponsor Unit: Yes

Exterior

Construction

  • New Construction: Yes
  • Number Of Units Total: 60
  • Stories Total: 82
  • Structure Type: High Rise
  • Year Built: 2022
  • Entry Level: 30

Features

  • Building Features: Elevator(s)
  • Pool Features: Cabana, Heated, Indoor, In Ground, Lap, Pool/Spa Combo
  • View: City

Measurements

  • Building Area Total: 303,224
  • Building Area Units: SquareFeet
  • Lot Size Area: 20,621
  • Lot Size Dimensions: 106
  • Lot Size Units: SquareFeet

Financial

Taxes

  • Parcel Number: 1010-1828
  • Tax Annual Amount: $157,260.00

Interior

Features

  • Appliances: Bar Fridge, Dryer, Dishwasher, Washer
  • Flooring: Hardwood
  • Spa: Yes

Measurements

  • Living Area: 4,492
  • Living Area Units: SquareFeet

Rooms

  • Bathrooms Full: 3
  • Bathrooms Half: 1
  • Bathrooms Total Integer: 4
  • Bedrooms Total: 3
  • Rooms Total: 6

Other

Location

  • City Region: Manhattan
  • Subdivision Name: Midtown Central
  • Tax Block: 01010
  • Tax Lot: 7507

Parking

Parking

  • Carport: Yes

Utilities

Equipment

  • Laundry Features: In Unit

Based on information from Real Estate Board of New York and/or other sources. This information is not verified for authenticity or accuracy and is not guaranteed and may not reflect all real estate activity in the market. ©2025 The Real Estate Board of New York, Inc., All rights reserved.

Full MLS Disclaimers

Rebate estimate is indicative only and based on listing price and estimated buyer's agent commission paid by owner, if applicable. Final rebates are subject to Terms of Use and may vary due to final negotiated transaction terms.