Prevu by reAlpha
BuySellBlogBrowse Listings

10378 157th Place NE 101Redmond, WA 98052

For Sale

$975,000

Smart Buyer Rebate $9,750

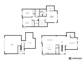
Exceptional end-unit townhome located in the highly desirable south Education Hill neighborhood of Redmond. Offering approximately 1,900 sq ft, this light-filled home features 3 bedrooms, 2.5 baths, and the Rec. Room down stair can be used as a versatile media room, office or guest room. providing both comfort and flexibility. Soaring ceilings, expansive windows, and an open-concept layout create a bright and inviting living space. Recent updates include brand-new carpet, fresh interior paint, and elegant 3cm kitchen new countertops, making this home truly move-in ready. The kitchen flows seamlessly into the dining and living areas, ideal for everyday living and entertaining. Upstairs, the spacious primary suite offers an en-suite bath and walk-in closet, accompanied by two additional bedrooms and a conveniently located laundry room on the same level. Additional highlights include low HOA dues, no rental cap, a two-car garage with extra parking space on the street, and a prime location close to Downtown Redmond, top-rated schools, and major employers.

Listed by Mi Shun Shin

·

Coldwell Banker Bain

Last updated March 13, 2026

·

Source: NWMLS #2479352

Listing Facts

  • TypeCondo
  • NeighborhoodEducation Hill
  • Bedrooms3
  • Bathrooms3
  • Days on Prevu31
  • HOA/Maint. Fees$510/month
  • Taxes$7,645/year

Amenities

  • Dishwasher
  • Washer/Dryer
  • Pets Allowed
  • Parking

Location

Mortgage Calculator

Listing History

03/11/2026
Price Decreased
$975,000
02/12/2026
Listed by Coldwell Banker Bain
$1,025,000

Property Details for 10378 157th Place NE 101

Association

Amenities

  • Community Features: Trail(s)
  • Pets Allowed: See Remarks, Subject to Restrictions

Fees

  • Association Fee: $510.00 Monthly
  • Association Fee Includes: Common Area Maintenance, Earthquake Insurance, Sewer, Water

General

  • Number Of Units In Community: 84

Exterior

Construction

  • Number Of Units Total: 84
  • Roof: Composition
  • Stories Total: 3
  • Structure Type: Townhouse
  • Year Built: 2013
  • Building Name: Villas At Mondavio
  • Construction Materials: Wood, Wood Products
  • Entry Location: Main
  • Exterior Features: Wood, Wood Products

Features

  • View: Territorial

Measurements

  • Building Area Total: 1,900
  • Building Area Units: Square Feet
  • Lot Features: Curbs, Paved, Sidewalk

Financial

Taxes

  • Parcel Number: 8946270150
  • Tax Annual Amount: $7,645.00
  • Tax Year: 2025

Interior

Features

  • Appliances: Dishwasher, Disposal, Dryer, Microwave, Refrigerator, Stove(s)/Range(s), Washer
  • Fireplace Features: Electric
  • Fireplace: Yes
  • Fireplaces Total: 1
  • Flooring: Ceramic Tile, Engineered Hardwood, Carpet
  • Interior Features: Cooking-Electric, Dryer-Electric, Fireplace, Insulated Windows, Primary Bathroom, Washer

Rooms

  • Bathrooms Full: 1
  • Bathrooms Half: 1
  • Bathrooms Three Quarter: 1
  • Bathrooms Total Integer: 3
  • Bedrooms Total: 3
  • Main Level Bathrooms: 1

Other

Environmental

  • Green Energy Efficient: Insulated Windows

Location

  • Subdivision Name: Education Hill

Parking

Parking

  • Covered Spaces: 2
  • Garage: Yes
  • Parking Features: Individual Garage
  • Parking Total: 2

Schools

Elementary School

  • Elementary School: Clara Barton Elem

High School

  • High School: Redmond High
  • High School District: Lake Washington

Middle or Junior School

  • Middle Or Junior School: Redmond Middle

Utilities

Equipment

  • Has Heating: Yes
  • Laundry Features: Electric Dryer Hookup, Washer Hookup

Frequently Asked Questions

How many bedrooms and bathrooms does this condo have?

There are 3 bedrooms and 3 bathrooms in this condo at 10378 157th Place NE 101.

What schools are nearby to 10378 157th Place NE 101?

Nearby schools include the Clara Barton Elem Elementary School, Redmond Middle, and Redmond High.

Does this condo have parking?

Yes, there are 2 parking spaces available for 10378 157th Place NE 101.

Are pets allowed at 10378 157th Place NE?

Yes, 10378 157th Place NE allows pets. Check the Property Details for any relevant restrictions.

What are the annual taxes for 10378 157th Place NE 101?

Annual taxes for this condo are estimated at $7,645.

How does 10378 157th Place NE 101 compare to other condos in Education Hill?

This condo is listed 68% above the average price for condos in Education Hill and has been on the market for 22 more days than the typical home in this area.

What building or home owners association is the condo part of?

This condo is in the Villas at Mondavio building.

10378 157th Place NE 101 is a 3-bedroom, 3-bath condo for sale in Redmond WA 98052. Available on Prevu for 31 days at $975,000. This includes a recent price decrease of $50,000. This home is located in Education Hill. The median listing price for condos in this area is $1,159,975. Nearby schools include Clara Barton Elem Elementary School, Redmond Middle, and Redmond High. Additional amenities include dishwasher, pets allowed, parking, and washer/dryer. View other condo listings in Redmond.

Based on information from NWMLS and/or other sources. All data, including all measurements and calculations of area, is obtained from various sources and has not been, and will not be, verified by Prevu or the MLS. Information is provided exclusively for consumer's personal, non-commercial use and may not be used for any purpose other than to identify prospective properties consumer may be interested in purchasing.

Full MLS Disclaimers

Rebate estimate is indicative only and based on listing price and estimated buyer's agent commission paid by owner, if applicable. Final rebates are subject to Terms of Use and may vary due to final negotiated transaction terms.