Prevu by reAlpha
BuySellBlogBrowse Listings

1020 15th Street 214Denver, CO 80202

For Sale

$524,500

Smart Buyer Rebate $3,113

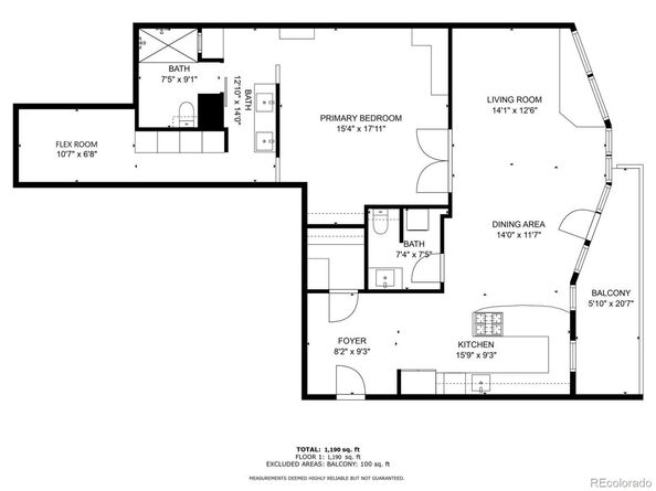
Discover 1020 15th St. #214—a stunning 1 bed, 2 bath condo with a versatile flex space, nestled in the vibrant heart of Denver. Converted into a condo in 1995, accessed by a separate 2nd floor elevator, this modern gem spans 1,190 square feet, blending sophistication with comfort.
Rich wood floors and soaring ceilings enhance the expansive living area, which is bathed in natural light—ideal for both relaxation and entertaining. The sleek, renovated kitchen features contemporary appliances and generous counter space, with a convenient half-bath and in-unit washer and dryer included.
Step through French doors into the serene primary bedroom, designed for restful nights. The elegantly renovated primary bathroom showcases timeless finishes and improved functionality. Enjoy fresh air and city views from your private 100sf patio—perfect for morning coffee or evening relaxation.
The versatile flex room comes with updated electrical and a ceiling fan, making it suitable for various uses. A 135sf personal storage unit on the same floor offers additional convenience. Building amenities, including a fitness center and outdoor pool, enhance your luxurious lifestyle.
Enjoy the convenience of a private entrance with exclusive elevator access to the 2nd floor, and benefit from a reserved/deeded parking spot (#207) in the secure parking garage, conveniently located near the elevator.
Located just steps from downtown Denver’s convention center, Buell Theater, Union Station, and Larimer Square, this residence offers unparalleled access to key attractions. Don’t miss the opportunity to call this coveted address your home—schedule a showing today and experience city living at its finest!

Listed by Aaron Taylor

·

License #55044461

·

RiNo Development

·

303-775-9333

Last updated November 06, 2025

·

Source: REcolorado #2382636

Listing Facts

  • TypeCondo
  • NeighborhoodDenver Central Business District
  • Bedrooms1
  • Bathrooms2
  • Days on Prevu92
  • HOA/Maint. Fees$774/month
  • Taxes$2,370/year
  • Size1,190 sqft
  • Price per sqft$441

Amenities

  • Dishwasher
  • Washer/Dryer
  • Pets Allowed
  • Air Conditioning
  • Concierge
  • Elevator
  • Parking
  • Storage
  • Swimming Pool
  • Fitness Center

Location

Mortgage Calculator

Listing History

11/07/2025
Price Decreased
$524,500
09/09/2025
Listed by RiNo Development
$534,500

Property Details for 1020 15th Street 214

Association

Amenities

  • Association Amenities: Coin Laundry, Concierge, Elevator(s), Fitness Center, Front Desk, Garden Area, On Site Management, Parking, Pool, Security, Storage
  • Pets Allowed: Cats OK, Dogs OK, Size Limit, Yes

Fees

  • Association Fee: $774.00 Monthly
  • Association Fee Includes: Reserves, Heat, Maintenance Grounds, Maintenance Structure, Security, Sewer, Snow Removal, Trash, Water

General

  • Association Name: Brooks Tower HOA

Exterior

Construction

  • Property Attached: Yes
  • Property Condition: Updated/Remodeled
  • Structure Type: High Rise (8+)
  • Year Built: 1967
  • Architectural Style: Loft
  • Building Name: Brooks Tower
  • Common Walls: 2+ Common Walls
  • Construction Materials: Brick, Concrete
  • Entry Level: 1
  • Entry Location: Corridor Access
  • Exterior Features: Balcony, Elevator

Features

  • Direction Faces: West
  • View: City

Measurements

  • Building Area Total: 1,190

Financial

Taxes

  • Parcel Number: 2345-38-898
  • Tax Annual Amount: $2,370.00
  • Tax Year: 2023

Interior

Features

  • Appliances: Convection Oven, Dishwasher, Disposal, Dryer, Freezer, Microwave, Oven, Range, Range Hood, Refrigerator, Washer
  • Flooring: Tile, Wood
  • Interior Features: Built-in Features, Ceiling Fan(s), Eat-in Kitchen, Elevator, Entrance Foyer, Granite Counters, High Ceilings, High Speed Internet, No Stairs, Open Floorplan, Primary Suite, Smoke Free, Vaulted Ceiling(s), Walk-In Closet(s)

Measurements

  • Living Area: 1,190

Rooms

  • Bathrooms Half: 1
  • Bathrooms Three Quarter: 1
  • Bathrooms Total Integer: 2
  • Bedrooms Total: 1
  • Main Level Bathrooms: 2
  • Main Level Bedrooms: 1

Other

General

  • Exclusions: Personal property

Location

  • Subdivision Name: Brooks Tower

Parking

Parking

  • Garage Spaces: 1
  • Parking Total: 1

Schools

Elementary School

  • Elementary School: Greenlee
  • Elementary School District: Denver 1

High School

  • High School: West
  • High School District: Denver 1

Middle or Junior School

  • Middle Or Junior School: Compass Academy
  • Middle Or Junior School District: Denver 1

Utilities

Equipment

  • Cooling: Central Air
  • Heating: Forced Air
  • Laundry Features: In Unit
  • Sewer: Community Sewer
  • Utilities: Cable Available, Electricity Available, Electricity Connected, Internet Access (Wired), Natural Gas Available, Natural Gas Connected, Phone Available
  • Water Source: Public

Frequently Asked Questions

How many bedrooms and bathrooms does this condo have?

There is 1 bedroom and 2 bathrooms in this condo at 1020 15th Street 214.

What schools are nearby to 1020 15th Street 214?

Nearby schools include the Greenlee Elementary School, Compass Academy Middle School, and West High School.

Does this condo have parking?

Yes, there is 1 parking space available for 1020 15th Street 214.

Are pets allowed at 1020 15th Street?

Yes, 1020 15th Street allows pets. Check the Property Details for any relevant restrictions.

What are the annual taxes for 1020 15th Street 214?

Annual taxes for this condo are estimated at $2,370.

How does 1020 15th Street 214 compare to other condos in Denver Central Business District?

This condo is listed 26% below the average price for condos in Denver Central Business District and has been on the market for 7 more days than the typical home in this area.

What building or home owners association is the condo part of?

This condo is in the Brooks Tower building and is part of the Brooks Tower HOA home owners association.

What is the square footage on this condo?

According to the MLS, this listing is 1,190 sqft.

1020 15th Street 214 is a 1-bedroom, 2-bath condo for sale in Denver CO 80202. Available on Prevu for 92 days at $524,500. This includes a recent price decrease of $10,000. This home features 1,190 square feet of living space, located in Denver Central Business District. The median listing price for condos in this area is $437,000. Nearby schools include Greenlee Elementary School, Compass Academy Middle School, and West High School. The home offers dishwasher, pets allowed, doorman, elevator, air conditioning, storage, fitness center, parking, swimming pool, and washer/dryer. Browse more condo listings in Denver.

The content relating to real estate for sale in this Web site comes in part from the Internet Data eXchange ("IDX") program of METROLIST, INC., DBA RECOLORADO® Real estate listings held by brokers other than Prevu are marked with the IDX Logo. This information is being provided for the consumers' personal, non-commercial use and may not be used for any other purpose. All information subject to change and should be independently verified.

Full MLS Disclaimers

Rebate estimate is indicative only and based on listing price and estimated buyer's agent commission paid by owner, if applicable. Final rebates are subject to Terms of Use and may vary due to final negotiated transaction terms.