Prevu by reAlpha
BuySellBlogBrowse Listings

1014 B NE 70th Street 1014BSeattle, WA 98115

For Sale

$985,950

Smart Buyer Rebate $9,860

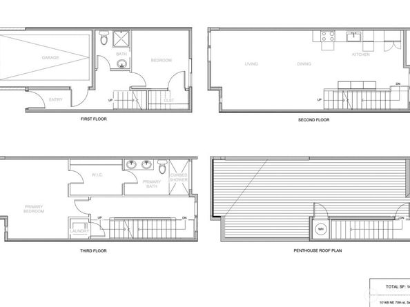
Modern living meets thoughtful design in the brand-new Sawyer community by GreenCity, located near Green Lake and in the heart of Roosevelt. The light-filled main level features a gourmet kitchen with waterfall quartz, premium appliances, and seamless flow to the living area. A lower-level bedroom with a stylish ¾ bath offers flexible use for guests, work, or a roommate. The upper-level primary suite includes vaulted ceilings and a spa-inspired bath. Enjoy territorial views from your private rooftop deck. EV-ready parking, energy-efficient systems, and close access to cafés, restaurants, transit, and shopping.

Listed by Brenda Nunes

·

Keller Williams Eastside

Listed by Jordan Thompson

·

Keller Williams Eastside

Last updated December 11, 2025

·

Source: NWMLS #2457915

Listing Facts

  • TypeSingle-family
  • NeighborhoodRoosevelt
  • Bedrooms2
  • Bathrooms2
  • Days on Prevu14
  • Taxes$1,366.25/year
  • Size1,468 sqft
  • Price per sqft$672

Amenities

  • Pets Allowed
  • Parking

Location

Mortgage Calculator

Listing History

11/27/2025
Listed by Keller Williams Eastside
$985,950

Property Details for 1014 B NE 70th Street 1014B

Association

Amenities

  • Community Features: CCRs

Exterior

Construction

  • New Construction: Yes
  • Property Condition: Under Construction
  • Roof: Composition, Flat
  • Structure Type: Townhouse
  • Year Built: 2026
  • Architectural Style: Modern
  • Builder Name: Greencity
  • Building Name: Sawyer
  • Construction Materials: Cement Planked
  • Entry Location: Main
  • Exterior Features: Cement Planked

Features

  • Direction Faces: South
  • View: Territorial

Measurements

  • Building Area Total: 1,468
  • Building Area Units: Square Feet
  • Lot Features: Paved, Sidewalk
  • Lot Size Acres: 0.01
  • Lot Size Square Feet: 802
  • Lot Size Units: Square Feet

Financial

Taxes

  • Parcel Number: 671670009305
  • Tax Annual Amount: $1,366.25
  • Tax Year: 2026

Interior

Features

  • Appliances: Dishwasher(s), Disposal, Microwave(s), Refrigerator(s), Stove(s)/Range(s)
  • Flooring: Ceramic Tile, Vinyl Plank
  • Interior Features: Bath Off Primary, Double Pane/Storm Window, Dining Room, High Tech Cabling, Vaulted Ceiling(s), Walk-In Closet(s), Water Heater

Measurements

  • Living Area: 1,468

Rooms

  • Bathrooms Three Quarter: 2
  • Bathrooms Total Integer: 2
  • Bedrooms Total: 2
  • Main Level Bathrooms: 1
  • Main Level Bedrooms: 1

Other

Environmental

  • Green Building Verification Type: Other

Location

  • Subdivision Name: Roosevelt

Parking

Parking

  • Attached Garage: Yes
  • Covered Spaces: 1
  • Garage Spaces: 1
  • Garage: Yes
  • Parking Features: Attached Garage
  • Parking Total: 1

Schools

Elementary School

  • Elementary School: Buyer To Verify

High School

  • High School: Buyer To Verify
  • High School District: Seattle

Middle or Junior School

  • Middle Or Junior School: Buyer To Verify

Utilities

Equipment

  • Has Cooling: Yes
  • Has Heating: Yes
  • Sewer: Sewer Connected
  • Water Source: Public

Frequently Asked Questions

How many bedrooms and bathrooms does this single-family home have?

There are 2 bedrooms and 2 bathrooms in this single-family home at 1014 B NE 70th Street 1014B.

What schools are nearby to 1014 B NE 70th Street 1014B?

Nearby schools include the Buyer To Verify Elementary School, Buyer To Verify Middle School, and Buyer To Verify High School.

Does this single-family home have parking?

Yes, there is 1 parking space available for 1014 B NE 70th Street 1014B.

What are the annual taxes for 1014 B NE 70th Street 1014B?

Annual taxes for this single-family home are estimated at $1,366.

How does 1014 B NE 70th Street 1014B compare to other single-family homes in Roosevelt?

This single-family home is listed 20% below the average price for single-family homes in Roosevelt and has been on the market for 1 less day than the typical home in this area.

What building or home owners association is the single-family home part of?

This single-family home is in the Sawyer building.

What is the square footage on this single-family home?

According to the MLS, this listing is 1,468 sqft.

1014 B NE 70th Street 1014B is a 2-bedroom, 2-bath single-family home for sale in Seattle WA 98115. On Prevu for 14 days at $985,950. This property features 1,468 square feet of living space, located in Roosevelt. The median listing price for single-family homes in this area is $1,350,000. Nearby schools include Buyer To Verify Elementary School, Buyer To Verify Middle School, and Buyer To Verify High School. The home offers pets allowed and parking. Browse more single-family home listings in Seattle.

Based on information from NWMLS and/or other sources. All data, including all measurements and calculations of area, is obtained from various sources and has not been, and will not be, verified by Prevu or the MLS. Information is provided exclusively for consumer's personal, non-commercial use and may not be used for any purpose other than to identify prospective properties consumer may be interested in purchasing.

Full MLS Disclaimers

Rebate estimate is indicative only and based on listing price and estimated buyer's agent commission paid by owner, if applicable. Final rebates are subject to Terms of Use and may vary due to final negotiated transaction terms.