Prevu by reAlpha
BuySellBlogBrowse Listings

0 Leicester AvenueRonkonkoma, NY 11779

For Sale

$699,999

Smart Buyer Rebate $5,000

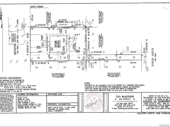
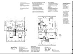
Incredible luxury new construction expanded cape to be built with time still remaining to fully personalize and customize every detail, set on a perfectly flat, oversized lot tucked away at the back of a quiet dead-end street, offering outstanding privacy with virtually no through traffic. Located within the highly desirable Sachem School District, this property delivers the perfect blend of location, design, and lifestyle. Thoughtfully designed with impressive space and presence, this beautiful home will showcase timeless curb appeal with brand-new siding and high-quality windows, creating a clean and classic exterior design. Inside, you are greeted by a spacious, open layout featuring a formal living room and formal dining room ideal for both entertaining and everyday living. The custom chef’s kitchen will serve as the centerpiece of the home, appointed with white cabinetry, quartz countertops, an oversized center island, stainless steel appliances, and abundant cabinet and counter space. Hardwood floors extend throughout the entire first floor, including the kitchen, complemented by high-efficiency recessed lighting that enhances the bright, open feel. The first floor also features one spacious bedroom and a full bathroom, offering flexibility for guests, or a home office. The second level includes two generously sized bedrooms and an additional full bathroom, providing comfort and privacy with a well-designed layout. Designer spa-inspired bathrooms feature ceramic tile and decorative vanities. Additional highlights include a full unfinished basement with 8-foot ceilings, central air conditioning, Forced Air heat, 200-amp electrical service, Energy Star high-efficiency Heat Pump, and energy-efficient construction throughout. This rare to-be-built opportunity combines luxury, privacy, and customization, allowing buyers to create their dream home from the ground up. Please refer to the attached amenity detail sheet for complete specifications and features.

Listed by Bryan J. Karp CBR

·

Coldwell Banker American Homes

·

631-863-9800

Last updated March 08, 2026

·

Source: OneKey #966816

Listing Facts

  • TypeSingle-family
  • NeighborhoodLake Ronkonkoma
  • Bedrooms3
  • Bathrooms2
  • Days on Prevu13
  • Taxes$546.88/year
  • Size1,500 sqft
  • Price per sqft$467

Amenities

  • Dishwasher
  • Air Conditioning

Location

Mortgage Calculator

Listing History

03/03/2026
Listed by Coldwell Banker American Homes
$699,999

Property Details for 0 Leicester Avenue

Exterior

Construction

  • Property Condition: New Construction, To Be Built
  • Year Built: 2026
  • Architectural Style: Exp Cape
  • Construction Materials: Frame, Vinyl Siding

Measurements

  • Building Area Total: 2,400
  • Building Area Units: Square Feet
  • Lot Size Acres: 0.15
  • Lot Size Square Feet: 6,534

Financial

Taxes

  • Parcel Number: 0200-725-00-06-00-007-000
  • Tax Annual Amount: $546.88
  • Tax Year: 2025

Interior

Features

  • Appliances: Dishwasher, Electric Cooktop, Electric Oven, Electric Range, Refrigerator
  • Flooring: Carpet, Ceramic Tile, Hardwood
  • Interior Features: First Floor Bedroom, First Floor Full Bath, Chefs Kitchen, Eat-in Kitchen, Entrance Foyer, Formal Dining, Kitchen Island, Quartz/Quartzite Counters, Recessed Lighting, Washer/Dryer Hookup

Measurements

  • Living Area: 1,500
  • Living Area Source: Plans

Rooms

  • Basement: Full
  • Has Basement: Yes
  • Bathrooms Full: 2
  • Bathrooms Total Integer: 2
  • Bedrooms Total: 3
  • Rooms Total: 7

Parking

Parking

  • Parking Features: Driveway, On Street

Schools

Elementary School

  • Elementary School: Hiawatha School
  • Elementary School District: Sachem

High School

  • High School: Sachem High School North
  • High School District: Sachem

Middle or Junior School

  • Middle Or Junior School: Samoset Middle School
  • Middle Or Junior School District: Sachem

Utilities

Equipment

  • Cooling: Central Air
  • Heating: Electric, Forced Air, Heat Pump, Hot Air
  • Sewer: Cesspool
  • Utilities: Cable Available, Electricity Available, Phone Available, Trash Collection Public, Water Available
  • Water Source: Public

Frequently Asked Questions

How many bedrooms and bathrooms does this single-family home have?

There are 3 bedrooms and 2 bathrooms in this single-family home at 0 Leicester Avenue.

What schools are nearby to 0 Leicester Avenue?

Nearby schools include the Hiawatha School Elementary School, Samoset Middle School, and Sachem High School North.

What are the annual taxes for 0 Leicester Avenue?

Annual taxes for this single-family home are estimated at $546.

How does 0 Leicester Avenue compare to other single-family homes in Lake Ronkonkoma?

This single-family home is listed 8% above the average price for single-family homes in Lake Ronkonkoma and has been on the market for 20 less days than the typical home in this area.

What is the square footage on this single-family home?

According to the MLS, this listing is 1,500 sqft.

0 Leicester Avenue is a 3-bedroom, 2-bath single-family home for sale in Ronkonkoma NY 11779. Listed on Prevu for 13 days at $699,999. This home features 1,500 square feet of living space, located in Lake Ronkonkoma. The median listing price for single-family homes in this area is $599,999. Nearby schools include Hiawatha School Elementary School, Samoset Middle School, and Sachem High School North. Property amenities include dishwasher and air conditioning. Explore more single-family home listings in Suffolk County.

The data relating to real estate for sale on this website comes in part from the IDX Program of OneKey™ MLS. The source of the displayed data is either the property owner or public record provided by non-governmental third parties. It is believed to be reliable but not guaranteed. This information is provided exclusively for consumers’ personal, non-commercial use. Information Copyright 2026, OneKey™ MLS. All Rights Reserved.

Full MLS Disclaimers

Rebate estimate is indicative only and based on listing price and estimated buyer's agent commission paid by owner, if applicable. Final rebates are subject to Terms of Use and may vary due to final negotiated transaction terms.